NO. 310 脱デザイナーズの新潮流

脱デザイナーズの新潮流 南からの光が差し込むワンルーム(801号室)
さらに写真を表示する
賃料
108,000円
管理費
7,000円
専有面積
23.62㎡
所在地
品川区旗の台
交通
池上線「旗の台」駅 徒歩5分/浅草線・大井町線「中延」駅 徒歩11分/目黒線「西小山」駅 徒歩14分
敷金
1ヶ月
礼金
1ヶ月
NO. 310 脱デザイナーズの新潮流
賃料:
108,000円
管理費:
7,000円
専有面積:
23.62㎡
所在地:
品川区旗の台

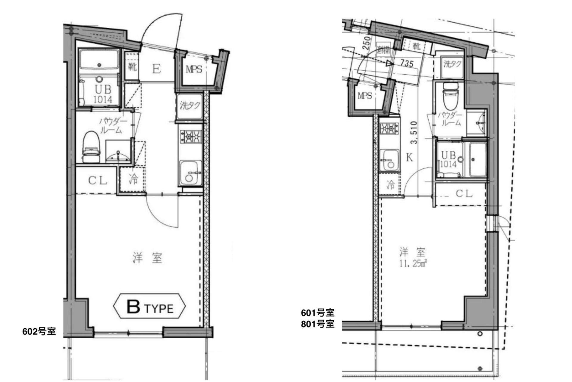
間取り FLOOR PLAN

※現況と図面が異なる場合には、現況を優先するものとします。

コメント COMMENT

旗の台駅から商店街を通り、大通りを少し歩いた先にある築浅のマンション。

使い込まれた年代物の耐火煉瓦の床に、ノースカロライナから仕入れた100年以上前の古材のオークを使ったエントランスドアをくぐると、杉板の型枠で打設された迫力のあるコンクリートの壁がお出迎え。

この重厚な空間に、アンティークショップなどで時間をかけて買い集めた照明たちが合わさって、築浅マンションとは思えない貫禄を醸し出しています。

共用廊下の床は左官の洗い出し、玄関ドア横には船舶照明、そして造形作家に特注した無骨な部屋番号プレートとこだわり満載。廊下の照明もインダストリアル系のものが取り付けられ気持ちを盛り上げてくれます。

南向きのワンルームは、窓から差し込む光が明るく部屋を照らしてくれます。フローリングとのバランスが無機質すぎず、こってりすぎず、バランス良くデザインがされているので、家具やインテリアはシンプルなものでも空間が成立します。

お部屋は躯体現しの高めの天井高に、パイン材を白く塗装した壁面。壁の一面はパイン材をあえて少し隙間を空けて敷き詰め、その隙間には入居者が釘打ち可能としています。

ここまでデザインから使い勝手まで配慮が行き届いた物件はそう多くないと思いますが、その理由は、この家主さんは他に所有されている物件のうち築年の古いものから順次こんなテイストにリノベーションして賃貸されているため。

つまりリノベで培った感覚を取り入れたため、こんなにも私たち目線でそうそう!と思える仕様になっているわけです。こういう物件が、いわゆるデザイナーズ系に変わって増えてくると楽しそうですよね。

インターネット使用料が無料なので、実質月々数千円浮くわけです。これは地味ですが普通は賃料+管理費にネット代もかかることを考えるとうれしいですよね。

大井町線・池上線、2線利用可能なので、通勤などの利便性も担保しつつ街の住みやすさも得られる、安定の地になりそうなお部屋を見つけたな、と思いました。

※掲載の写真は全て801号室のものです。今回募集のお部屋は2階の真ん中のお部屋なので、内装の参考にしてご覧ください。

詳細データ FUDOSAN INFO

物件種別
賃貸マンション
賃料
108,000円
管理費
7,000円
専有面積
23.62㎡
所在地
品川区旗の台
交通
池上線「旗の台」駅 徒歩5分/浅草線・大井町線「中延」駅 徒歩11分/目黒線「西小山」駅 徒歩14分
敷金
1ヶ月
礼金
1ヶ月
構造規模
鉄筋コンクリート造 9階建
所在階
2階
築年
2015年
現況
居住中 /2026年5月31日退去予定
ペット
不可
保証会社

利用必須

設備

2口ガスコンロキッチン/追炊/浴室換気乾燥機/ウォッシュレット/室内洗濯物干し/オートロック/TVインターホン/防犯カメラ/宅配BOX

備考

光インターネット<Wi-Fi>利用料無料/ CS・BS/エレベーター/解約通知期日:45日前

定期借家契約2年間/再契約相談/再契約料:新賃料の1ヶ月分再契約事務手数料:22,000円(別途消費税)/取引態様:代理/要火災保険契約
担当
玉井
情報登録日 2026年04月21日/情報修正日 2025年10月04日/更新予定日 2026年06月03日

関連記事 RELATED MAGAZINE

LINE物件配信サービス『もっとホビー不動産 β』

※これまでご登録いただいていた LINE物件配信サービス『もっとホビー不動産 β』 について、運営体制や配信内容を見直すため、一旦サービスを休止させていただくことになりました。

LINE物件配信サービス『もっとホビー不動産 β』を開始します。
サイトに載っていない物件も 《もっと》お届けする『スルーパス』、担当者が物件探しに伴走する『SUCCESS』の2つのコースが選べます。

『新着LINE』はじめます

ホビー不動産ではこのたび、公式LINEにご登録いただいている方へ向けた

新しい情報配信サービス 『新着LINE』 をスタートしました。

PICK UP
NO. 341 ロマンに生きる!屋上秘密基地
今回ご紹介するのは、最上階のメゾネット住戸。 玄関を開けると、まず現れるのは上階へ続く階段です。この時点で少しワクワクしてしまうのは、きっと僕だけではないはず。 階段を上がると、勾配天井のLDKと洋室。15.3帖という数字以上に空間はのびや...
148,000円
39.85㎡
世田谷区世田谷
世田谷線「上町」駅 徒歩3分/世田谷線「宮の坂」駅 徒歩8分
NO. 340 緑のプロムナード
玉川上水緑道沿いに立つ一室。 場所は笹塚駅から代田橋駅の間、徒歩5分〜8分ほどの立地。新代田駅や下北沢駅もそれぞれ13分、18分ほどのため休日は気ままに足を伸ばすことができそうです。 間取りはLDKが14.5帖、サービスルームが4.6帖とい...
165,000円
40.91㎡
世田谷区大原
京王線「笹塚」駅 徒歩8分/京王線「代田橋」駅 徒歩5分/京王線・井の頭線「下北沢」駅 徒歩18分
NO. 342 光と風が回る、ペットと緑との暮らし。
窓から差し込む西日が無垢の床を照らし、コンクリートの壁に影を落とす。L字型のバルコニーに面した角部屋は、こんなにも光に満たされるのかと思うほど明るい空間です。 ワンルームと聞くとどうしても狭い箱を想像しがちですが、この部屋は違います。玄関を...
165,000円
40.55㎡
墨田区吾妻橋
浅草線「本所吾妻橋」駅 徒歩4分/銀座線・東武スカイツリーライン「浅草」駅 徒歩7分