NO. 192 憧れのレーモンドをメゾネットで

憧れのレーモンドをメゾネットで カジュアルさとシックで高級な雰囲気、和と洋が渾然一体に
さらに写真を表示する
賃料
398,000円
管理費
なし
専有面積
85.17㎡
所在地
新宿区弁天町
交通
大江戸線「牛込柳町」駅 徒歩4分/東西線「早稲田」駅 徒歩11分/東西線「神楽坂」駅 徒歩13分/都営バス 白61「牛込弁天町」バス停 徒歩1分
敷金
2ヶ月
礼金
1ヶ月
NO. 192 憧れのレーモンドをメゾネットで
賃料:
398,000円
管理費:
なし
専有面積:
85.17㎡
所在地:
新宿区弁天町

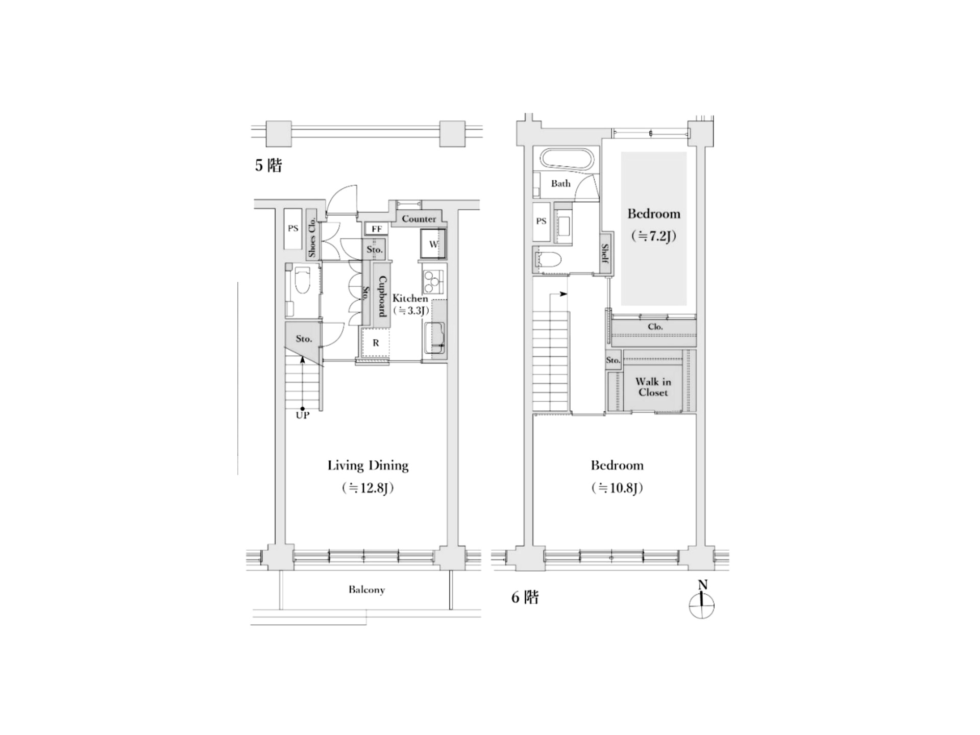
間取り FLOOR PLAN

※現況と図面が異なる場合には、現況を優先するものとします。

コメント COMMENT

このメゾネット物件は、建築家アントニン・レーモンドの意思を継いだレーモンド設計事務所が約半世紀前に手掛け、それを改めてレーモンド設計事務所の監修によりフルリノベーションしたもので、レーモンド設計の特徴の一つともいうべき障子がしっかりと用いられて、とても気持ちの良い機能的な物件となっております。

和風とも洋風とも言えるこの内装はまさに和洋という既成概念にとらわれないモダンなデザインコンセプトが結実した結果と言えるのではないでしょうか。

ヘリンボーンのフローリングにはじまる、素材に見て触れて感じる肌触りの気持ちよさ、パークビューな室外環境からくる気持ちよさ、そして生活をしていく上での機能的な気持ちよさも併せ持つような物件だと思いました。

収納一つとってみても、その多さはもちろん、欲しいだろうと思う場所場所に一般的な必要以上のサイズ感で設けてくれています。

板張りの壁面の継ぎ目にはほんのわずかアクセントに除くスチール感。

階段手すりも角が取られた木製で、コードやら衣類を変に引っ掛けにくいつくり。

木製のルーバーで目隠しされたLDKのエアコンからも見て取れるように、隠せるものは極力隠すデザイン。

キッチンと廊下も気になるならようであれば仕切れるようになっており、その仕切り戸のガラス部分には障子との親和性が感じられる繊維質なデザインが施され、統一感を感じられるようになっております。

ほんと、良いでしょう。

それから個人的に気に入っているのが、ガス乾燥機が使えることと、7.2畳の居室の窓外スペース。

ガス乾燥機はマンションだと珍しい部類に入るだろうと思いますが、電気式と比べてパワフルで安価なのは嬉しいですよね。

窓外スペースに関しては間取り図にも描かれていないスペースで、おまけとしてはとても大きな存在。

あとはこのロビースペースのこの感じもヴィンテージマンション好きには刺さるところ。

南側の公園は眺望の抜けと緑をもたらせてくれるだけでなく、ちょっとした休憩や気分転換にもとてもよさそうなのも好印象。

良いところを上げると、本当に枚挙にいとまがない。

なお、8月末現在の情報ですが、駐車場とバイク置場は空いておらず、車種サイズ毎に空きが出るたびにウエイティングリストから抽選される仕組みです。

駐輪場は現在も空きがありまして、置く場所によって多少の金額差はあるのですが月額300から高くとも600円で利用可能になっております。

立地としては新宿区弁天町になり、最寄り駅は大江戸線の牛込柳町駅で徒歩4分。他にも東西線の早稲田駅と神楽坂駅がそれぞれ徒歩11分と13分という、都心各所へのアクセスになかなか便利な立地。

都心希望でレーモンド好きな方には願ってもない物件だろうと思いますので、ぜひご検討ください。

詳細データ FUDOSAN INFO

物件種別
賃貸マンション
賃料
398,000円
管理費
なし
専有面積
85.17㎡
所在地
新宿区弁天町
交通
大江戸線「牛込柳町」駅 徒歩4分/東西線「早稲田」駅 徒歩11分/東西線「神楽坂」駅 徒歩13分/都営バス 白61「牛込弁天町」バス停 徒歩1分
敷金
2ヶ月
礼金
1ヶ月
構造規模
鉄骨鉄筋コンクリート造 地下1階付 15階建
所在階
5階
築年
1971年
現況
空室
ペット
不可
保証会社

利用必須

設備

3口IHコンロ/食洗機/追炊機能/浴室暖房乾燥/ガス衣類乾燥機口設置/ウォシュレット/エアコン3台/床暖房/モニターホン/夜間オートロック

備考

禁煙/鍵交換:任意/集金代行手数料月額:550円(税込)/駐車場:空無/駐輪場:空有(月額:300円〜600円)/バイク置場:空無/住居兼事務所利用相談可/1年未満解約時、短期解約違約金1ヶ月

定期借家契約2年間/再契約相談/再契約料:新賃料の1ヶ月分/取引態様:媒介/要火災保険契約
担当
森岡
情報登録日 2025年10月22日/情報修正日 2025年10月22日/更新予定日 2026年06月03日
PICK UP
NO. 341 ロマンに生きる!屋上秘密基地
今回ご紹介するのは、最上階のメゾネット住戸。 玄関を開けると、まず現れるのは上階へ続く階段です。この時点で少しワクワクしてしまうのは、きっと僕だけではないはず。 階段を上がると、勾配天井のLDKと洋室。15.3帖という数字以上に空間はのびや...
148,000円
39.85㎡
世田谷区世田谷
世田谷線「上町」駅 徒歩3分/世田谷線「宮の坂」駅 徒歩8分
NO. 340 緑のプロムナード
玉川上水緑道沿いに立つ一室。 場所は笹塚駅から代田橋駅の間、徒歩5分〜8分ほどの立地。新代田駅や下北沢駅もそれぞれ13分、18分ほどのため休日は気ままに足を伸ばすことができそうです。 間取りはLDKが14.5帖、サービスルームが4.6帖とい...
165,000円
40.91㎡
世田谷区大原
京王線「笹塚」駅 徒歩8分/京王線「代田橋」駅 徒歩5分/京王線・井の頭線「下北沢」駅 徒歩18分
NO. 342 光と風が回る、ペットと緑との暮らし。
窓から差し込む西日が無垢の床を照らし、コンクリートの壁に影を落とす。L字型のバルコニーに面した角部屋は、こんなにも光に満たされるのかと思うほど明るい空間です。 ワンルームと聞くとどうしても狭い箱を想像しがちですが、この部屋は違います。玄関を...
165,000円
40.55㎡
墨田区吾妻橋
浅草線「本所吾妻橋」駅 徒歩4分/銀座線・東武スカイツリーライン「浅草」駅 徒歩7分