NO. 254 光差し込む3層メゾネット

光差し込む3層メゾネット メゾネットの上にさらにロフト(01号室)
さらに写真を表示する
賃料
145,000円
管理費
5,000円
専有面積
33.18㎡
所在地
武蔵野市吉祥寺北町
交通
中央線・井の頭線「吉祥寺」駅 徒歩20分/中央線「三鷹」駅 徒歩18分/中央線・井の頭線「吉祥寺」バス6分 「北町四丁目」バス停 徒歩2分
敷金
1ヶ月
礼金
1ヶ月
NO. 254 光差し込む3層メゾネット
賃料:
145,000円
管理費:
5,000円
専有面積:
33.18㎡
所在地:
武蔵野市吉祥寺北町

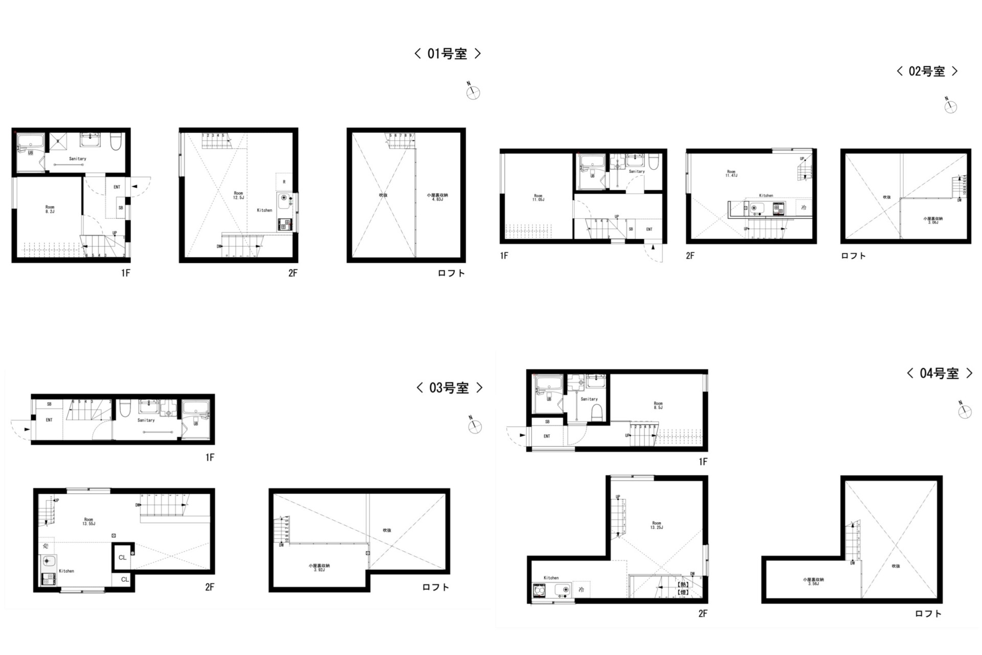
間取り FLOOR PLAN

※現況と図面が異なる場合には、現況を優先するものとします。

コメント COMMENT

【賃料改定しました!】

吉祥寺北町。成蹊大学に程近いこのエリアは、吉祥寺駅から少し距離はあるもののバス便が頻繁にあり賑わいのある住宅地です。そのバス通りから少し入った路地の奥に4戸の新築テラスハウスが竣工しました。いずれもメゾネットですが、1階と2階に居室がある部屋や2階のみに居室がある部屋など作りは様々です。

どの部屋も2階にメインのスペースを持ってきており、ロフトがある。ロフトがあることによって天井高は担保され、さらにロフト部分も有効的に使うことができる。メゾネットと言いながらも実質は3層フロアなので、どのフロアをどのように使おうかと階に降り立つたびにワクワクが止まりませんでした。

01号室は1階に8帖ほどの居室があり、収納スペースもあるので寝室や仕事部屋として独立して使うことができます。2階はリビングの上に細長いロフトがあり、ここを寝るスペースにするも良し、私だったら趣味のものを置いて寝転がれる至福スペースとして使いたい。例えば本棚を設置して本に囲まれながらごろんと読書ができたり、プロジェクターを設置して寝転がりながらNetflixを見られたりしたら最高です。

03号室はバスルームなどが1階で、居室スペースは2階のみ。キッチン上にロフトがありつつも、階段隣にもスペースがあるので1フロアで3ゾーン確保できる。大きな窓から光が入ってくるキッチン前スペースと、窓はないけれど棚と収納ポールのある落ち着いた雰囲気の階段隣のスペース、用途によってお好みで家具などをレイアウトしましょう。

04号室も01号室と同様に1階に居室が1部屋、2階にリビングとロフトがあります。ただ異なるのは天高と開放感とキッチンの奥まり感。キッチンや寝室スペースを切り離して、リビングとして使うことができる面積を最大限持ちたい方におすすめのお部屋です。縦に広がりがあるので、面積以上の空間の広がりを感じることができ、個人的に1番おすすめしたいです。

今回の新築棟の向かいには数年前に竣工した同建築家設計のテラスハウスが立っており、共用の敷地で繋がっています。そのため、窓からの景色が壁等で閉ざされることがないこともうれしいポイントでした。

吉祥寺駅からは少し距離がありますが、周辺にはぽつぽつと気になるお店があります。通り沿いにあるカフェ「果実店canvas吉祥寺」さんのショーウィンドー越しに美味しそうなフルーツサンドがあったので、次の内見で必ず食べてみたいと狙っています。早く食べに行きたいので、ぜひ問合せをお待ちしていますね。

<03号室>
賃料:140,000円
管理費:5,000円
面積:33.18㎡

詳細データ FUDOSAN INFO

物件種別
賃貸アパート
賃料
145,000円
管理費
5,000円
専有面積
33.18㎡
所在地
武蔵野市吉祥寺北町
交通
中央線・井の頭線「吉祥寺」駅 徒歩20分/中央線「三鷹」駅 徒歩18分/中央線・井の頭線「吉祥寺」バス6分 「北町四丁目」バス停 徒歩2分
敷金
1ヶ月
礼金
1ヶ月
構造規模
木造 2階建
所在階
1,2階
築年
2026年
現況
空室
ペット
不可
保証会社

利用必須

設備

2口IHキッチン/エアコン/CATV/浴室乾燥機/風呂自動/追焚/モニター付きインターホン/駐輪場/駐車場(月額:27,500円税込)

備考
普通借家契約2年間/更新料:新賃料の1ヶ月分/貸主インボイス登録済/取引態様:媒介/要火災保険契約
担当
玉井
情報登録日 2026年02月17日/情報修正日 2026年03月30日/更新予定日 2026年06月06日

関連記事 RELATED MAGAZINE

『新着LINE』はじめます

ホビー不動産ではこのたび、公式LINEにご登録いただいている方へ向けた

新しい情報配信サービス 『新着LINE』 をスタートしました。

PICK UP
NO. 341 ロマンに生きる!屋上秘密基地
今回ご紹介するのは、最上階のメゾネット住戸。 玄関を開けると、まず現れるのは上階へ続く階段です。この時点で少しワクワクしてしまうのは、きっと僕だけではないはず。 階段を上がると、勾配天井のLDKと洋室。15.3帖という数字以上に空間はのびや...
148,000円
39.85㎡
世田谷区世田谷
世田谷線「上町」駅 徒歩3分/世田谷線「宮の坂」駅 徒歩8分
NO. 340 緑のプロムナード
玉川上水緑道沿いに立つ一室。 場所は笹塚駅から代田橋駅の間、徒歩5分〜8分ほどの立地。新代田駅や下北沢駅もそれぞれ13分、18分ほどのため休日は気ままに足を伸ばすことができそうです。 間取りはLDKが14.5帖、サービスルームが4.6帖とい...
165,000円
40.91㎡
世田谷区大原
京王線「笹塚」駅 徒歩8分/京王線「代田橋」駅 徒歩5分/京王線・井の頭線「下北沢」駅 徒歩18分
NO. 342 光と風が回る、ペットと緑との暮らし。
窓から差し込む西日が無垢の床を照らし、コンクリートの壁に影を落とす。L字型のバルコニーに面した角部屋は、こんなにも光に満たされるのかと思うほど明るい空間です。 ワンルームと聞くとどうしても狭い箱を想像しがちですが、この部屋は違います。玄関を...
165,000円
40.55㎡
墨田区吾妻橋
浅草線「本所吾妻橋」駅 徒歩4分/銀座線・東武スカイツリーライン「浅草」駅 徒歩7分