NO. 255 四ツ谷で植物園

四ツ谷で植物園 窓に囲まれたLDK
さらに写真を表示する
賃料
165,000円
管理費
10,000円
専有面積
49.96㎡
所在地
新宿区須賀町
交通
中央線・丸ノ内線・南北線「四ツ谷」駅 徒歩10分/丸ノ内線「四谷三丁目」駅 徒歩10分/中央線「信濃町」駅 徒歩11分
敷金
1ヶ月
礼金
1ヶ月
NO. 255 四ツ谷で植物園
賃料:
165,000円
管理費:
10,000円
専有面積:
49.96㎡
所在地:
新宿区須賀町

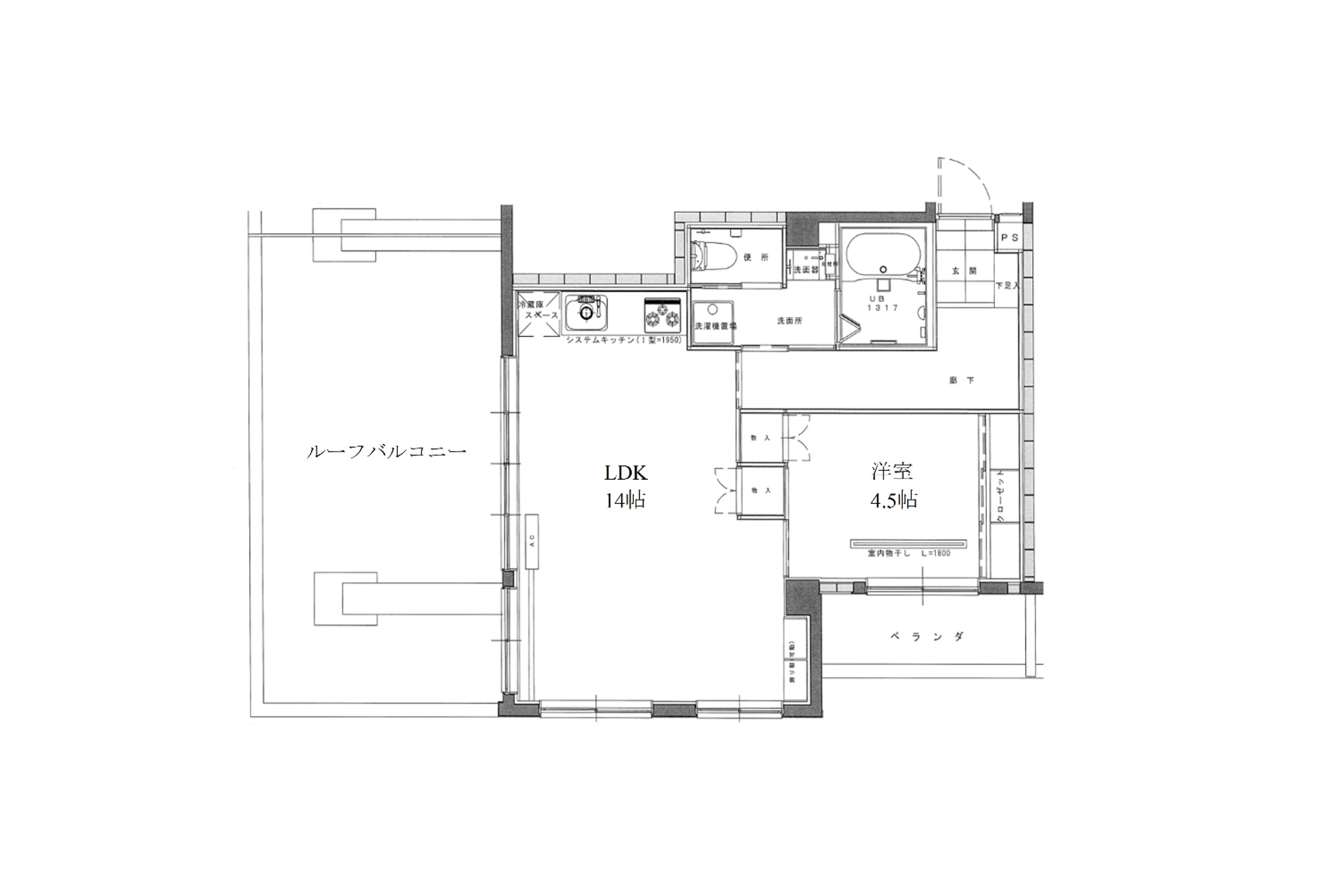
間取り FLOOR PLAN

※現況と図面が異なる場合には、現況を優先するものとします。

コメント COMMENT

四ツ谷駅から徒歩10分の場所に植物園を持てるかもしれないです。

3路線が使える立地かつ、住宅街にある落ち着いたエリアのため住環境のバランスが取りやすい物件です。

今回紹介するお部屋はLDKが14帖、洋室は4.5帖と1人でも2人でも使いこなせる間取りですね。

このお部屋の最大の特徴でもあるルーフバルコニーの使い道の妄想は後にして、室内は2012年に改修済みなので1968年築とは思えない程、水まわりや設備は一通り揃っています。

収納もLDK部分に収納棚、洋室側にクローゼットがあり1LDKとしては現実的な収納量を確保しています。

LDKは窓が4面あるので、とにかく光が多く入り気持ちいい!

ルーフバルコニーも写真の通り一面に光が当たるので天気のいい日は好きな植物達と椅子やテーブルを置いてコーヒーを飲みながら鑑賞したり、作業したりもう植物好きにはたまらない空間です。

環境が良すぎて植物の成長も早く、気づいたら植物園になってしまうかもしれないので借りる方はお気をつけください。

そんなこの物件も注意点があり、バルコニーには水栓はありませんが横にキッチンがあるので水遣りは困らなさそうです。また、2026年4月〜9月末まで外壁修繕工事予定があるので期間中は足場設置により日当たりや植物に影響が出る可能性があります。

利便性の高い新宿エリアで部屋の中にも外にも植物との場所をつくれるお部屋、暮らしの中に緑を増やしていきたい人にかなり刺さる条件が揃っています。

詳細データ FUDOSAN INFO

物件種別
賃貸マンション
賃料
165,000円
管理費
10,000円
専有面積
49.96㎡
所在地
新宿区須賀町
交通
中央線・丸ノ内線・南北線「四ツ谷」駅 徒歩10分/丸ノ内線「四谷三丁目」駅 徒歩10分/中央線「信濃町」駅 徒歩11分
敷金
1ヶ月
礼金
1ヶ月
構造規模
鉄筋コンクリート造 地下1階付 5階建
所在階
4 階
築年
1968年
現況
空室
ペット
不可
保証会社

必須(初回保証料:月額賃料+管理費の50%)

設備

無料駐輪場/ウォシュレット/エアコン/モニター付きインターホン/3口ガスコンロ

備考

家財保険要加入(2年/2万円)/※2026年4月~9月末まで外壁修繕工事予定/※室内クリーニング3月上旬完了予定

 

普通借家契約2年間/更新料:新賃料の1ヶ月分/取引態様:媒介/要火災保険契約
担当
佐伯
情報登録日 2026年02月19日/情報修正日 2026年02月19日/更新予定日 2026年03月29日
PICK UP
NO. 254 光差し込む3層メゾネット
吉祥寺北町。成蹊大学に程近いこのエリアは、吉祥寺駅から少し距離はあるもののバス便が頻繁にあり賑わいのある住宅地です。そのバス通りから少し入った路地の奥に4戸の新築テラスハウスが竣工しました。いずれもメゾネットですが、1階と2階に居室がある部...
160,000円 〜180,000円
33.18㎡ 〜40.62㎡
武蔵野市吉祥寺北町
中央線・井の頭線「吉祥寺」駅 徒歩20分/中央線「三鷹」駅 徒歩18分/中央線・井の頭線「吉祥寺」バス6分 「北町四丁目」バス停 徒歩2分
NO. 282 思春期最前線
尖っている。そして細長い。こんなに鋭角な住宅を見たことがあるだろうか。人が住めるの?!と心配になってしまうような、三角形の建物。そのまさに三角形の区画のご紹介を今日はさせてください。 土地利用の関係上生まれた、細長い三角形の部屋。3層に分か...
78,000円
17.48㎡
練馬区上石神井
西武新宿線「上石神井」駅 徒歩7分
NO. 281 DIYできる3層縦VOID
リノベーションなどで天井を抜いて空間を広く見せる、というのはよく見るデザインになりましたが、天井のみならず床も抜いて縦に空間を繋げるという発想には正直驚かされました。 今回ご紹介するマンションは一見するとごく普通の築古のマンションですが、専...
186,800円
103.01㎡
松戸市緑ケ丘
新京成電鉄「上本郷」駅 徒歩5分