NO. 295 住むも働くも、ペットと一緒

住むも働くも、ペットと一緒 光をインテリアとして捉える
さらに写真を表示する
賃料
245,000円
共益費
10,000円
専有面積
48.45㎡
所在地
杉並区大宮
交通
井の頭線「永福町」駅 徒歩12分
敷金
なし
礼金
なし
NO. 295 住むも働くも、ペットと一緒
賃料:
245,000円
共益費:
10,000円
専有面積:
48.45㎡
所在地:
杉並区大宮

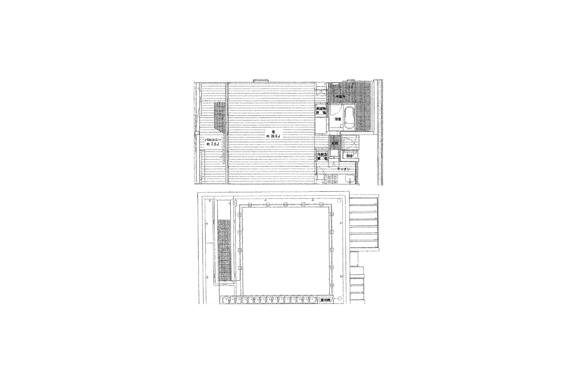
間取り FLOOR PLAN

※現況と図面が異なる場合には、現況を優先するものとします。

コメント COMMENT

最近はペット可物件をお探しの方からのお問い合わせも増えてきました。ただ、実際には数が多くないのが現状。そんな中で今回はさらに特別な物件を見つけちゃいました。

ペットとの暮らしも仕事も全部同じ場所が良い。そんな願いを叶えてくれる物件のご紹介です。

お部屋は20.5帖のワンルーム。ゆとりのある広さに加え、水回りは用途ごとにしっかり区切られており生活感をコントロールしやすい設計です。

仕事スペースと生活スペースを分けてメリハリをつけるのも良いですし、あえてシームレスに使い、自由度高く過ごせるのもこの空間ならではの魅力です。

屋上のルーフバルコニーには水栓も付いており、植物の手入れや仕事の合間のリフレッシュなど、日常的に使いやすい場所になっています。

視界も抜けているため、気持ちを切り替える場としても心地よく機能してくれます。

暮らしも仕事も、そしてペットとの時間も。すべてをひとつの場所に重ねていくような日常を求める方にぜひご覧いただきたい物件です。

ご内見お待ちしております。

詳細データ FUDOSAN INFO

物件種別
賃貸マンション
賃料
245,000円
共益費
10,000円
専有面積
48.45㎡
所在地
杉並区大宮
交通
井の頭線「永福町」駅 徒歩12分
敷金
なし
礼金
なし
構造規模
鉄筋コンクリート造 地下1階付 3階建
所在階
3階
築年
2008年
現況
空室
ペット
保証会社

必須(初回保証料:月額賃料+共益費の50%、更新料:総賃料の10%/年、口振手数料:330円/月)

設備

オートロック/追焚機能/エアコン/ウォシュレット/宅配BOX/駐車場

備考

2年未満の解約違約金:2ヵ月分/鍵交換代:33,000円/クリーニング代:55,000円(退去時)

普通借家契約2年間/更新料:新賃料の1ヶ月分/取引態様:媒介/要火災保険契約
担当
佐伯
情報登録日 2026年03月30日/情報修正日 2026年04月01日/更新予定日 2026年06月06日
PICK UP
NO. 341 ロマンに生きる!屋上秘密基地
今回ご紹介するのは、最上階のメゾネット住戸。 玄関を開けると、まず現れるのは上階へ続く階段です。この時点で少しワクワクしてしまうのは、きっと僕だけではないはず。 階段を上がると、勾配天井のLDKと洋室。15.3帖という数字以上に空間はのびや...
148,000円
39.85㎡
世田谷区世田谷
世田谷線「上町」駅 徒歩3分/世田谷線「宮の坂」駅 徒歩8分
NO. 340 緑のプロムナード
玉川上水緑道沿いに立つ一室。 場所は笹塚駅から代田橋駅の間、徒歩5分〜8分ほどの立地。新代田駅や下北沢駅もそれぞれ13分、18分ほどのため休日は気ままに足を伸ばすことができそうです。 間取りはLDKが14.5帖、サービスルームが4.6帖とい...
165,000円
40.91㎡
世田谷区大原
京王線「笹塚」駅 徒歩8分/京王線「代田橋」駅 徒歩5分/京王線・井の頭線「下北沢」駅 徒歩18分
NO. 342 光と風が回る、ペットと緑との暮らし。
窓から差し込む西日が無垢の床を照らし、コンクリートの壁に影を落とす。L字型のバルコニーに面した角部屋は、こんなにも光に満たされるのかと思うほど明るい空間です。 ワンルームと聞くとどうしても狭い箱を想像しがちですが、この部屋は違います。玄関を...
165,000円
40.55㎡
墨田区吾妻橋
浅草線「本所吾妻橋」駅 徒歩4分/銀座線・東武スカイツリーライン「浅草」駅 徒歩7分