NO. 306 ハワイリゾートような暮らし

ハワイリゾートような暮らし リゾートのような空間
さらに写真を表示する
賃料
191,000円
管理費
14,000円
専有面積
44.82㎡
所在地
世田谷区用賀
交通
田園都市線「用賀」駅 徒歩8分/田園都市線「桜新町」駅 徒歩13分
敷金
2ヶ月
礼金
1ヶ月
NO. 306 ハワイリゾートような暮らし
賃料:
191,000円
管理費:
14,000円
専有面積:
44.82㎡
所在地:
世田谷区用賀

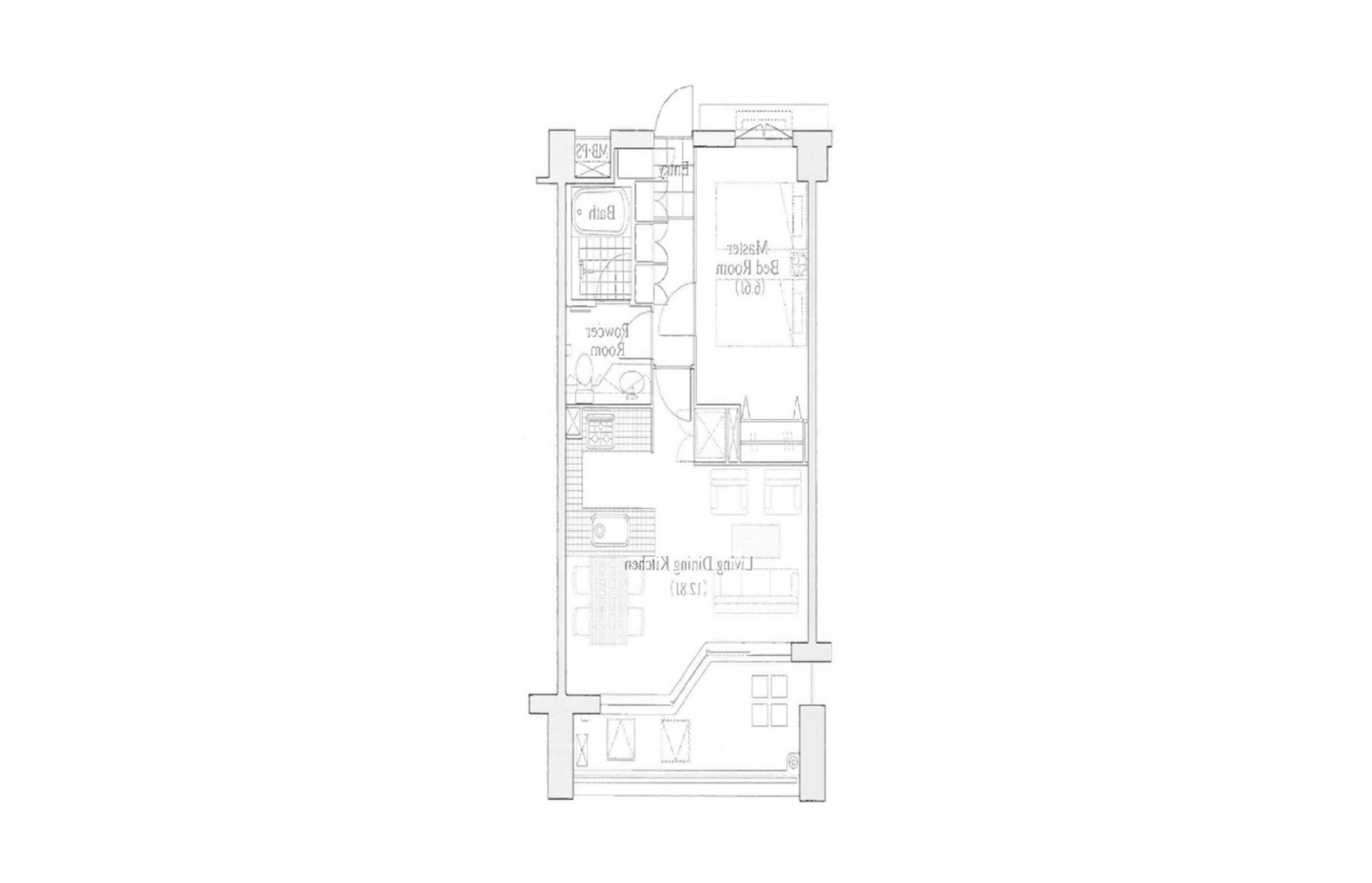
間取り FLOOR PLAN

※現況と図面が異なる場合には、現況を優先するものとします。

コメント COMMENT

この物件にはハワイのリゾートを思わせるような、ゆったりとした時間が流れていました。

LDKには一面に広がる大きな窓があり、3階という高さでありながら目の前にグラウンドが広ある事で視界を遮るものがないため、空の広がりをそのまま室内に取り込めます。

キッチンには木材とタイルを組み合わせた温かみのある可愛らしいデザインを採用。ナチュラルでありながらも上質さを感じさせ、料理をする時間を特別な時間に変えてくれそうです。

水回り設備も全て清潔感や高級感がある印象。さらに、備え付けの洗濯乾燥機もあるので生活動線もすっきりと整います。

廊下には3面の収納棚が設けられており、生活感を表に出さずに美しく整えることが可能。寝室は6.6帖と2人で暮らしても少しゆとりのある広さを確保しています。

建物全体としては、「光と風に彩られた心地よい空間」をテーマに設計された物件。玉川通りから徒歩約3分という利便性に加え、バスを利用すれば渋谷方面へのアクセスも良好です。

都心にいながら、肩の力を抜いて過ごせる特別な空間。内見の際には、ぜひこの空気感を体感してみてください。

詳細データ FUDOSAN INFO

物件種別
賃貸マンション
賃料
191,000円
管理費
14,000円
専有面積
44.82㎡
所在地
世田谷区用賀
交通
田園都市線「用賀」駅 徒歩8分/田園都市線「桜新町」駅 徒歩13分
敷金
2ヶ月
礼金
1ヶ月
構造規模
鉄筋コンクリート造 地下1階付 3階建
所在階
3階
築年
2002年
現況
空室
ペット
不可
保証会社

必須(初回保証料:月額賃料+管理費の50%〜)

設備

エアコン/洗濯乾燥機/ウォシュレット/浴室乾燥機/追焚機能/モニター付きインターホン/宅配ボックス

備考
普通借家契約2年間/更新料:新賃料の1ヶ月分/取引態様:媒介/要火災保険契約
担当
佐伯
情報登録日 2026年04月12日/情報修正日 2026年04月12日/更新予定日 2026年06月03日
PICK UP
NO. 341 ロマンに生きる!屋上秘密基地
今回ご紹介するのは、最上階のメゾネット住戸。 玄関を開けると、まず現れるのは上階へ続く階段です。この時点で少しワクワクしてしまうのは、きっと僕だけではないはず。 階段を上がると、勾配天井のLDKと洋室。15.3帖という数字以上に空間はのびや...
148,000円
39.85㎡
世田谷区世田谷
世田谷線「上町」駅 徒歩3分/世田谷線「宮の坂」駅 徒歩8分
NO. 340 緑のプロムナード
玉川上水緑道沿いに立つ一室。 場所は笹塚駅から代田橋駅の間、徒歩5分〜8分ほどの立地。新代田駅や下北沢駅もそれぞれ13分、18分ほどのため休日は気ままに足を伸ばすことができそうです。 間取りはLDKが14.5帖、サービスルームが4.6帖とい...
165,000円
40.91㎡
世田谷区大原
京王線「笹塚」駅 徒歩8分/京王線「代田橋」駅 徒歩5分/京王線・井の頭線「下北沢」駅 徒歩18分
NO. 342 光と風が回る、ペットと緑との暮らし。
窓から差し込む西日が無垢の床を照らし、コンクリートの壁に影を落とす。L字型のバルコニーに面した角部屋は、こんなにも光に満たされるのかと思うほど明るい空間です。 ワンルームと聞くとどうしても狭い箱を想像しがちですが、この部屋は違います。玄関を...
165,000円
40.55㎡
墨田区吾妻橋
浅草線「本所吾妻橋」駅 徒歩4分/銀座線・東武スカイツリーライン「浅草」駅 徒歩7分