中に入ってみたくなる素敵なエントランス
造形作家の水田典寿氏の制作した家具や内装が独特な世界観を作っています
2階のアーチ型の梁もデザインのいいアクセントに
気持ちのいいウッドデッキに面した3階部分
造形作家の水田典寿氏の制作した家具や内装が独特な世界観を作っています
玄関ドアやポストも水田さんが製作されたもの
テイカカズラが印象的なかわいらしい外観
4階のバルコニーからの眺め
3階主寝室
階段もモールディングや真鍮の滑り止めで雰囲気がよくなっています
室内にいながらにして青空が見える
2階のアーチ型の梁もデザインのいいアクセントに
ドアの向こうがキッチンです
この空間のために造作したドア
2階リビングの窓辺
2階リビングの出窓の手前にガラス扉をつけ、ディスプレイ棚になっています
気持ちのいいトップライトが差し込む階段も、ディティールまでこだわっています
気持ちのいいトップライトが差し込む階段も、ディティールまでこだわっています
室内にいながらにして青空が見える
室内にいながらにして青空が見える
最上階の4階は特に明るくて気持ちのいい空間です
最上階の4階は特に明るくて気持ちのいい空間です
気持ちのいいトップライトが差し込む階段も、ディティールまでこだわっています
広々としたキッチンには食洗機付き
広々としたキッチンには食洗機付き
広々としたキッチンには食洗機付き
1階のフリースペースは集中して仕事をするワークスペースとしても、大きなクローゼットとしてもよさそう
1階のフリースペースの入口ドアもこだわりの作り
1階のフリースペース奥のクローゼット
1階のフリースペースの入口ドアもこだわりの作り
もともと時計だったものをリメイクしてドアの小窓にしたんだとか
1階のフリースペース手前にあるクロークスペース
1階のフリースペース手前にあるクロークスペース。棚は靴棚として使うのがよさそう
メイク渋滞が起きない洗面台
1階のトイレ
お風呂はシンプルな白いユニットバス
3階のトイレ
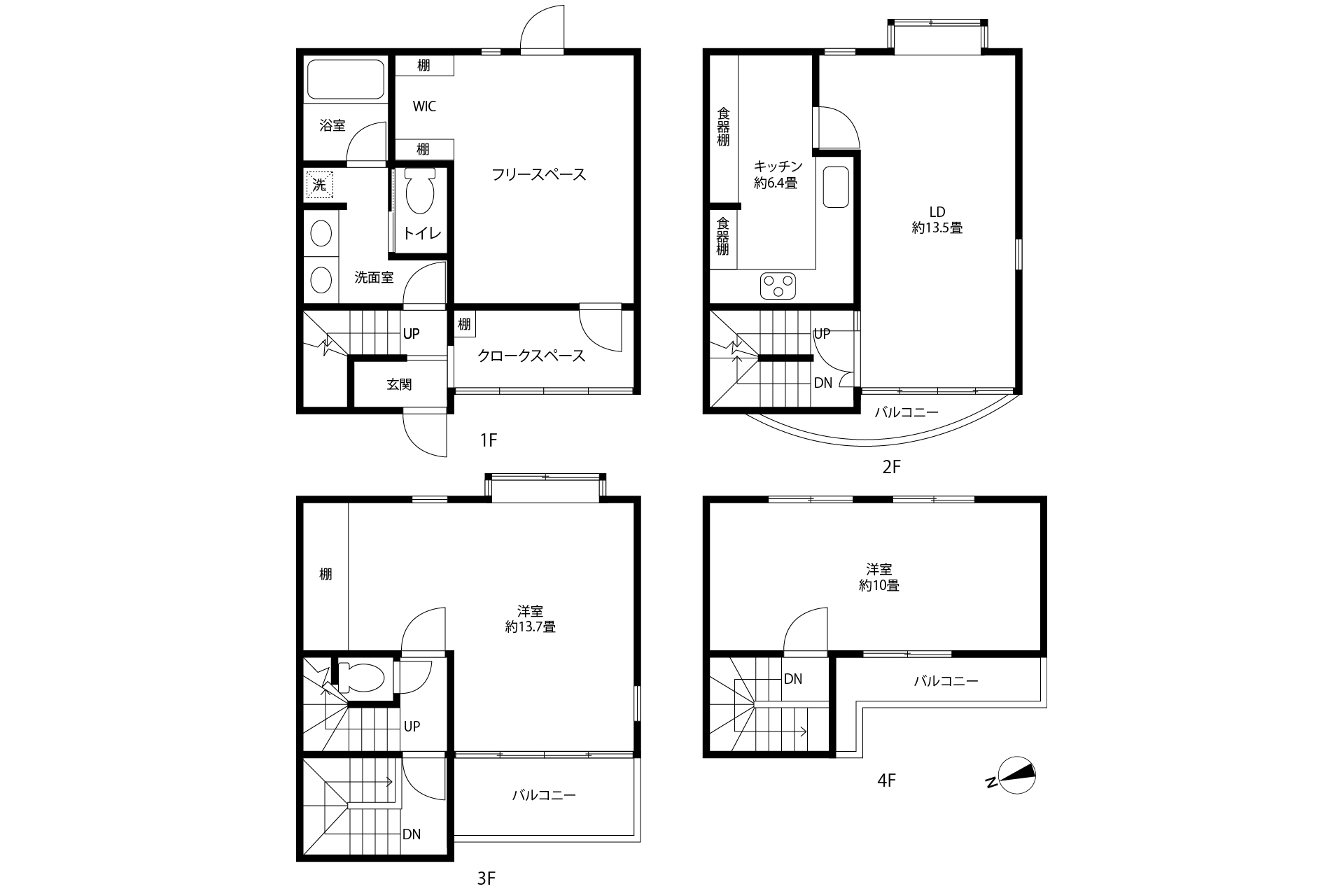
間取り
PHOTO
PLAN
中に入ってみたくなる素敵なエントランス
造形作家の水田典寿氏の制作した家具や内装が独特な世界観を作っています
2階のアーチ型の梁もデザインのいいアクセントに
気持ちのいいウッドデッキに面した3階部分
造形作家の水田典寿氏の制作した家具や内装が独特な世界観を作っています
玄関ドアやポストも水田さんが製作されたもの
テイカカズラが印象的なかわいらしい外観
4階のバルコニーからの眺め
3階主寝室
階段もモールディングや真鍮の滑り止めで雰囲気がよくなっています
室内にいながらにして青空が見える
2階のアーチ型の梁もデザインのいいアクセントに
ドアの向こうがキッチンです
この空間のために造作したドア
2階リビングの窓辺
2階リビングの出窓の手前にガラス扉をつけ、ディスプレイ棚になっています
気持ちのいいトップライトが差し込む階段も、ディティールまでこだわっています
気持ちのいいトップライトが差し込む階段も、ディティールまでこだわっています
室内にいながらにして青空が見える
室内にいながらにして青空が見える
最上階の4階は特に明るくて気持ちのいい空間です
最上階の4階は特に明るくて気持ちのいい空間です
気持ちのいいトップライトが差し込む階段も、ディティールまでこだわっています
広々としたキッチンには食洗機付き
広々としたキッチンには食洗機付き
広々としたキッチンには食洗機付き
1階のフリースペースは集中して仕事をするワークスペースとしても、大きなクローゼットとしてもよさそう
1階のフリースペースの入口ドアもこだわりの作り
1階のフリースペース奥のクローゼット
1階のフリースペースの入口ドアもこだわりの作り
もともと時計だったものをリメイクしてドアの小窓にしたんだとか
1階のフリースペース手前にあるクロークスペース
1階のフリースペース手前にあるクロークスペース。棚は靴棚として使うのがよさそう
メイク渋滞が起きない洗面台
1階のトイレ
お風呂はシンプルな白いユニットバス
3階のトイレ
■ 店舗利用OKになりました!
造形作家・水田典寿氏の空間創造力に惚れ込んだオーナーさんが、ご自宅だったこの戸建の改装を依頼され、その後も水田氏のディレクションによる数度の改装が加えられた結果、独特な世界観を持つ内装に生まれ変わったこの戸建。
住居としても事務所としても利用可能なこの物件は新国立競技場にほど近くにあり、スターバックスやBLUE SIX COFFEE、Meiji Park Market、natuRe tokyoなどのカフェやレストランのある明治公園まで徒歩2分、ナチュラルワインで有名なVirtus Wineも徒歩1分という好立地。
1階部分には前室となるクロークスペースと、その奥にはワークスペースや大きなウォークインクローゼットとして使いやすそうなフリースペース。洋服が本業の方でもこれだけ広い収納があれば十分でしょう。
2階は料理が本業な方にも満足いただけそうな、大型食洗機を備えた巨大なキッチン。LDの出窓はディスプレイ棚に改装され、壁面の窓も古びた鉄枠で塞いで明かり窓に。
3階へと続く階段に差し掛かると、大きな天窓から降り注ぐ気持ちのいいトップライトが。木工・鉄工どちらのプロでもある水田さんが制作した、縁にモールディングを回し真鍮の滑り止めを加えた階段と手摺りのディティールにも唸らされます。
エアコンダクトの目隠しを兼ねつつアンティークにマッチする雰囲気を出すために、梁の両側をアーチ状にする工夫や、日本ではあまり見かけない貼り方のフローリング、この部屋のために造作したドアやミラー建具など、水田さんの世界観で溢れています。
リビングよりやや広い主寝室の窓先には、気持ちのよいウッドデッキテラス。電動オーニングにより日射しと視線をシャットアウトでき、真夏でも快適に過ごせます。大理石天板の丸いテーブルなど、写真に写る家具類はそのまま残るので、インテリアを考えるのも楽しそうです。
そして4階はアールがかった天井が印象的な細長い洋室。上階にいくほど日当たりと見晴らしが良くなってくる戸建の特徴がよく現れたとにかく気持ちがいい空間で、ここが自分の職場だったら最高なのに、と妄想してしまいます。
住居も事務所もどちらもOKですが、駐車場がなく、近隣での確保も難しそうなエリアです。自転車は1台であれば敷地内に停められそうですが、自転車を道路にはみ出して駐輪するのは絶対NGです。その点はあらかじめご了承ください。
かわいらしい外観を彩るテイカカズラは毎年5〜6月になると小さな白い花を咲かせます。植物を育てることも楽しみながら暮らしていただけたらうれしいです。
必須(【事務所】初回保証委託料:月額賃料の1ヶ月分、年間保証料10,000円、口座引落手数料:月額330円/【住居】初回保証委託料:月額賃料の0.5ヶ月分、年間保証料10,000円、口座引落手数料:月額330円)
エアコン5台/追焚機能/浴室乾燥機/食洗機/トイレ2箇所/ウォシュレット/モニター付インターホン
<募集条件>【住居】賃料650,000円、敷金1ヶ月、礼金1ヶ月、【事務所・店舗】賃料748,000円(税込)、敷金4ヶ月、礼金1ヶ月 ※不特定多数の出入りがなく、騒音や振動などのない業種に限る)/室内禁煙(電子タバコ含む)/鍵交換代 27,500円(契約時)
定期借家契約2年間/再契約相談/再契約料:新賃料の1ヶ月分/貸主インボイス未登録/取引態様:媒介/要火災保険契約