NO. 184 キッチュなキッチンとインテリアが映える家

キッチュなキッチンとインテリアが映える家 インテリア付き!(照明・シェルフ)
さらに写真を表示する
価格
9,980万円(税込)
建物面積
102.57㎡
所在地
目黒区大岡山
交通
目黒線「大岡山」駅 徒歩9分/大井町線「緑が丘」駅 徒歩11分
NO. 184 キッチュなキッチンとインテリアが映える家
価格:
9,980万円(税込)
建物面積:
102.57㎡
所在地
目黒区大岡山

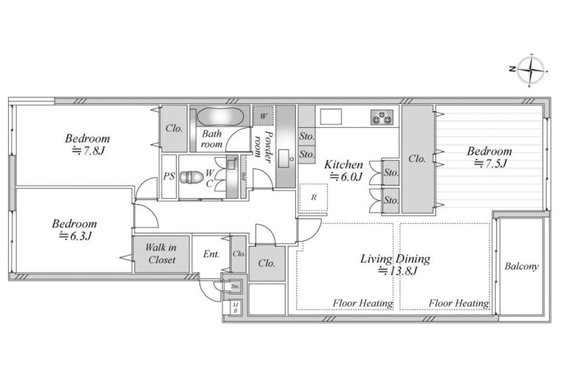
間取り FLOOR PLAN

※現況と図面が異なる場合には、現況を優先するものとします。

コメント COMMENT

大岡山駅と緑が丘駅の中間地点の住宅街の中にある低層マンション。1住戸の面積が広い分、22世帯のみと世帯数が少なく、大型マンション等が苦手な方にはおすすめな建物です。建物の周りには緑が多いのも目を引くポイントです。

室内はフルリノベーションされており、内装が一新され生まれ変わっています。

壁や天井、建具に木の温もりを感じる内装のリビングと、白の目地に鮮やかな青のタイルがポップで目を引く素敵なキッチンがお出迎えします。まだインテリアが室内に入っていないにも関わらず、すでに空間が美しく成立していることに驚きを隠せません。リビングには床暖房が完備されており、設備面としてもスペックが高く、さらにHermanMillerのネルソンパネルランプが3台、フォークラダーシェルフが1台設置されており、こちらもインクルードされたお部屋です。だからでしょうか、入居してインテリアを置いて暮らすイメージがつきやすい。

洋室は3部屋ありますが、各部屋に収納スペースがあり実用性が高い点もポイントです。リビングの隣にある洋室は、もしリビングを広く使いたいのであれば開放してリビングの一部として使ってしまうのも手ですし、廊下を挟んで2部屋の洋室が他にもあるため、書斎や寝室をリビングから離して使うことも出来る。

キッチン以外の洗面、浴室、トイレ等は廊下からのアクセスとなり、どの部屋からも気兼ねなく利用できる点に於いても使い勝手の良い間取りと言い切れると思います。生活時間帯が異なる家族等との生活でもストレスが少なく過ごせそう。

目を引くポイントがありながらシンプルで多くの人に刺さるであろう内装や、3LDKとしても少しリビングを広く使った2LDKとしても使うことの出来る間取り、静かな住宅街に位置し少ない住戸数のゆったりとした低層マンション、きっと刺さる方が多いと思っています。

注意すべき点としては、建物が傾斜地に建っておりエントランスは4階部分。エレベーターはありません。お部屋までは実質2階分の階段を登らなくてはいけませんので、ご留意ください。

大岡山駅周辺は、賑やかすぎず程良く商店街や買い物の出来るお店が駅前に点在しており、生活利便性が高いです。自由が丘方面も近いため自転車で少し足を伸ばして日常のお買い物に行くのも手かと。また目黒線で目黒駅まで出れば山手線への乗り換えも可能なので、通勤や遊びなどのアクセスも良いのが嬉しいところ。

何より、この部屋にインテリアが入りお部屋に命が宿った姿を見てみたいな、と思います。我こそはという方、ぜひお問合せをお待ちしています。

詳細データ FUDOSAN INFO

物件種別
売買マンション
価格
9,980万円(税込)
建物面積
102.57㎡
管理費
22,580円
修繕積立金
19,480円
所在地
目黒区大岡山
交通
目黒線「大岡山」駅 徒歩9分/大井町線「緑が丘」駅 徒歩11分
構造規模
鉄筋コンクリート造 7階建
所在階
6階
総戸数
22戸
築年
1981年
土地権利
所有権
都市計画
市街化区域
現況
空室
引渡時期
相談
ペット
設備

床暖房(リビング)/食洗機付きキッチン/エアコン4台

備考
管理形態:全部委託(日勤)/分譲会社 : 日綿実業株式会社/施工会社 : 株式会社新井組/管理会社 : 日本ハウズイング株式会社

駐輪場:あり(空き要確認)/駐車場:4台あり(空き無し)/バイク置き場:無し

担当
玉井
情報登録日 2025年10月10日/情報修正日 2025年10月10日/更新予定日 2026年03月29日

関連記事 RELATED MAGAZINE

LINE物件配信サービス『もっとホビー不動産 β』

※これまでご登録いただいていた LINE物件配信サービス『もっとホビー不動産 β』 について、運営体制や配信内容を見直すため、一旦サービスを休止させていただくことになりました。

LINE物件配信サービス『もっとホビー不動産 β』を開始します。
サイトに載っていない物件も 《もっと》お届けする『スルーパス』、担当者が物件探しに伴走する『SUCCESS』の2つのコースが選べます。

PICK UP
NO. 271 両手に水辺
水辺ファンの皆様、お待たせしました! 隅田川と荒川という、東京都が誇る二つの河川に囲まれた中洲のような地形にあるこのマンション。 リビングの目の前にはスコーンと広がる隅田川の眺望が。静かに流れる水面を見ていると心まで穏やかになるようです。 ...
2,800万円
61.56㎡
足立区小台
日暮里舎人ライナー「足立小台」駅 徒歩8分/千代田線「北千住」駅 王子駅前行バス9分 「小台東」バス停下車 徒歩3分
NO. 264 天高スキップフロアはHOMEでありBASE
一見して分かる、天高のあるスキップフロア。 でも実際に足を踏み入れると、「それだけじゃない」と気づきます。 まず印象的なのは、地階部分。 このお部屋付属の占有駐車場。その横に設けられた地階側玄関から入ると、約11.8帖のDEN空間が広がりま...
12,790万円 (税込)
108.02㎡
中野区中野
総武線・大江戸線「東中野」駅 徒歩10分/東西線「落合」駅 徒歩11分/中央線「中野」駅 徒歩15分/西武新宿線「新井薬師」駅 徒歩16分
NO. 270 シームレスに溶け合う建築と家具
代々木八幡宮と代々木公園という緑豊かな環境に囲まれた美しい敷地に立つヴィンテージマンションの一室。 長く受け継がれていく住まいを目指してこの空間を企画したリノベーション会社と、職人の手作業と緻密な機械加工を融合させた美しい家具作りで有名な「...
15,980万円 (税込)
98.13㎡
渋谷区代々木
小田急線「代々木八幡」駅 徒歩7分/千代田線「代々木公園」駅 徒歩8分/小田急線「参宮橋」駅 徒歩9分