NO. 189 Bakurocactus

Bakurocactus 馬喰町にある、黒いプランターに植わったサボテンのような外観からBakurocactusと名付けられた建物
さらに写真を表示する
賃料
143,000円(税込)
管理費
なし
専有面積
23.92㎡
所在地
中央区日本橋馬喰町
交通
総武線「浅草橋」駅 徒歩4分/都営浅草線「浅草橋」駅 徒歩7分/総武快速線「馬喰町」駅 徒歩3分 /都営新宿線「馬喰横山」駅 徒歩8分/都営浅草線「東日本橋」駅 徒歩9分/日比谷線「小伝馬町」駅 徒歩10分
敷金
3ヶ月
礼金
1ヶ月
NO. 189 Bakurocactus
賃料:
143,000円(税込)
管理費:
なし
専有面積:
23.92㎡
所在地:
中央区日本橋馬喰町

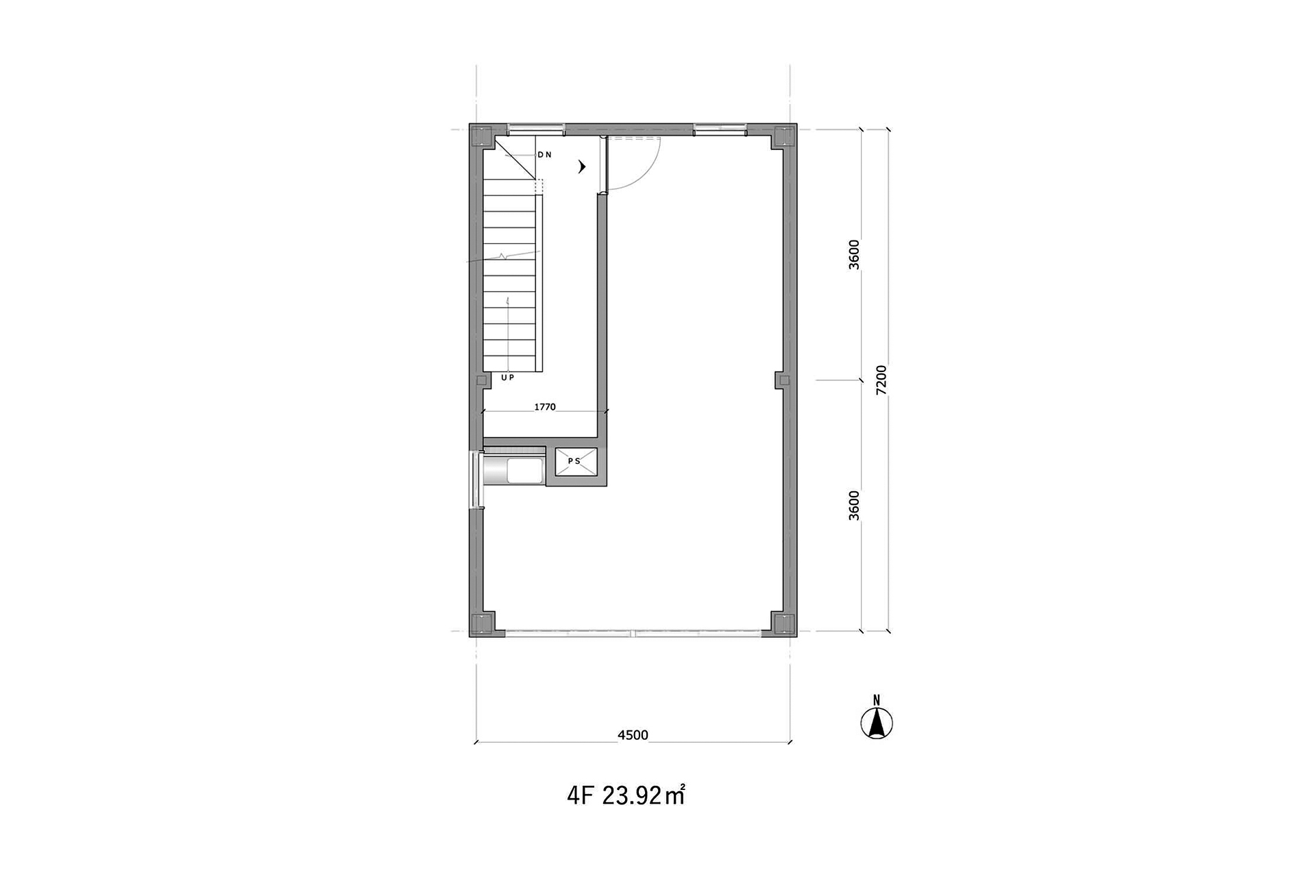
間取り FLOOR PLAN

※現況と図面が異なる場合には、現況を優先するものとします。

コメント COMMENT

馬喰町にある、黒いプランターに植わったサボテンのような外観からBakurocactusと名付けられたこの建物。

植物界隈の方なら見覚えのある方、もしくはよく通われていた方も多いであろうビルの4Fを、店舗限定で募集します。

昔はアパレル関係の工場兼事務所として使われていた建物をフロア毎の店舗に改装し、これまで各階に個性的な店舗やギャラリーなどが入居されてきた建物につき、今回もユニークな店舗を期待してしまいます。

ムラ感のある黒いモルタルの床に、東側の壁一面は石膏ボードの裏に合板を入れてあるためビス止めOK。天高2.9mの開放的な空間に味のある赤錆色の鉄骨剥き出しの天井と、什器を入れればすぐに店舗が営業開始できる見た目が整っています。

奥のコーナーには水遣りにちょうどいいシンクもあって、植物屋さんだった前テナントさんから引き継いだ、壁面向きのライティングレールも設置済み。アート作品や植物にライトを当てるのにバッチリな仕様になっています。

コンパクトな店舗ですが、トイレは2階と3階の階段室に男女別トイレが1箇所ずつあるので、専有面積はフル活用できます。毎週、清掃業者が水回りや階段を掃除してくれるのでビル全体は常にキレイに保たれています。

エレベーターなしの4階ですが、それでも店舗が成り立つことは過去の2組の入居者さんが証明してくれていて、2組とも拡大移転された縁起のいいビルでもあります。

1つだけ事前にお詫びをしておきたいのですが、ビル全体のフィーリングが重視される物件のため、必ずしもお申し込みをされればご入居可能、とはならない点だけあらかじめご容赦ください。

工事費用が高騰する時代に改装費がかからず、住居を借りるより少額な予算でスタートできる店舗というのはうれしいポイント。またこれくらいのコンパクトな店舗物件もなかなか希少だと思います。

植物屋さんや古道具屋さん、ギャラリーや物販店舗などにハマりがいい気がしますが、マニアックな業種なども大歓迎です。

詳細データ FUDOSAN INFO

物件種別
貸店舗
賃料
143,000円(税込)
管理費
なし
専有面積
23.92㎡
所在地
中央区日本橋馬喰町
交通
総武線「浅草橋」駅 徒歩4分/都営浅草線「浅草橋」駅 徒歩7分/総武快速線「馬喰町」駅 徒歩3分 /都営新宿線「馬喰横山」駅 徒歩8分/都営浅草線「東日本橋」駅 徒歩9分/日比谷線「小伝馬町」駅 徒歩10分
敷金
3ヶ月
礼金
1ヶ月
構造規模
鉄骨造 4階建
所在階
4階
築年
1970年
現況
空室
ペット
不可
保証会社

必須(初回保証委託料:月額賃料の1ヶ月分、年間保証料10,000円、口座引落手数料:月額330円)

設備

エアコン/共用トイレ(男女別)/シンク

備考

店舗利用限定(飲食を伴う業種、騒音・臭気を発する業種、美容院・サロン系業種不可)/ビルとの相性を考慮しての入居者様決定となり、お申し込みの先着順ではありません/事務所利用不可/エレベーターなし/仲介手数料はかかりませんが、契約事務手数料として賃料1ヶ月分+消費税がかかります

定期借家契約2年間/再契約相談/再契約料:無料/貸主インボイス登録済/取引態様:貸主/要火災保険契約
担当
室田
情報登録日 2025年10月16日/情報修正日 2025年10月16日/更新予定日 2026年04月25日

関連記事 RELATED MAGAZINE

LINE物件配信サービス『もっとホビー不動産 β』

※これまでご登録いただいていた LINE物件配信サービス『もっとホビー不動産 β』 について、運営体制や配信内容を見直すため、一旦サービスを休止させていただくことになりました。

LINE物件配信サービス『もっとホビー不動産 β』を開始します。
サイトに載っていない物件も 《もっと》お届けする『スルーパス』、担当者が物件探しに伴走する『SUCCESS』の2つのコースが選べます。

PICK UP
NO. 298 路面なのに隠れ家な店舗
恵比寿駅からスカイウォークとガーデンプレイスを抜けた先、長者丸エリアの一角に新築されたばかりの小さな路面店舗・事務所。 人通りは多くない。でも、その分“わざわざ来る人”だけが訪れる場所です。 建築家の手による端正な空間は、什器を置くだけで成...
159,500円 (税込)
16.27㎡
目黒区三田
山手線・湘南新宿ライン・埼京線「恵比寿」駅 徒歩7分/日比谷線「恵比寿」駅 徒歩10分
NO. 294 ビルからまちに滲み出す
東京という都市の特徴のひとつに、駅ごと・エリアごとに、それぞれの人の流れや街の表情があることが挙げられます。 その中で、代田橋は少し不思議な立ち位置にある街です。 新宿まで電車で約7分。歩いても1時間ほど。環七と甲州街道が交差して、井の頭通...
187,000円 (税込) 〜308,000円 (税込)
24.18㎡ 〜44.26㎡
世田谷区大原
京王線「代田橋」駅 徒歩1分/京王線「笹塚」駅 徒歩16分/小田急線・京王井の頭線「下北沢」駅 徒歩23分
NO. 284 新旧Half&Half〜新しい食の拠点〜
新横浜駅から徒歩5分、住宅地側の坂を少し登った高台に立つ目新しい施設があります。「新横浜食料品センター」という名前のその施設は、誰もがいつでも気軽に立ち寄れる“地域のダイニングキッチン”をコンセプトにした、まるで家の延長のような食の拠点です...
49,500円 (税込) 〜126,500円 (税込)
9.78㎡ 〜26.51㎡
横浜市港北区篠原町
東急新横浜線・相鉄新横浜線・横浜市営ブルーライン「新横浜」駅 徒歩5分/横浜線・東急東横線「菊名」駅 徒歩14分