NO. 188 アップサイクル店舗事務所

アップサイクル店舗事務所 古い建具や床材をアップサイクルして壁面やファサードに用いたデザインが印象的
さらに写真を表示する
賃料
275,000円(税込)
管理費
なし
専有面積
54.80㎡
所在地
台東区小島
交通
都営大江戸線「新御徒町」駅 徒歩1分/山手線・京浜東北線「御徒町」駅 徒歩10分/銀座線「稲荷町」駅 徒歩8分/日比谷線「仲御徒町」駅 徒歩8分
敷金
3ヶ月(事務所)、6ヶ月(店舗)
礼金
1ヶ月
NO. 188 アップサイクル店舗事務所
賃料:
275,000円(税込)
管理費:
なし
専有面積:
54.80㎡
所在地:
台東区小島

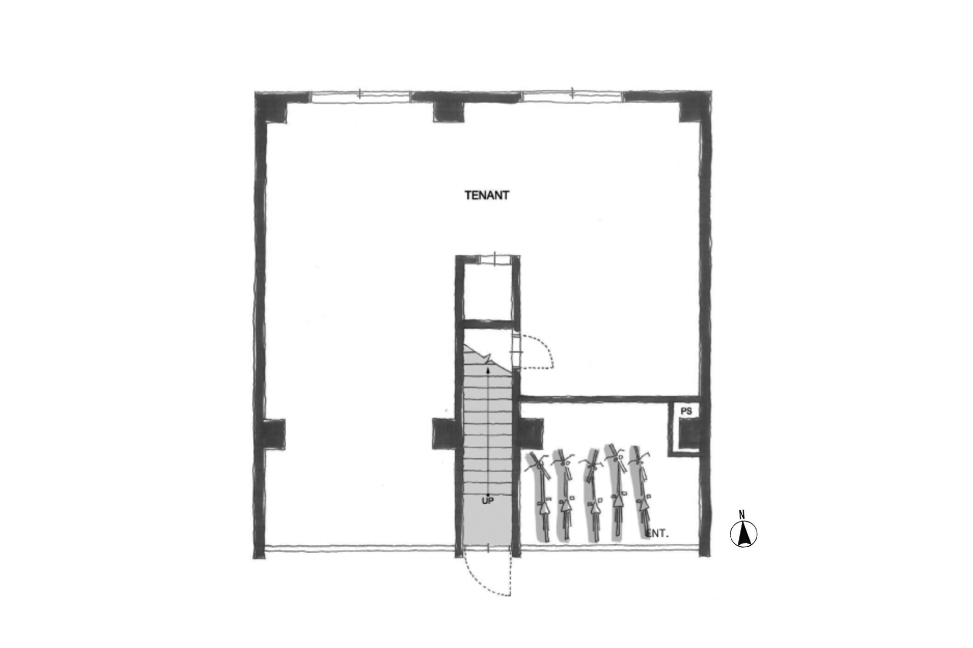
間取り FLOOR PLAN

※現況と図面が異なる場合には、現況を優先するものとします。

コメント COMMENT

古い建具や床材をアップサイクルして壁面やファサードに用いたデザインが印象的な、路面の事務所/店舗区画を居抜きで引き継いでくださる方を募集します!

もともとはがらんどうの倉庫のようなスケルトンだった区画に、現テナントが作り上げた空間は手仕事感のある魅力的なつくり。軽飲食の店舗にも事務所にも、ハマりのいいデザインです。

中央のラワン材の箱の中に収まったトイレを中心に、ひとつながりながら左右に緩やかに区画されているため、事務所であれば来客スペースをワークスペースを分けたり、店舗であれば客席と厨房を分けたりといった使い分けができそう。

土間の床に造作されたモルタルのキッチンは、カフェやバーとしての営業につき調理を伴わないためコンロがない簡易的なもの。カウンター下にはコールドテーブルや食洗機、製氷機などが収まっています。

動かせるテーブルや照明、棚については撤去されますが、壁に造り付けられた棚や飲食業許可のためのパタパタ扉、キッチンや壁沿いの木製カウンター、エアコンやトイレ、換気扇などはそのままお引渡しが可能です。

目を引くファサードと視認性の高い路面区画ですが大通りから少し入った路地に面しているため、通りのお客さんがフラッと入ってくることで売上を立てる店舗ですと厳しいと思います。

天高のある空間なので、物販やショールーム的な用途でも、商品が映える見せ方ができそうなので、そうした目的来店の方がメインとなる業種に相性が良さそうです。

アップルサイクルで生まれ変わったこの空間を、うまくリユースしてくださる方、お待ちしてます!

詳細データ FUDOSAN INFO

物件種別
貸事務所/貸店舗
賃料
275,000円(税込)
管理費
なし
専有面積
54.80㎡
所在地
台東区小島
交通
都営大江戸線「新御徒町」駅 徒歩1分/山手線・京浜東北線「御徒町」駅 徒歩10分/銀座線「稲荷町」駅 徒歩8分/日比谷線「仲御徒町」駅 徒歩8分
敷金
3ヶ月(事務所)、6ヶ月(店舗)
礼金
1ヶ月
構造規模
鉄筋コンクリート造 4階建
所在階
1階
築年
1965年
現況
賃貸中
ペット
不可
保証会社

必須(初回保証委託料:月額賃料の1ヶ月分、年間保証料10,000円、口座引落手数料:月額330円)

設備

エアコン2台/トイレ/ガス給湯器(事務所利用の場合のみ設備、店舗利用の場合はすべて残置物)/コンロなし/電灯:15kVA(動力なし)/ガス:13A 45メガジュール/水道:20mm

備考

軽飲食店舗相談、重飲食不可/騒音、臭気を発する業種不可/営業時間22時まで/2026年1月末退去予定ですが内見可能/2026年2月〜入居可能

普通借家契約2年間/更新料:(新賃料の1ヶ月分)/貸主インボイス未登録/取引態様:媒介/要火災保険契約
担当
室田
情報登録日 2025年10月17日/情報修正日 2025年10月17日/更新予定日 2026年03月05日
PICK UP
NO. 243 住むように働く、働くように住む
住居兼用◯◯という使い方ができる家が増えました。時代の変化に伴いライフスタイル、働き方の変化が家の使い方にも反映されてきていてうれしいです。 今回ご紹介する1階の2区画の部屋は“住居兼用店舗・事務所利用ができる”というよりも、むしろ“住居兼...
130,000円 〜150,000円
33.49㎡ 〜40.33㎡
杉並区高井戸東
井の頭線「高井戸」駅 徒歩6分
NO. 247 駅前商店街すぐの公園隣りの店舗で始める
ファサードの可愛らしさと、隣が公園という恵まれたロケーション。

素敵で小ぶりな店舗のご紹介です。 占有面積は35㎡。ワンオペで10席前後の軽飲食にちょうど良い、コンパクトで扱いやすいサイズ感です。 まず目を引くのは、アンティーク調の扉と大...
148,500円
35㎡
新宿区住吉町
都営新宿線「曙橋」駅 徒歩3分/都営大江戸線「若松河田」駅 徒歩10分/丸ノ内線 「四谷三丁目」駅 徒歩11分
NO. 229 “暮らしながら◯◯”を叶える家
建築家設計の新築の3階建て、3.8mの天井高を誇る開放的なリビングから屋上のテラスにアクセスでき、1階のガレージ部分では店舗や事務所も作ることができる「こういうことが出来たらいいな」が一挙に詰まった家があります。 表参道駅からまい泉通りを進...
950,000円
133.64㎡
渋谷区神宮前
半蔵門線・銀座線・千代田線「表参道」駅 徒歩7分/銀座線「外苑前」駅 徒歩8分