NO. 191 集合住宅界の金字塔

集合住宅界の金字塔 ワイドすぎる窓からは緑と青空しか見えない景色
さらに写真を表示する
価格
10,800万円
建物面積
208.23㎡
その他面積
ルーフバルコニー:69.82㎡
倉庫:3.96㎡
所在地
川崎市麻生区高石
交通
小田急線「百合ヶ丘」駅 徒歩11分
NO. 191 集合住宅界の金字塔
価格:
10,800万円
建物面積:
208.23㎡
所在地
川崎市麻生区高石

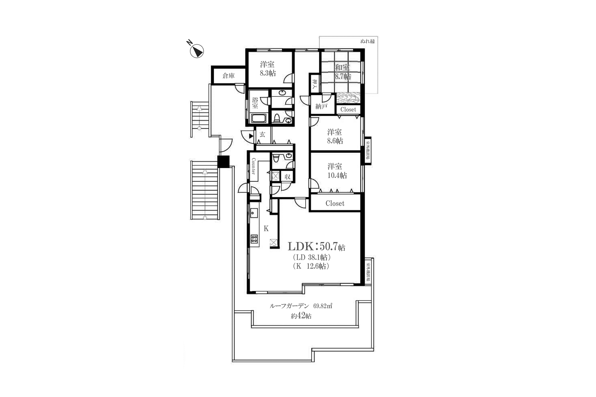
間取り FLOOR PLAN

※現況と図面が異なる場合には、現況を優先するものとします。

コメント COMMENT

過去に1,000件を超える不動産を内見し、内見家を自称する僕ですが、集合住宅のジャンルの中では過去イチ衝撃を受けたのがこの物件。

約1.6万㎡の広大な公園のような敷地の南傾斜の地形を活かし、各部屋に大きなルーフバルコニーを備えた緑あふれる低層マンションの、3階ワンフロア占有。

起伏ある地形にひな壇状に建てられており、上階からの荷重が少ないためか、約50畳のLDKには柱梁の凹凸がなく、見たことがないほどワイドな開口部から、緑と青空しか見えない眺望が広がります。

手前側約半分がウッドデッキになった、約70㎡、畳数にしてなんと42畳もある大きなルーフガーデンに立つと、もはやここがどこなのか分からなくなる不思議な感覚に陥ります。

草で覆い尽くされたルーフガーデンの奥半分には、高さ3m以内の樹木までは植樹OK!ということで、夢のようなお庭を作り込んでみたいところ。

ゆとりある間取り、なんて一般的な言葉を使うのを憚られるほど巨大な約208㎡の室内に、東京の一般的な家庭に生まれ育った僕のヒューマンスケールは簡単にバグってしまいました。

でもね、建築費高騰の時代に、この広さをフルリノベーションしたらさぞかしお高いんでしょう?と不安になるのはごもっともですが、間取りは変更の必要がないほどよく、水回りは近年リフォームされていると思われ、いたってキレイ。

賃貸の原状回復レベルの修繕でも十分に住めそうな状態で、むしろこの雰囲気が好きな方もいそう。改装費は最低限で500万円以内で抑えるプランから、フルリノベであれば5,000万円かかっても驚かないほど、幅広いレンジになりそうです。

各住戸1台分の駐車場使用権があり、トランクルームも付帯し、ペットの飼育も可能。庭も作り込めるとなれば、まさに戸建のライフスタイルが実現できる集合住宅だといえます。

駅からマンションまでアップダウンのある徒歩11分と決して楽な道のりではありませんが、マンションの正面と裏口から駅までのコミュニティバス(月、火、木、金のみ運行)も利用可能です。

敷地に入っても丘の地形を上り、エレベータなしの3階までさらに上る必要ありと、足腰に自信のある方にしか向きませんが、そんなことはどうでもいいから絶対にここに住んでみたい!と思わせるだけの魅力がある物件です。

斜面の魔術師とも称された建築家・井出共治氏の作品に、僕は完全に魅了されました。ここにはエレベーターがなくても味わいたい風景があります。これは集合住宅界の金字塔。

内見される方に1つ注意点があります。一度この部屋を見てしまい、この物件が不動産購入判断の基準になってしまうとハードルが上がりすぎ、以後の不動産選びをこじらせる恐れがあります。この物件を購入される可能性がゼロだ、という場合は、絶対に内見しないことを強くおすすめします。

詳細データ FUDOSAN INFO

物件種別
売買マンション
価格
10,800万円
建物面積
208.23㎡
管理費
37,100円
修繕積立金
37,130円
その他費用
駐車場使用料:15,000円(建物1階周辺に1住戸1台分 使用権付帯)
所在地
川崎市麻生区高石
交通
小田急線「百合ヶ丘」駅 徒歩11分
構造規模
鉄筋コンクリート造 4階建
所在階
3階
総戸数
81戸
築年
1986年
土地権利
所有権
地目
宅地
用途地域
第一種低層住居専用地域
都市計画
市街化区域
現況
空室
引渡時期
相談
ペット
可 (犬・猫可、他の居住者に迷惑を及ぼす恐れのない動物、要申請)
備考
管理形態:全部委託(日勤)/分譲会社 : 株式会社第一ホテルエンタープライズ/施工会社 : 鹿島建設株式会社/管理会社 : 三井不動産レジデンシャルサービス株式会社
担当
室田
情報登録日 2025年10月22日/情報修正日 2025年10月22日/更新予定日 2026年05月15日

関連記事 RELATED MAGAZINE

LINE物件配信サービス『もっとホビー不動産 β』

※これまでご登録いただいていた LINE物件配信サービス『もっとホビー不動産 β』 について、運営体制や配信内容を見直すため、一旦サービスを休止させていただくことになりました。

LINE物件配信サービス『もっとホビー不動産 β』を開始します。
サイトに載っていない物件も 《もっと》お届けする『スルーパス』、担当者が物件探しに伴走する『SUCCESS』の2つのコースが選べます。

PICK UP
NO. 320 モルタルキッチンの都心リゾート
中央にどんと据えられた大きなモルタルキッチン。これが、この部屋の主役です。 調理スペースの床が一段掘り下げられているためキッチンカウンターに腰かけると、調理する人と自然に目線が合うようになっており、料理をしている間もゲストとの会話が途切れま...
21,800万円
70.10㎡
港区南麻布
南北線・都営大江戸線「麻布十番」駅 徒歩9分/南北線・都営三田線「白金高輪」駅 徒歩10分
NO. 297 空を取り込む
南側に抜けた眺望と、その手前にあるインナーバルコニーが与えてくれえる開放感はやっぱり素敵でした。 窓外の開放感を更に高めてくれるのが、このインナーバルコニー。 起き抜けのコーヒーを飲みながら眺める空。舞う鳥たち。観葉植物越しに眺める空が日頃...
8,180万円
94.92㎡
杉並区南荻窪
中央・総武線 「荻窪」駅 徒歩7分/丸ノ内線 「荻窪」駅 徒歩7分
NO. 264 天高スキップフロアはHOMEでありBASE
一見して分かる、天高のあるスキップフロア。 でも実際に足を踏み入れると、「それだけじゃない」と気づきます。 まず印象的なのは、地階部分。 このお部屋付属の占有駐車場。その横に設けられた地階側玄関から入ると、約11.8帖のDEN空間が広がりま...
11,490万円 (税込)
108.02㎡
中野区中野
総武線・大江戸線「東中野」駅 徒歩10分/東西線「落合」駅 徒歩11分/中央線「中野」駅 徒歩15分/西武新宿線「新井薬師」駅 徒歩16分