NO. 205 Lと◻︎の居場所テトリスLDK

Lと◻︎の居場所テトリスLDK L字LDKと内窓のある個室
さらに写真を表示する
価格
4,680万円
建物面積
91.88㎡
その他面積
バルコニー面積7.12㎡
所在地
川崎市宮前区土橋
交通
田園都市線「鷺沼」駅 徒歩10分/田園都市線「宮前平」駅 徒歩15分
NO. 205 Lと◻︎の居場所テトリスLDK
価格:
4,680万円
建物面積:
91.88㎡
所在地
川崎市宮前区土橋

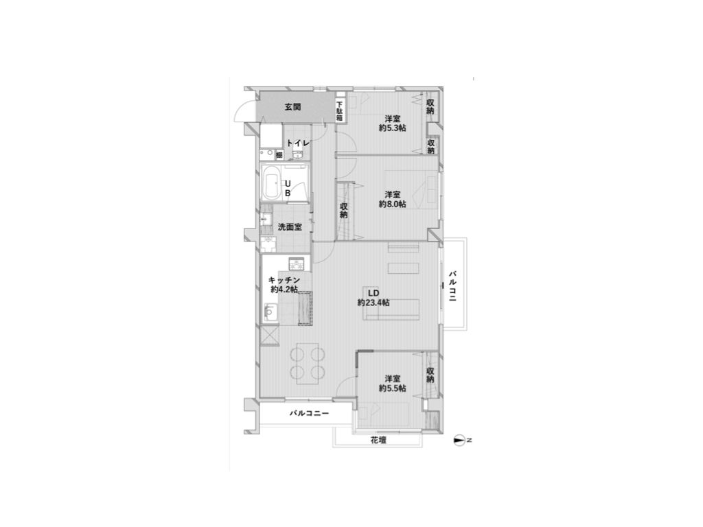
間取り FLOOR PLAN

※現況と図面が異なる場合には、現況を優先するものとします。

コメント COMMENT

【価格改定しました!】

居室を囲うL字型で合計27.6畳大のLDKに囲われる約5.5畳の個室、という間取りが特徴的なマンション。

まず、キッチンエリアを中心に、左右に広がる片側をダイニング、もう片方をリビングに、という感じでゾーニングがはっきりしており、使い分けしやすい間取りとして大いにアリだなと思いました。

日当たりが良く抜け感もあり、気持ちよさそうな東側をダイニング。北側のマンションビューな窓側をリビングにするのが良さそうです。

真ん中にあるキッチン自体もL字型で、一端に3口のガスコンロ、もう一端に十分なサイズ感ある流し台に食洗機という構成。

機能的にも存在的にもカラー的にもアクセントになっているキッチンカウンターは、コーヒーやお菓子づくりがお好きな方には特に趣味的に楽しめるエリアになること間違いなし。

そして、このLDKに囲われている個室は、室内窓でLDKとやんわりとつながっており、個室ではあるものの、寝室としてだけでなく、例えば勉強部屋であったり、仕事部屋、趣味の部屋であったりといった使い方にもちょうど良い作り。

他にも居室は2部屋あり、どちらにも部屋サイズに合った収納があり、それぞれ約8畳と約5.3畳で使い勝手も良さそうでした。

なので、家族構成にもよるとは思いますが、寝室はその2部屋に任せて、LDK横のこの個室は、『しっかり目にゾーニングされたタイプのLDKの一部分』と考えることもできるわけです。

そんな、この居場所の多いLDKは、テレビを中心とした団欒の形だけでなく、それぞれが自分のやりたいことをして過ごす、新しい形の団欒も送りやすいこれからのLDKとも言えるだろうと思います。

あと、間取りで特徴的なのは、折り畳んでベビーカーなども色々と置けそうな位に奥行きがある玄関ですね。窓があって明るいのもいいですね。

トイレはもちろん清潔感があって、お風呂は十分な広さと追焚機能、浴室乾燥機、浴室暖房が備わっており、機能面でも問題なし。

建物は5階建てで、居室は2階部分。

ただし一階が駐車場とエントランスなのと、ちょっとした傾斜地に建っていることもあって、玄関を出た通路部分のすぐ横には地面が。

地方生まれの戸建育ちな私にとっては、このくらいが落ち着きます。

そもそも鷺沼駅周辺は全体的に傾斜地が多く、駅までも、少し上り下りのある道になっており、道中には同様な感じで建つマンションや戸建、公園などがあり、この町らしい景色を作っています。

徒歩で10分ほどの鷺沼駅前は、特別栄えているわけではないですが、必要なものは十分に揃っていて、また東名川崎インターが近いこともあり、マンションから徒歩10分圏内にはロードサイド系のファミレスなんかもいくつか。

大都会の暮らしより、こういう暮らしを楽しみつつ、用事があれば都会にも出かけるし、たまに海や山や田舎にも出かける、そんな暮らしがご希望の方にはもってこいだと思います。

詳細データ FUDOSAN INFO

物件種別
売買マンション
価格
4,680万円
建物面積
91.88㎡
管理費
20,600円
修繕積立金
25,180円
所在地
川崎市宮前区土橋
交通
田園都市線「鷺沼」駅 徒歩10分/田園都市線「宮前平」駅 徒歩15分
構造規模
鉄筋コンクリート造 5階建
所在階
2階
総戸数
20戸
築年
1982年
土地権利
所有権
用途地域
第二種中高層住居専用地域
都市計画
市街化区域
現況
空室
引渡時期
即可
設備

食洗機/追焚機能/浴室乾燥機/浴室暖房/ウォシュレット/都市ガス/電気温水器/エレベーター

備考
管理形態:全部委託(日勤)/施工会社 : 株式会社錢高組/管理会社 : 日本ハウズイング株式会社

駐輪場/駐車場:空き無し(月額13,000円〜16,000円)✳︎令和7年11月19日現在

担当
森岡
情報登録日 2025年11月22日/情報修正日 2025年11月22日/更新予定日 2026年03月29日

関連記事 RELATED MAGAZINE

LINE物件配信サービス『もっとホビー不動産 β』

※これまでご登録いただいていた LINE物件配信サービス『もっとホビー不動産 β』 について、運営体制や配信内容を見直すため、一旦サービスを休止させていただくことになりました。

LINE物件配信サービス『もっとホビー不動産 β』を開始します。
サイトに載っていない物件も 《もっと》お届けする『スルーパス』、担当者が物件探しに伴走する『SUCCESS』の2つのコースが選べます。

PICK UP
NO. 271 両手に水辺
水辺ファンの皆様、お待たせしました! 隅田川と荒川という、東京都が誇る二つの河川に囲まれた中洲のような地形にあるこのマンション。 リビングの目の前にはスコーンと広がる隅田川の眺望が。静かに流れる水面を見ていると心まで穏やかになるようです。 ...
2,800万円
61.56㎡
足立区小台
日暮里舎人ライナー「足立小台」駅 徒歩8分/千代田線「北千住」駅 王子駅前行バス9分 「小台東」バス停下車 徒歩3分
NO. 264 天高スキップフロアはHOMEでありBASE
一見して分かる、天高のあるスキップフロア。 でも実際に足を踏み入れると、「それだけじゃない」と気づきます。 まず印象的なのは、地階部分。 このお部屋付属の占有駐車場。その横に設けられた地階側玄関から入ると、約11.8帖のDEN空間が広がりま...
12,790万円 (税込)
108.02㎡
中野区中野
総武線・大江戸線「東中野」駅 徒歩10分/東西線「落合」駅 徒歩11分/中央線「中野」駅 徒歩15分/西武新宿線「新井薬師」駅 徒歩16分
NO. 270 シームレスに溶け合う建築と家具
代々木八幡宮と代々木公園という緑豊かな環境に囲まれた美しい敷地に立つヴィンテージマンションの一室。 長く受け継がれていく住まいを目指してこの空間を企画したリノベーション会社と、職人の手作業と緻密な機械加工を融合させた美しい家具作りで有名な「...
15,980万円 (税込)
98.13㎡
渋谷区代々木
小田急線「代々木八幡」駅 徒歩7分/千代田線「代々木公園」駅 徒歩8分/小田急線「参宮橋」駅 徒歩9分