NO. 206 光と風が抜けるインドア・ガーデン

光と風が抜けるインドア・ガーデン 植物のある暮らしを楽しむためにこだわったのは、南向きの光
さらに写真を表示する
価格
5,380万円
建物面積
75.45㎡
所在地
足立区東和
交通
千代田線「北綾瀬」駅 徒歩7分
NO. 206 光と風が抜けるインドア・ガーデン
価格:
5,380万円
建物面積:
75.45㎡
所在地
足立区東和

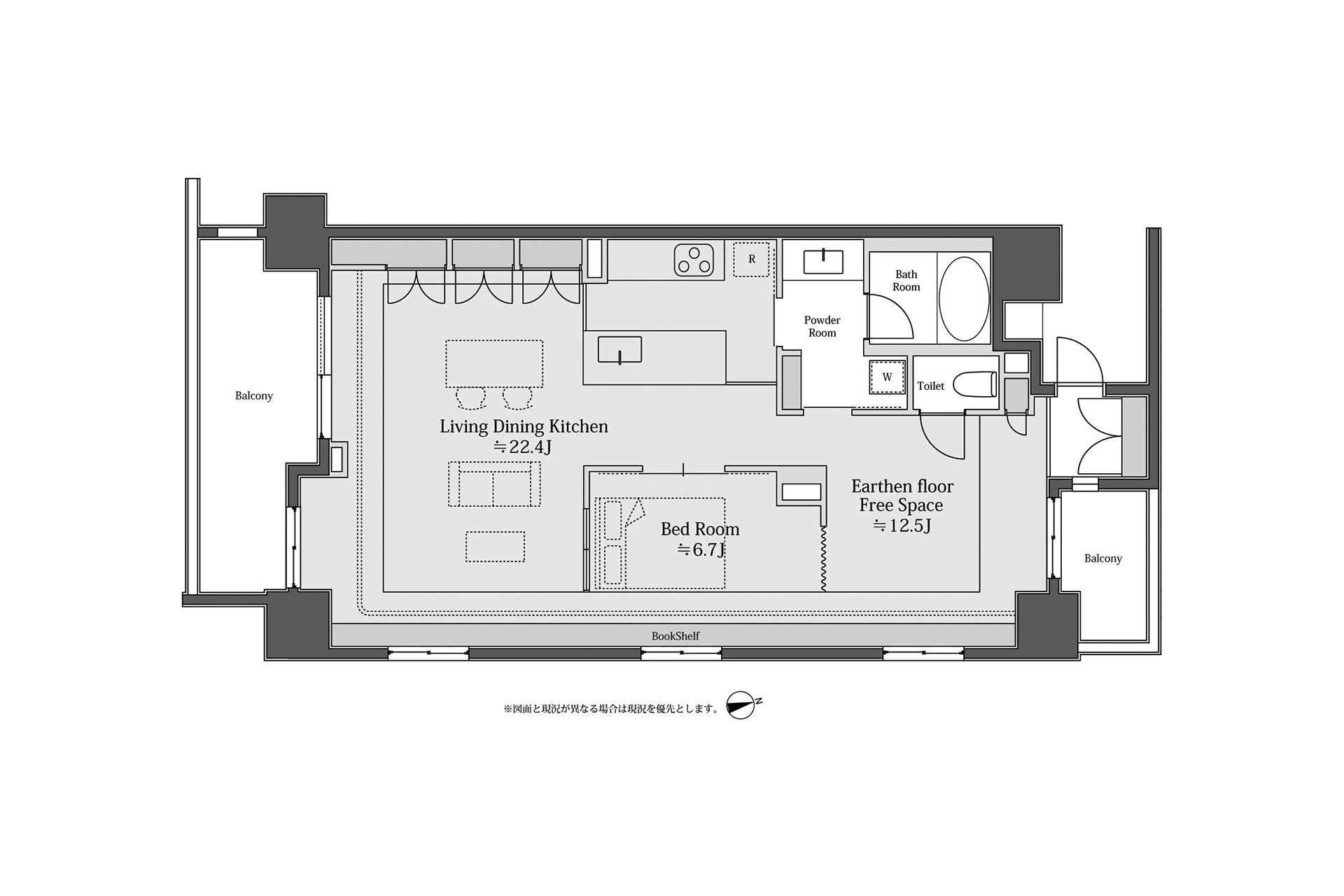
間取り FLOOR PLAN

※現況と図面が異なる場合には、現況を優先するものとします。

コメント COMMENT

植物好きのご夫婦が植物を思い切り楽しむために、2018年にアラキササキアーキテクツに依頼してリノベーションをした空間は、光と風であふれていました。

ご夫婦がたくさんの植物と暮らすために、南向きと広いバルコニーにこだわって選んだ物件は、リビングの3辺を土間で囲んだユニークなつくり。

土間の上部には、洋服や植物を吊るせるハンガーパイプが渡され、その下には腰高の造作棚がずらり。アパレルショップのように洋服を並べたり、本が多い方ならお気に入りの本に囲まれて暮らすのも楽しそうです。

南・東・北の三面採光がとれた大きなワンルームの中央に、コの字の壁で寝室を仕切ったシンプルな回遊式プラン。たくさんの窓からたっぷりと光が差し込み、家中を風が通り抜ける。植物にとって快適な環境は、同時に人にとっても心地よい住まいでもあります。

キッチンカウンターに立った際に正面が壁になって閉塞感が出ないよう、寝室の壁にポリカの室内窓を設けたことで、寝室にも採光通風が確保されています。

玄関側に設けられた余白のようなスペースは、書斎的に使ってもいいですし、将来家族が増えた際には壁で仕切って個室を作ることもできます。

最寄り駅の北綾瀬駅は千代田線の始発駅で、大手町まで25分と都心へのアクセスも良好です。駅周辺には「ららテラス北綾瀬」などのショッピング施設も充実。周辺にはしょうぶ沼公園や東綾瀬公園など、大規模な公園が点在する、暮らしやすい街並み。

都心部の不動産価格の高騰が甚だしい今、無理のない予算感で、少し距離を置きつつも電車でのアクセスに妥協せず、自然に囲まれてゆったりと過ごせる選択肢かもしれません。

モルタル、無垢材、鉄の素材感で統一したシンプルな空間は、植物が加わることによりその華やかさが際立ちます。ぜひお気に入りの植物に囲まれて、自分だけのインドア・ガーデンのある暮らしをお楽しみください。

詳細データ FUDOSAN INFO

物件種別
売買マンション
価格
5,380万円
建物面積
75.45㎡
管理費
21,860円
修繕積立金
21,200円
所在地
足立区東和
交通
千代田線「北綾瀬」駅 徒歩7分
構造規模
鉄筋コンクリート造 9階建
所在階
3階
総戸数
28戸
築年
2008年
土地権利
所有権
地目
宅地
用途地域
第一種住居地域
都市計画
市街化区域
現況
居住中
引渡時期
相談 (2026年3月下旬以降)
ペット
可 (飼育細則あり)
設備

オートロック/宅配ボックス/防犯カメラ

備考
管理形態:全部委託(日勤)/分譲会社 : 扶桑レクセル株式会社/施工会社 : 株式会社淺沼組/管理会社 : 株式会社大京アステージ

2018年6月リノベーション済み(一部既存利用)/駐車場:月額11,000円〜17,000円(2025/11/10現在空きあり)

担当
室田
情報登録日 2025年11月26日/情報修正日 2025年11月26日/更新予定日 2026年05月15日
PICK UP
NO. 320 モルタルキッチンの都心リゾート
中央にどんと据えられた大きなモルタルキッチン。これが、この部屋の主役です。 調理スペースの床が一段掘り下げられているためキッチンカウンターに腰かけると、調理する人と自然に目線が合うようになっており、料理をしている間もゲストとの会話が途切れま...
21,800万円
70.10㎡
港区南麻布
南北線・都営大江戸線「麻布十番」駅 徒歩9分/南北線・都営三田線「白金高輪」駅 徒歩10分
NO. 297 空を取り込む
南側に抜けた眺望と、その手前にあるインナーバルコニーが与えてくれえる開放感はやっぱり素敵でした。 窓外の開放感を更に高めてくれるのが、このインナーバルコニー。 起き抜けのコーヒーを飲みながら眺める空。舞う鳥たち。観葉植物越しに眺める空が日頃...
8,180万円
94.92㎡
杉並区南荻窪
中央・総武線 「荻窪」駅 徒歩7分/丸ノ内線 「荻窪」駅 徒歩7分
NO. 264 天高スキップフロアはHOMEでありBASE
一見して分かる、天高のあるスキップフロア。 でも実際に足を踏み入れると、「それだけじゃない」と気づきます。 まず印象的なのは、地階部分。 このお部屋付属の占有駐車場。その横に設けられた地階側玄関から入ると、約11.8帖のDEN空間が広がりま...
11,490万円 (税込)
108.02㎡
中野区中野
総武線・大江戸線「東中野」駅 徒歩10分/東西線「落合」駅 徒歩11分/中央線「中野」駅 徒歩15分/西武新宿線「新井薬師」駅 徒歩16分