NO. 232 アジト感のある建築士自邸で住む・働く

アジト感のある建築士自邸で住む・働く 躯体をくり抜いたような形で2部屋が繋がるアジト感のある空間
さらに写真を表示する
賃料
400,000円
管理費
なし
専有面積
74.86㎡
所在地
渋谷区神宮前
交通
山手線「原宿」駅 徒歩7分/副都心線「北参道」駅 徒歩6分/千代田線「明治神宮前」駅 徒歩10分
敷金
2ヶ月 (事務所利用を含む場合、3ヶ月)
礼金
1ヶ月
NO. 232 アジト感のある建築士自邸で住む・働く
賃料:
400,000円
管理費:
なし
専有面積:
74.86㎡
所在地:
渋谷区神宮前

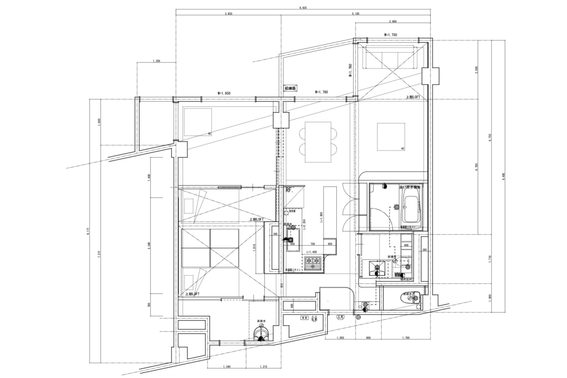
間取り FLOOR PLAN

※現況と図面が異なる場合には、現況を優先するものとします。

コメント COMMENT

建築士のオーナーさんがご自身の住居兼事務所とするためにリノベーションした、千駄ヶ谷小学校の信号付近の好立地にあるレトロマンションの一室。

マンション分譲当時の所有者が隣り合う2部屋を繋げて使っていたという空間は、リビングとその脇の洋室の境目で躯体がくり抜かれたような形で繋がっていて、アジト感のある独特な印象があります。

躯体の床レベルの違いから、ダイニングとリビングの間が段差によりゆるやかに空間が仕切られています。高めの天井高が確保されているため、マンションでは珍しく天井カセット式エアコンが設置済み。

床材は無垢フローリングとウール100%のカーペット、リノリウムと、天然素材にこだわった組み合わせ。

カーペット床のリビング部分に組まれたやぐらのようなロフト上部に収納できるつくりになっていて、備付の壁掛けテレビは扉により隠すことができます。

食洗機を備えた大きなキッチンはかなりの収納力を誇り、家電や調理器具をすっきりとしまえます。こうした、生活感を出さないための配慮はうれしいですよね。

リビング脇の洋室もまた床レベルが下がり、リノリウムの床に躯体現しのグレイッシュな空間。神宮前の街を見晴らせる、ワークスペースにぴったりな雰囲気です。

中央にIKEAの大きな可動式収納を備えた洋室は、両脇にベッドを置いて寝室として使うもよし、荷物の多い方はウォークインクローゼットとするのも良さそう。ちなみに箱状のつくりのため上部にも物が置けたり、床下収納まであります。

この洋室の奥は、本来隣の部屋の玄関だったスペースを利用した倉庫スペース。この倉庫の一角に、この部屋の原状回復工事のための建築資材が置かれており、そのわずかなスペースだけは非賃貸部分となります。

水回りスペースは、木毛セメント板の壁や天井に配管が這い回るラフな印象を、照明と棚のラインがシャープに引き締めています。

トイレ手前の手洗い器とタイルのクラフト感と、建具類の木そのままの素材感の組み合わせもユニーク。ユニットバスは1618サイズとかなり大きく、足をゆったり伸ばして入れます。

全体的に、ライン照明とスポットライトを組み合わせた照明計画がかなり空間を印象づけていて、躯体現しの荒々しさの中にデザイン性をもたらしています。

間取り的に大人数での事務所利用には向かないかもしれませんが、プライベート空間を箱状の小部屋の中に隠せば、来客を迎える前提の住居兼事務所用途でもハマりがよい物件だと思います。

詳細データ FUDOSAN INFO

物件種別
賃貸マンション/貸事務所
賃料
400,000円
管理費
なし
専有面積
74.86㎡
所在地
渋谷区神宮前
交通
山手線「原宿」駅 徒歩7分/副都心線「北参道」駅 徒歩6分/千代田線「明治神宮前」駅 徒歩10分
敷金
2ヶ月 (事務所利用を含む場合、3ヶ月)
礼金
1ヶ月
構造規模
鉄筋コンクリート造 地下1階付 8階建
所在階
6階
築年
1969年
現況
空室
ペット
不可
保証会社

必須(初回保証委託料:月額賃料+管理費の1ヶ月分、年間保証料10,000円、口座引落手数料:月額330円)

設備

エアコン2台/食洗機/3口ガスコンロ/浴室乾燥機/追焚機能/ウォシュレット/TVモニター付きインターホン/【以下残置物】テレビ/ガスヒーター/カーテン(リビング)/棚/ラウンジチェア/脚立/キャビネット(寝室)/可動式クローゼット2つ(寝室)/シューズボックス/エレクターラック

備考

事務所利用を含む場合:賃料440,000円(税込)、敷金3ヶ月

定期借家契約2年間/再契約相談/再契約料:(新賃料1ヶ月分)/貸主インボイス未登録/取引態様:媒介/要火災保険契約
担当
室田
情報登録日 2026年02月09日/情報修正日 2026年02月09日/更新予定日 2026年03月29日

関連記事 RELATED MAGAZINE

LINE物件配信サービス『もっとホビー不動産 β』

※これまでご登録いただいていた LINE物件配信サービス『もっとホビー不動産 β』 について、運営体制や配信内容を見直すため、一旦サービスを休止させていただくことになりました。

LINE物件配信サービス『もっとホビー不動産 β』を開始します。
サイトに載っていない物件も 《もっと》お届けする『スルーパス』、担当者が物件探しに伴走する『SUCCESS』の2つのコースが選べます。

PICK UP
NO. 281 DIYできる3層縦VOID
リノベーションなどで天井を抜いて空間を広く見せる、というのはよく見るデザインになりましたが、天井のみならず床も抜いて縦に空間を繋げるという発想には正直驚かされました。 今回ご紹介するマンションは一見するとごく普通の築古のマンションですが、専...
186,800円
103.01㎡
松戸市緑ケ丘
新京成電鉄「上本郷」駅 徒歩5分
NO. 213 箱に住む
【賃料改定しました!】 箱に住む、とはまさにこのことだ。 部屋と部屋とが複雑に絡み合う複層構造の建物の1室、珍しい3層のトリプレットの中でもさらにアイコニックで面白い区画が募集開始になりました。 最上階のスキップフロアを上ると、リビングのよ...
94,000円 〜99,000円
29.27㎡ 〜33.51㎡
板橋区稲荷台
都営三田線「板橋本町」駅 徒歩7分/埼京線「十条」駅 徒歩14分
NO. 243 住むように働く、働くように住む
住居兼用◯◯という使い方ができる家が増えました。時代の変化に伴いライフスタイル、働き方の変化が家の使い方にも反映されてきていてうれしいです。 今回ご紹介する1階の2区画の部屋は“住居兼用店舗・事務所利用ができる”というよりも、むしろ“住居兼...
130,000円 〜150,000円
33.49㎡ 〜40.33㎡
杉並区高井戸東
井の頭線「高井戸」駅 徒歩6分