NO. 234 ひとまず続く、愛しの西荻暮らし

ひとまず続く、愛しの西荻暮らし 一人か二人かで過ごすのにちょうどよいお部屋
さらに写真を表示する
価格
3,790万円
建物面積
41.14㎡
所在地
杉並区西荻北
交通
中央線「西荻窪」駅 徒歩6分
NO. 234 ひとまず続く、愛しの西荻暮らし
価格:
3,790万円
建物面積:
41.14㎡
所在地
杉並区西荻北

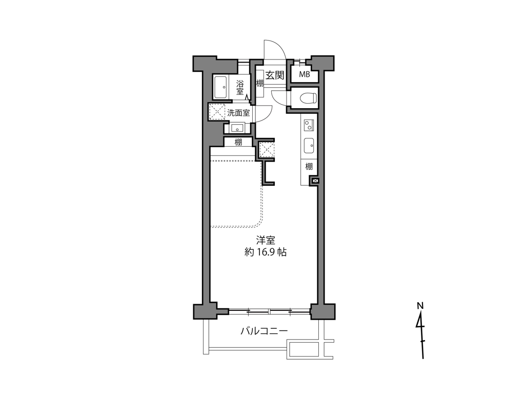
間取り FLOOR PLAN

※現況と図面が異なる場合には、現況を優先するものとします。

コメント COMMENT

■ 価格が下がりました! ■

各駅前にそれぞれのカルチャーがある中央線沿線ですが、中でも根強い人気を誇る西荻窪駅から徒歩6分の物件です。

西荻窪は、カフェや雑貨店、古書店、居酒屋やラーメン屋など、個性ある個人店もありながら、チェーン店やローカルチェーン店もあって、大人の青春時代を過ごすにはとてもいい町。駅から物件までの道すがらにも、地元の人たちに愛される素敵なお店や、懐かしい感じのお店などが幾つもあります。

物件は41.14㎡の1Rで、寝室的スペースはカーテンで仕切れるようになっており、来客時やパートナーが就寝中にはカーテンで仕切るような使い方が可能。

ちなみに追加リノベーションで1LDKに区切り直すこともできるようになっています。

このままでも、多少コンパクトではありますがLDK+ワークスペースまで設けられて、それぞれの用途に合わせた居場所がそれぞれ確保できる感じで暮らすことができそう。

周囲が低層住宅なこともあり、物件のある5階からの良好な眺望と開放感を考えると、特別な事情でもない限り、区切らずこのままでいいかと思います。

内装は比較的スタンダードな仕上げですが、気持ちよさそうな床板と、それ自体がアクセントになっている吊りハンガーラックがちょっとした個性の演出に一役買ってくれそうです。

キッチン周りも、一人か二人暮らしで考えるなら十分なサイズ感。

キッチン背面に棚を用意できるのと、キッチン横に棚を置くことでコーヒーやお菓子作りやらの嗜好性が高い調理と、日常の調理を分けることができるのも良いポイントです。

玄関周りの収納や寝室スペースの奥にも収納が設けられており、要所要所に収納があることもあって、使い勝手よく暮らしやすくなっています。

建物は1970年築とレトロな部類に入りますが、耐震改修工事済みで新耐震基準を満たしておりますので、そういった部分での安心度はまだまだ高めです。

一人のうちにここを買って、いつか二人になるなら手狭になるタイミングを見て住み替える。みたいな暮らしが特に相性良さそうに思います。

もちろん、ここでずっと一人、もしくは二人で暮らすのもまた楽しめるのが西荻窪なので、どうなるかわからない人生を、決めつけることなく肩肘張らず、好きな西荻で、好きな物件を素敵に仕上げながら暮らしたいなとお考えの方にはぜひ見ていただきたい物件です。

詳細データ FUDOSAN INFO

物件種別
売買マンション
価格
3,790万円
建物面積
41.14㎡
管理費
14,810円
修繕積立金
13,820円
所在地
杉並区西荻北
交通
中央線「西荻窪」駅 徒歩6分
構造規模
鉄骨鉄筋コンクリート造 12階建
所在階
5階
築年
1970年
土地権利
所有権
用途地域
第一種低層住居専用地域
都市計画
市街化区域
現況
空室
引渡時期
相談
ペット
不可
設備

グリル付2口ガスコンロ/ウォシュレット/モニターホン

備考
管理形態:全部委託(日勤)/分譲会社 : 大京観光株式会社/施工会社 : 大末建設株式会社/管理会社 : 株式会社大京アステージ

耐震改修工事実施済み/新耐震基準適合/エレベーター/防犯カメラ/24時間ゴミ出し可能/駐車場空有:月額19,000円〜23,000円(令和8年1月16日時点)/バイク置場空有:年額5,000円(令和8年1月16日時点)/駐輪場空有:年額1,000円(令和8年1月16日時点)

担当
玉井
情報登録日 2026年01月23日/情報修正日 2026年01月23日/更新予定日 2026年05月15日

関連記事 RELATED MAGAZINE

LINE物件配信サービス『もっとホビー不動産 β』

※これまでご登録いただいていた LINE物件配信サービス『もっとホビー不動産 β』 について、運営体制や配信内容を見直すため、一旦サービスを休止させていただくことになりました。

LINE物件配信サービス『もっとホビー不動産 β』を開始します。
サイトに載っていない物件も 《もっと》お届けする『スルーパス』、担当者が物件探しに伴走する『SUCCESS』の2つのコースが選べます。

PICK UP
NO. 320 モルタルキッチンの都心リゾート
中央にどんと据えられた大きなモルタルキッチン。これが、この部屋の主役です。 調理スペースの床が一段掘り下げられているためキッチンカウンターに腰かけると、調理する人と自然に目線が合うようになっており、料理をしている間もゲストとの会話が途切れま...
21,800万円
70.10㎡
港区南麻布
南北線・都営大江戸線「麻布十番」駅 徒歩9分/南北線・都営三田線「白金高輪」駅 徒歩10分
NO. 297 空を取り込む
南側に抜けた眺望と、その手前にあるインナーバルコニーが与えてくれえる開放感はやっぱり素敵でした。 窓外の開放感を更に高めてくれるのが、このインナーバルコニー。 起き抜けのコーヒーを飲みながら眺める空。舞う鳥たち。観葉植物越しに眺める空が日頃...
8,180万円
94.92㎡
杉並区南荻窪
中央・総武線 「荻窪」駅 徒歩7分/丸ノ内線 「荻窪」駅 徒歩7分
NO. 264 天高スキップフロアはHOMEでありBASE
一見して分かる、天高のあるスキップフロア。 でも実際に足を踏み入れると、「それだけじゃない」と気づきます。 まず印象的なのは、地階部分。 このお部屋付属の占有駐車場。その横に設けられた地階側玄関から入ると、約11.8帖のDEN空間が広がりま...
11,490万円 (税込)
108.02㎡
中野区中野
総武線・大江戸線「東中野」駅 徒歩10分/東西線「落合」駅 徒歩11分/中央線「中野」駅 徒歩15分/西武新宿線「新井薬師」駅 徒歩16分