NO. 307 魅せるお部屋

魅せるお部屋 インテリアで魅せる
さらに写真を表示する
賃料
290,000円
共益費
なし
専有面積
61.71㎡
所在地
世田谷区池尻
交通
田園都市線「池尻大橋」駅 徒歩10分/井の頭線「駒場東大前」駅 徒歩12分
敷金
1ヶ月
礼金
なし
NO. 307 魅せるお部屋
賃料:
290,000円
共益費:
なし
専有面積:
61.71㎡
所在地:
世田谷区池尻

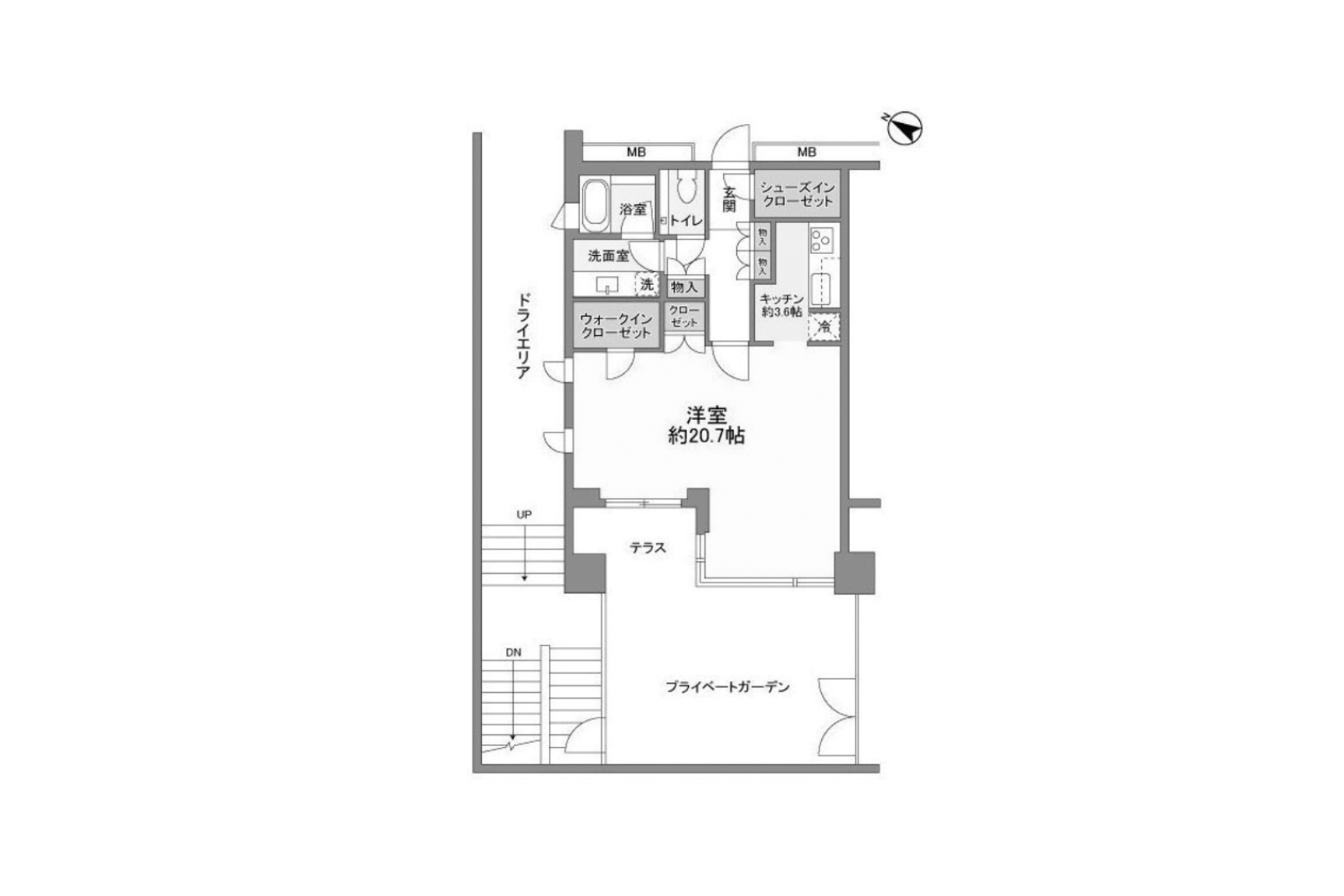
間取り FLOOR PLAN

※現況と図面が異なる場合には、現況を優先するものとします。

コメント COMMENT

昨今、住まいは単に暮らすための場所にとどまらず、自分らしさを表現する舞台として捉える方も少なくはないのではないでしょうか。

今回ご紹介するのは、まさにそんな価値観にフィットする魅せるための空間です。

どこかホテルに足を踏み入れたような静けさと高揚感に包まれる絨毯廊下。そこから室内に入るとまず感じるのは、天井高3m以上という圧倒的な開放感です。

南西向きの柔らかな光が、20.7帖のお部屋に差し込み、絵になる空間。外には27.15㎡のプライベートガーデンがあるので植物の手入れをしながらゆったりと過ごす休日なんかも良さそうですね。

室内はシンプルでありながらも、設備・仕様は実用性をしっかりと押さえた設計。生活動線や収納、使い勝手に配慮されており日々の暮らしをストレスなく支えてくれます。

お部屋の隣にあるドライエリアは通路の役割ですが、人が頻繁に通る場所ではないので目線を感じる事はほとんど無いでしょう。

このお部屋は人を招き、魅せたくなる場所。お気に入りの家具やアートを配置し、光を味方につけながら自分だけの世界観をつくり上げていく楽しみがありそうです。

そんな魅せるお部屋を楽しみたい方にこそ、ぜひ一度ご覧いただきたいお部屋です。

詳細データ FUDOSAN INFO

物件種別
賃貸マンション
賃料
290,000円
共益費
なし
専有面積
61.71㎡
所在地
世田谷区池尻
交通
田園都市線「池尻大橋」駅 徒歩10分/井の頭線「駒場東大前」駅 徒歩12分
敷金
1ヶ月
礼金
なし
構造規模
鉄骨鉄筋コンクリート造 地下2階付 14階建
所在階
1階
築年
2008年
現況
空室
ペット
相談 小型犬又は猫計2匹まで(礼金2ヶ月分)
保証会社

必須(初回保証料:月額賃料の50%、月額保証料・事務手数料:月額賃料の1%)

設備

モニター付きインターホン/宅配BOX/追焚機能/浴室乾燥機/ウォシュレット/食器洗浄機/エアコン

備考

ルームクリーニング代:67,914円/エアコン清掃代:55,000円/楽器相談可(アップライト・電子ピアノ)

定期借家契約5年間/取引態様:媒介/要火災保険契約
担当
佐伯
情報登録日 2026年04月12日/情報修正日 2026年04月12日/更新予定日 2026年06月03日
PICK UP
NO. 341 ロマンに生きる!屋上秘密基地
今回ご紹介するのは、最上階のメゾネット住戸。 玄関を開けると、まず現れるのは上階へ続く階段です。この時点で少しワクワクしてしまうのは、きっと僕だけではないはず。 階段を上がると、勾配天井のLDKと洋室。15.3帖という数字以上に空間はのびや...
148,000円
39.85㎡
世田谷区世田谷
世田谷線「上町」駅 徒歩3分/世田谷線「宮の坂」駅 徒歩8分
NO. 340 緑のプロムナード
玉川上水緑道沿いに立つ一室。 場所は笹塚駅から代田橋駅の間、徒歩5分〜8分ほどの立地。新代田駅や下北沢駅もそれぞれ13分、18分ほどのため休日は気ままに足を伸ばすことができそうです。 間取りはLDKが14.5帖、サービスルームが4.6帖とい...
165,000円
40.91㎡
世田谷区大原
京王線「笹塚」駅 徒歩8分/京王線「代田橋」駅 徒歩5分/京王線・井の頭線「下北沢」駅 徒歩18分
NO. 342 光と風が回る、ペットと緑との暮らし。
窓から差し込む西日が無垢の床を照らし、コンクリートの壁に影を落とす。L字型のバルコニーに面した角部屋は、こんなにも光に満たされるのかと思うほど明るい空間です。 ワンルームと聞くとどうしても狭い箱を想像しがちですが、この部屋は違います。玄関を...
165,000円
40.55㎡
墨田区吾妻橋
浅草線「本所吾妻橋」駅 徒歩4分/銀座線・東武スカイツリーライン「浅草」駅 徒歩7分