NO. 186 ビラ・ローザ

ビラ・ローザ ビラシリーズならではの造形美!
さらに写真を表示する
価格
15,980万円
建物面積
96.73㎡
所在地
渋谷区神宮前
交通
千代田線・副都心線「明治神宮前<原宿>」駅 徒歩8分/銀座線「外苑前」駅 徒歩9分/山手線「原宿」駅 徒歩11分/銀座線・半蔵門線・千代田線「表参道」駅 徒歩13分
NO. 186 ビラ・ローザ
価格:
15,980万円
建物面積:
96.73㎡
所在地
渋谷区神宮前

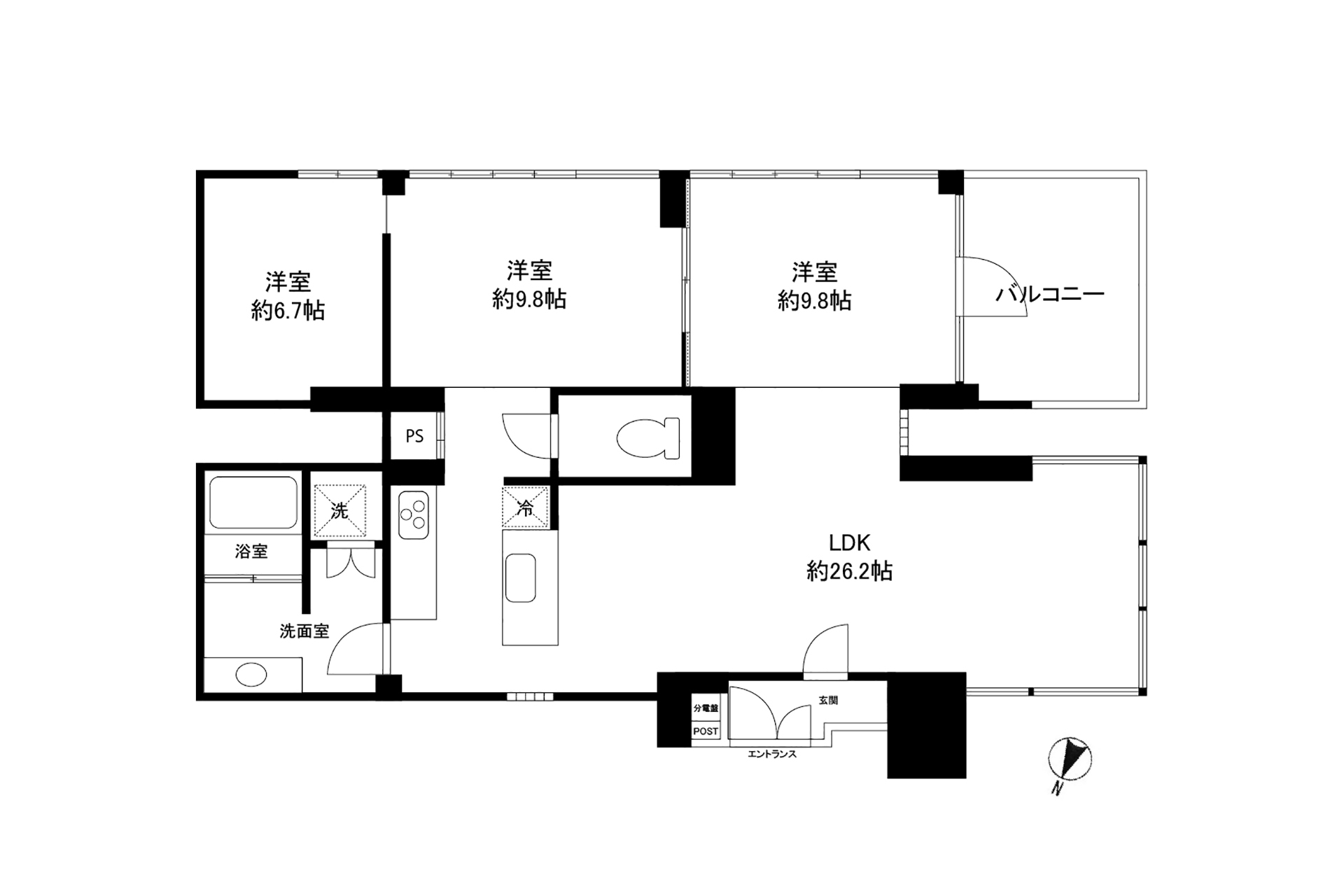
間取り FLOOR PLAN

※現況と図面が異なる場合には、現況を優先するものとします。

コメント COMMENT

アパレルショップのひしめく神宮前の好立地に点在する「ビラシリーズ」の一つ、ビラ・ローザ。

アーチ状の梁が特徴的な、どこかギャラリーのような雰囲気の室内は約12年前にリノベーションされ、住居と事務所のどちらにもうまくハマりそうな絶妙な間取りと内装に仕上がっています。

室内はチャコールグレーのPタイル床と白い壁のシンプルな組み合わせに、ドアや引き戸の差し色がアクセントとなっていて、マンション共用部のエントランスやエレベーターホールのビラシリーズらしいカラーリングとも連続性を感じられる空間です。

H型をした特徴的な間取りは、玄関を入った手前側に約26畳の細長いLDK、奥に約10畳の洋室が2室、その奥に寝室や書斎、クローゼットとして使えそうな洋室が一つあり、回遊性のあるつくりになっています。

現状では間仕切りが少ない間取りなので、事務所利用の際にもレイアウトがしやすそう。お気に入りの家具やアートなどを並べて、海外のLOFT的な雰囲気で住居として暮らすのも楽しそうです。

約6.6畳の広さがあるバルコニーは、ちょっとした椅子やテーブルを置いて寛ぐのにちょうどよいサイズ感。神宮前の街並みを見晴らす特等席です。

明治通りとキラー通りをつなぐ道路沿いにあり、明治神宮前、外苑前、原宿、表参道駅が徒歩圏という利便性の高い立地にあるので、アパレル・デザイン・クリエイティブ関係の業種の方には特に相性がよいかと思います。

こうした造形が特徴的な建物は昭和の一時期に作られて以降、近年の集合住宅では見かけることもなくなってきたので、建築が好きな方としては、所有欲がくすぐられる建物だと思います。

詳細データ FUDOSAN INFO

物件種別
売買マンション
価格
15,980万円
建物面積
96.73㎡
管理費
31,580円
修繕積立金
3,160円
その他費用
付加管理費:30,000円(住居以外に使用する場合)
所在地
渋谷区神宮前
交通
千代田線・副都心線「明治神宮前<原宿>」駅 徒歩8分/銀座線「外苑前」駅 徒歩9分/山手線「原宿」駅 徒歩11分/銀座線・半蔵門線・千代田線「表参道」駅 徒歩13分
構造規模
鉄骨鉄筋コンクリート造 地下1階付 10階建
所在階
4階
総戸数
19戸
築年
1969年
土地権利
所有権
地目
宅地
用途地域
第二種住居地域/第一種中高層住居専用地域
都市計画
市街化区域
建蔽率
/容積率
60%・300%/60%・200%
現況
空室
引渡時期
即可
ペット
可 (成長時体長70cm、体高30cm、体重10kg以内の小型犬、猫、小鳥、観賞魚)
設備

エレベーター/エアコン

備考
管理形態:全部委託/管理会社 : 株式会社エード

住居・事務所以外の用途(店舗、教室、ショールーム、展示会、ギャラリー、レンタルスペース、レンタルスタジオ、シェアハウス、民泊、その他第三者に対価を得て貸し出す一切の業種)での利用不可、事業用途での利用の際は事前に管理組合の承認が必要

担当
室田
情報登録日 2025年10月16日/情報修正日 2025年10月16日/更新予定日 2026年06月03日

関連記事 RELATED MAGAZINE

『新着LINE』はじめます

ホビー不動産ではこのたび、公式LINEにご登録いただいている方へ向けた

新しい情報配信サービス 『新着LINE』 をスタートしました。

PICK UP
NO. 263 イーストエリア・リバーサイド
飛行機や新幹線での出張の多い方に、とにかく便利な立地にある住居も事務所もOKなマンションの一室。 隅田川テラスを走る10kmのリバーランコースが通る永代橋のふもとにあり、隅田川まで徒歩2分。バイクでもランでも走って気持ちのいい環境が広がって...
3,500万円
38.56㎡
中央区新川
日比谷線・京葉線「八丁堀」駅 徒歩7分/東西線・日比谷線「茅場町」駅 徒歩8分/半蔵門線「水天宮前」駅 徒歩9分
NO. 320 モルタルキッチンの都心リゾート
■ 価格が下がりました! ■ 中央にどんと据えられた大きなモルタルキッチン。これが、この部屋の主役です。 調理スペースの床が一段掘り下げられているためキッチンカウンターに腰かけると、調理する人と自然に目線が合うようになっており、料理をしてい...
19,800万円
70.10㎡
港区南麻布
南北線・都営大江戸線「麻布十番」駅 徒歩9分/南北線・都営三田線「白金高輪」駅 徒歩10分
NO. 220 シンプルモダンな戸建感覚トリプレット
■ 近隣駐車場に空きが出ました! ■ 2014年にフルリノベーションされた、戸建感覚のテラスハウス型集合住宅のトリプレット。 余計なデザインを排したシンプルな外観で、新耐震基準かつ壁式構造と、地震に対する安心感も高めです。 図面上では玄関が...
11,000万円
114.24㎡
世田谷区代田
小田急線「梅ヶ丘」駅 徒歩10分/小田急線「世田谷代田」駅 徒歩11分/東急世田谷線「若林」駅 徒歩11分/井の頭線・小田急線「下北沢」駅 徒歩20分