NO. 210 居心地重視の良いとこ取りメゾネット

居心地重視の良いとこ取りメゾネット 20帖のリビング!
さらに写真を表示する
価格
6,880万円(税込)
建物面積
93.42㎡
その他面積
バルコニー:4.86㎡・専用庭:14.71㎡
所在地
川崎市宮前区宮前平
交通
田園都市線「宮前平」駅 徒歩4分
NO. 210 居心地重視の良いとこ取りメゾネット
価格:
6,880万円(税込)
建物面積:
93.42㎡
所在地
川崎市宮前区宮前平

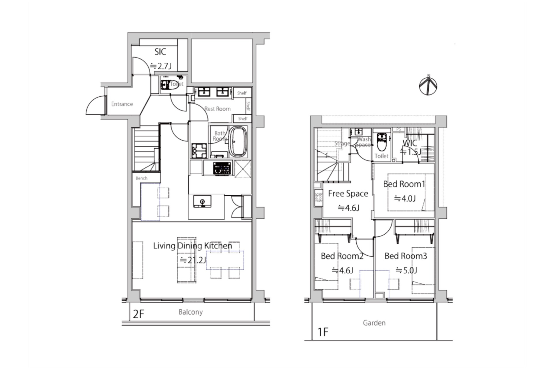
間取り FLOOR PLAN

※現況と図面が異なる場合には、現況を優先するものとします。

コメント COMMENT

家にいる時間の大半を過ごすであろうリビングでの時間。こと3LDKなど部屋数の多い物件だと、リビングの使い勝手や居心地が家の決め手の大半を左右します。

20帖の空間の中に、オープンキッチンとダイニング・リビングスペースがあり、さらにコーナーにベンチが設置された気の利いたリビングがある家。さらにリビング部分は高台の2階にあり、窓から緑を拝みつつ空を眺められる眺望も手に入る。外から部屋に入り、リビングと水回りがその1フロアだけでまず完結する秀逸な間取りは、人を招くにも無駄がなく、ファミリータイプのマンションの中でも群を抜いて利便性が高いと思いました。

部屋に開かれたオープンキッチンは、まるで家具かのようにリビングにきれいに鎮座しています。キッチンを中心に間取りを構成して、明るく抜けた窓に向けてソファやテーブルや椅子の配置を考えてみてはどうでしょう。1階へ降りる階段を閉ざさぬようガラスで構成されたゾーンには、デッドスペースとなりがちなコーナーにベンチを設置することで、さらにもう1ゾーンリビング内に居場所を作ることが出来ます。

デザインされた空間でありつつも、光の通し方や間取り等の使い勝手が考慮され尽くしていて、どこを見ても唸ってしまいます。シンプルに、ここに住みたい…。

寝室などにうってつけな個室は全て階段を下りた1階へ。窓際の2部屋は庭に面しており、マンションの1部屋なのに戸建てに住んでいるような疑似体験が出来てしまう。さらに1階と言っても高台に立つマンションということもあり、庭からは空も眺めることが出来るのがまた良いところ。

1階もお部屋だけがぎゅうぎゅうに詰め込まれているわけではなく、デスクと椅子が置けるようなフリースペースや、階段下収納や可動棚もあり、閉塞感は感じませんでした。2階のリビングで集い、仕事や勉強や睡眠で各々の部屋へと階下に散ってゆく、そんな生活の動線も良さそうですし、来客があった時にどうしても目につきやすい、生活感の出てしまう個室や廊下が別のフロアにあることはありがたいポイントかと。

注意点としては、駅近であるものの高台に位置しているためマンション前の道は傾斜があること。またマンションの施設内やお部屋に至る共用の廊下も階段と段差があるため、ベビーカーや車椅子などバリアフリーを求めている方には少し苦労します。

宮前平駅は田園都市線の住宅街の中でも名が知れており、駅前は程良くお店があり、程良く人口があり、暮らしが想像出来るコンパクトシティです。関東最大級の岩盤浴施設がある天然温泉があることでも言わずと知れているので、休日近場で少しゆっくりしたい日は歩いて温泉に、なんて日常も待っているかも。

詳細データ FUDOSAN INFO

物件種別
売買マンション
価格
6,880万円(税込)
建物面積
93.42㎡
管理費
14,710円
修繕積立金
24,850円
所在地
川崎市宮前区宮前平
交通
田園都市線「宮前平」駅 徒歩4分
構造規模
鉄筋コンクリート造 地下1階付 10階建
所在階
1,2階
総戸数
52戸
築年
1983年
土地権利
所有権
用途地域
第一種住居地域
都市計画
市街化区域
現況
空室
引渡時期
即可
ペット
不可
設備

3口ガスコンロキッチン/ウォシュレット/温水洗浄便座/浴室乾燥機/追炊/ふろ自動/シューズインクローゼット/ウォークインクローゼット/専用庭

備考
管理形態:全部委託(日勤)/分譲会社 : 新井建設株式会社/施工会社 : 新井建設株式会社/管理会社 : 日本ハウズイング株式会社

駐輪場:月額300円(補助輪付きの子供用は月額100円)/駐車場月額25,000円 ※空き無し

担当
玉井
情報登録日 2025年12月05日/情報修正日 2025年12月05日/更新予定日 2026年05月15日

関連記事 RELATED MAGAZINE

LINE物件配信サービス『もっとホビー不動産 β』

※これまでご登録いただいていた LINE物件配信サービス『もっとホビー不動産 β』 について、運営体制や配信内容を見直すため、一旦サービスを休止させていただくことになりました。

LINE物件配信サービス『もっとホビー不動産 β』を開始します。
サイトに載っていない物件も 《もっと》お届けする『スルーパス』、担当者が物件探しに伴走する『SUCCESS』の2つのコースが選べます。

PICK UP
NO. 320 モルタルキッチンの都心リゾート
中央にどんと据えられた大きなモルタルキッチン。これが、この部屋の主役です。 調理スペースの床が一段掘り下げられているためキッチンカウンターに腰かけると、調理する人と自然に目線が合うようになっており、料理をしている間もゲストとの会話が途切れま...
21,800万円
70.10㎡
港区南麻布
南北線・都営大江戸線「麻布十番」駅 徒歩9分/南北線・都営三田線「白金高輪」駅 徒歩10分
NO. 297 空を取り込む
南側に抜けた眺望と、その手前にあるインナーバルコニーが与えてくれえる開放感はやっぱり素敵でした。 窓外の開放感を更に高めてくれるのが、このインナーバルコニー。 起き抜けのコーヒーを飲みながら眺める空。舞う鳥たち。観葉植物越しに眺める空が日頃...
8,180万円
94.92㎡
杉並区南荻窪
中央・総武線 「荻窪」駅 徒歩7分/丸ノ内線 「荻窪」駅 徒歩7分
NO. 264 天高スキップフロアはHOMEでありBASE
一見して分かる、天高のあるスキップフロア。 でも実際に足を踏み入れると、「それだけじゃない」と気づきます。 まず印象的なのは、地階部分。 このお部屋付属の占有駐車場。その横に設けられた地階側玄関から入ると、約11.8帖のDEN空間が広がりま...
11,490万円 (税込)
108.02㎡
中野区中野
総武線・大江戸線「東中野」駅 徒歩10分/東西線「落合」駅 徒歩11分/中央線「中野」駅 徒歩15分/西武新宿線「新井薬師」駅 徒歩16分