NO. 215 キッチン贔屓のスマートリビング

キッチン贔屓のスマートリビング シャープさと温かみが合わさった内装
さらに写真を表示する
価格
7,480万円
建物面積
61.81㎡
その他面積
バルコニー面積:7.22㎡
所在地
台東区寿
交通
都営大江戸線「蔵前」駅 徒歩3分/都営浅草線「浅草」駅 徒歩5分/銀座線「田原町」駅 徒歩5分
NO. 215 キッチン贔屓のスマートリビング
価格:
7,480万円
建物面積:
61.81㎡
所在地
台東区寿

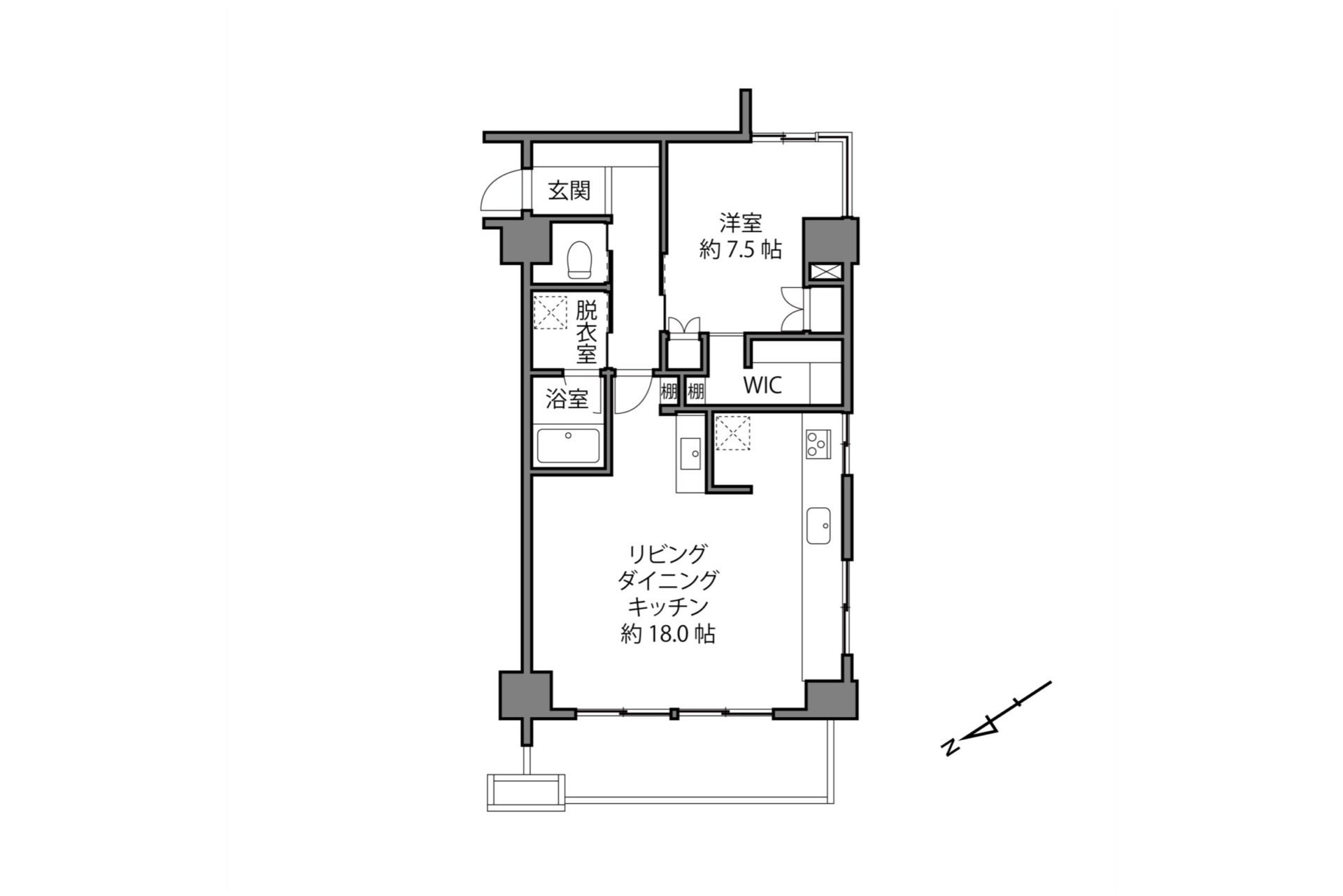
間取り FLOOR PLAN

※現況と図面が異なる場合には、現況を優先するものとします。

コメント COMMENT

モルタルと木材の組み合わせがシャープながらに温かみを加えており、すっきりとした印象を与えてくれる18帖の広々としたリビング。内装や造作の家具が直線的な印象を与えているため、空間がピシッと引き締まります。

その中でも目を引くのが、北東側を一面贅沢に使った長いカウンターを持つキッチンです。

モールテックの天板に木製の棚がずらーっと並んでおり、デザインは去ることながらその収納力に脱帽します。広く開放的なキッチンを持ちたいけど、何かと物が多くなってしまい、生活感がぐっと増してしまうのが良くもあり気になるポイントでもあり…そんな方にぴったりの大容量収納の広いキッチンが推しポイントです。

冷蔵庫置き場をリビングからの死角に設置し生活感を消すポイントも心得ており、物量や使い方さえ合えばすっきり物が片付いた使いやすいキッチンライフがあなたを待っています。大きな2面の窓に面しているのも料理をする上で追加の推しポイントです。

気になる方も多いであろう洗面台の位置。リビングの入口に位置しているのはなかなか目にしない斬新な配置ですよね…?でも私はこの動線については大肯定派です。

洗面台は生活のあらゆるシーンで利用頻度が高く、また特に女性は洗面台前にいる時間は長いもの。手を洗う、歯を磨く、メイクを落とす、スキンケアをする、髪の毛を乾かす・セットする等、脱衣所に行くのが少々面倒だなという工程も多いけれど、リビングの一角に洗面台があれば同じ空間で済ませられてしまう。驚くほどに生活のQOLは向上するので、ここでの生活を想像して是非前向きに考えてみてください。

そしてリビングに馴染む上品なモールテックの洗面台と、シャープで大きな鏡がお部屋のインテリアをさらに引き付けてくれそうです。このデザインならばリビングにあったら、むしろうれしい。

洋室として使えるベッドルームは7.5帖と広さも担保されつつ、ウォークインクローゼット付き。ガチャ棚とポールがあるので、掛けも畳みもどちらのお洋服もたくさん収納できます。寝室に限らず、そこかしこに収納家具を置けるスペースの余地があったり玄関にも大きい靴収納があったりと、すっきり生活を送れる余白があるのがうれしい。

建物は田原町駅と蔵前駅の間にあり、下町の中にも普段から立ち寄りたくなるような美味しい飲食店などが増えており住むにも楽しいエリアとなってきました。ぜひ一度見にきてください。

詳細データ FUDOSAN INFO

物件種別
売買マンション
価格
7,480万円
建物面積
61.81㎡
管理費
14,000円
修繕積立金
30,900円
所在地
台東区寿
交通
都営大江戸線「蔵前」駅 徒歩3分/都営浅草線「浅草」駅 徒歩5分/銀座線「田原町」駅 徒歩5分
構造規模
鉄骨鉄筋コンクリート造 12階建
所在階
7階
総戸数
57戸
築年
1982年
土地権利
所有権
用途地域
商業地域
都市計画
市街化区域
現況
居住中
引渡時期
相談
ペット
可 /犬・猫可(1住戸2匹・体長50cmまで体重10kg程度・要申請)
設備

3口コンロキッチン/温水洗浄便座/24時間ゴミ出し可/防犯カメラ/エレベーター/集会所

備考
管理形態:全部委託(日勤)/分譲会社 : 秀和株式会社/施工会社 : 五洋建設株式会社/管理会社 : 伊藤忠アーバンコミュニティ株式会社

駐輪場:1台につき月額400〜500円(3台まで)/バイク置き場:1台につき月額1,000円 ※空き無し

担当
玉井
情報登録日 2026年01月06日/情報修正日 2026年01月06日/更新予定日 2026年05月03日

関連記事 RELATED MAGAZINE

LINE物件配信サービス『もっとホビー不動産 β』

※これまでご登録いただいていた LINE物件配信サービス『もっとホビー不動産 β』 について、運営体制や配信内容を見直すため、一旦サービスを休止させていただくことになりました。

LINE物件配信サービス『もっとホビー不動産 β』を開始します。
サイトに載っていない物件も 《もっと》お届けする『スルーパス』、担当者が物件探しに伴走する『SUCCESS』の2つのコースが選べます。

PICK UP
NO. 297 空を取り込む
南側に抜けた眺望と、その手前にあるインナーバルコニーが与えてくれえる開放感はやっぱり素敵でした。 窓外の開放感を更に高めてくれるのが、このインナーバルコニー。 起き抜けのコーヒーを飲みながら眺める空。舞う鳥たち。観葉植物越しに眺める空が日頃...
8,180万円
94.92㎡
杉並区南荻窪
中央・総武線 「荻窪」駅 徒歩7分/丸ノ内線 「荻窪」駅 徒歩7分
NO. 264 天高スキップフロアはHOMEでありBASE
一見して分かる、天高のあるスキップフロア。 でも実際に足を踏み入れると、「それだけじゃない」と気づきます。 まず印象的なのは、地階部分。 このお部屋付属の占有駐車場。その横に設けられた地階側玄関から入ると、約11.8帖のDEN空間が広がりま...
11,990万円 (税込)
108.02㎡
中野区中野
総武線・大江戸線「東中野」駅 徒歩10分/東西線「落合」駅 徒歩11分/中央線「中野」駅 徒歩15分/西武新宿線「新井薬師」駅 徒歩16分
NO. 280 緑道沿いの没入型アトリエ
駒沢大学駅から北に10分歩いた上馬の住宅街。車の通れない細い緑道沿いにひっそりと立つ、全5戸の小振りなコーポラティブハウスの一室。 緑道から住戸へ直接アクセスできる、戸建のような独立性を備えたこの区画は、1階と地下1階のメゾネットの間取り。...
12,800万円
100.86㎡
世田谷区上馬
田園都市線「駒沢大学」駅 徒歩10分/世田谷線「松陰神社前」駅 徒歩12分