NO. 229 “暮らしながら◯◯”を叶える家

“暮らしながら◯◯”を叶える家 窓に囲まれた開放的空間(3階)
さらに写真を表示する
賃料
950,000円
管理費
なし
専有面積
133.64㎡
所在地
渋谷区神宮前
交通
半蔵門線・銀座線・千代田線「表参道」駅 徒歩7分/銀座線「外苑前」駅 徒歩8分
敷金
2ヶ月
償却
入居期間に応じて敷金の償却あり(5年以上の入居で全額免除)
NO. 229 “暮らしながら◯◯”を叶える家
賃料:
950,000円
管理費:
なし
専有面積:
133.64㎡
所在地:
渋谷区神宮前

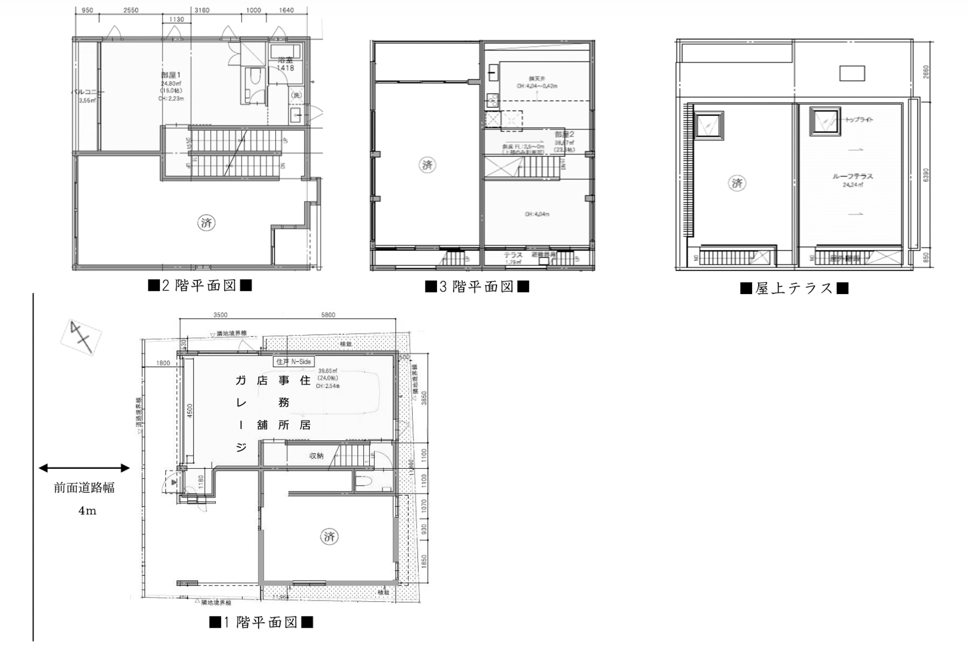
間取り FLOOR PLAN

※現況と図面が異なる場合には、現況を優先するものとします。

コメント COMMENT

建築家設計の新築の3階建て、3.8mの天井高を誇る開放的なリビングから屋上のテラスにアクセスでき、1階のガレージ部分では店舗や事務所も作ることができる「こういうことが出来たらいいな」が一挙に詰まった家があります。

表参道駅からまい泉通りを進み1本路地を入った住宅地にある新築の一戸建て。1階は電動シャッター付きのガレージですが、事業利用なども相談可能なため事務所や店舗として使うこともできます。11坪ほどのこの空間をガレージや居住空間の延長として使ったり、店舗であれば洋服や生活用品系の物販、軽飲食(コーヒースタンド等)なども検討できそうです。

1階部分にはすでにエアコンやトイレが設置されており、ガレージのシャッターとは別に入口もあります。愛車を愛でるのも良いですし、思い切って店舗や事務所を自宅の下に持ってしまうのも大いにアリだと思います。

今回の建物の面白さとして、3階のメインの居室に言及をさせてください。とにかく天井が高い。窓が大きい。3.8mの天井高のその開放感たるや画一的な住宅のリビングの在り方を超えており、まるで美術館の一角にいるようです。キッチンゾーンとリビングゾーンにブロッキングされたそれぞれのスペースは用途がはっきりと想像ができます。

3階から外に出てすぐの階段を上ると屋上のルーフテラスがあります。表参道・外苑前・原宿方面を見渡すことが出来る贅沢なテラスは、植物を育てたりチェア等を置いたりと屋上ライフを満喫するのにもってこいです。

打って変わって2階の居室は天井をぐっと落としてあり、寝室や仕事部屋など落ち着きたい用途に適しています。窓は多いですが、目線より高い位置に連続した開口を取ることにより適切な量の光を取り込んでくれています。収納箇所自体は少ないため、家具を入れて荷物を納める必要はありそうですね。

光を多く取り込み、テラスや天井高などの特徴がある特異的な建築の建物の1階部分が事業利用でき、さらに立地は表参道・外苑前アクセス。便利な立地で居住空間と合わせてプラスαのスペース、使い方を模索している方にぜひおすすめしたい物件です。

詳細データ FUDOSAN INFO

物件種別
賃貸マンション/貸事務所/貸店舗
賃料
950,000円
管理費
なし
専有面積
133.64㎡
所在地
渋谷区神宮前
交通
半蔵門線・銀座線・千代田線「表参道」駅 徒歩7分/銀座線「外苑前」駅 徒歩8分
敷金
2ヶ月
償却
入居期間に応じて敷金の償却あり(5年以上の入居で全額免除)
構造規模
鉄筋コンクリート造 3階建
所在階
1+2+3階
築年
2025年
現況
空室
ペット
不可
保証会社

利用必須

設備

駐車場/エアコン3台/床暖房/食洗機/追焚/風呂自動/浴室乾燥機/ウォシュレット

備考

事業利用部分は建物全体の半分程度にて住居兼用事業利用に限ります

普通借家契約2年間/更新料:なし/取引態様:媒介/要火災保険契約
担当
玉井
情報登録日 2026年01月23日/情報修正日 2026年01月23日/更新予定日 2026年03月05日

関連記事 RELATED MAGAZINE

LINE物件配信サービス『もっとホビー不動産 β』

LINE物件配信サービス『もっとホビー不動産 β』を開始します。
サイトに載っていない物件も 《もっと》お届けする『スルーパス』、担当者が物件探しに伴走する『SUCCESS』の2つのコースが選べます。

PICK UP
NO. 243 住むように働く、働くように住む
住居兼用◯◯という使い方ができる家が増えました。時代の変化に伴いライフスタイル、働き方の変化が家の使い方にも反映されてきていてうれしいです。 今回ご紹介する1階の2区画の部屋は“住居兼用店舗・事務所利用ができる”というよりも、むしろ“住居兼...
130,000円 〜150,000円
33.49㎡ 〜40.33㎡
杉並区高井戸東
井の頭線「高井戸」駅 徒歩6分
NO. 114 古きを温め新しきを始める
木造二階建てアパートをリノベーションして作られた各フロア1戸ずつ計2戸の物件。 間取りと広さが少し違いますが一階と二階の賃貸条件は同じで、テイストも同じ。 二階は天井を抜いているので天高があり、窓も多め。一方で一階は玄関土間が広めにとってあ...
200,000円
1F:41.4㎡ 〜2F:43.06㎡
新宿区舟町
丸の内線「四谷三丁目」駅 徒歩5分/都営新宿線「曙橋」駅 徒歩5分/総武中央線「四ツ谷」駅 徒歩14分
NO. 92 あれもこれも〜大型犬・猫・DIY・店舗・駐車場〜
見た目以上に外観と内装のギャップのある古家を見つけました。 もはやDIY必須と言えるような古い状態の戸建ですが、店舗や事務所利用が可能、ペットの飼育が大型犬まで相談可能、楽器の相談が可能、駐車場を借りることが出来る、と願っても叶わない条件が...
200,000円
92.95㎡
世田谷区瀬田
田園都市線「用賀」駅 徒歩10分/田園都市線「二子玉川」駅 徒歩15分