NO. 281 DIYできる3層縦VOID

DIYできる3層縦VOID 縦に繋がった空間(5階)
さらに写真を表示する
賃料
186,800円
管理費
13,200円
専有面積
103.01㎡
所在地
松戸市緑ケ丘
交通
新京成電鉄「上本郷」駅 徒歩5分
敷金
1ヶ月
礼金
1ヶ月
NO. 281 DIYできる3層縦VOID
賃料:
186,800円
管理費:
13,200円
専有面積:
103.01㎡
所在地:
松戸市緑ケ丘

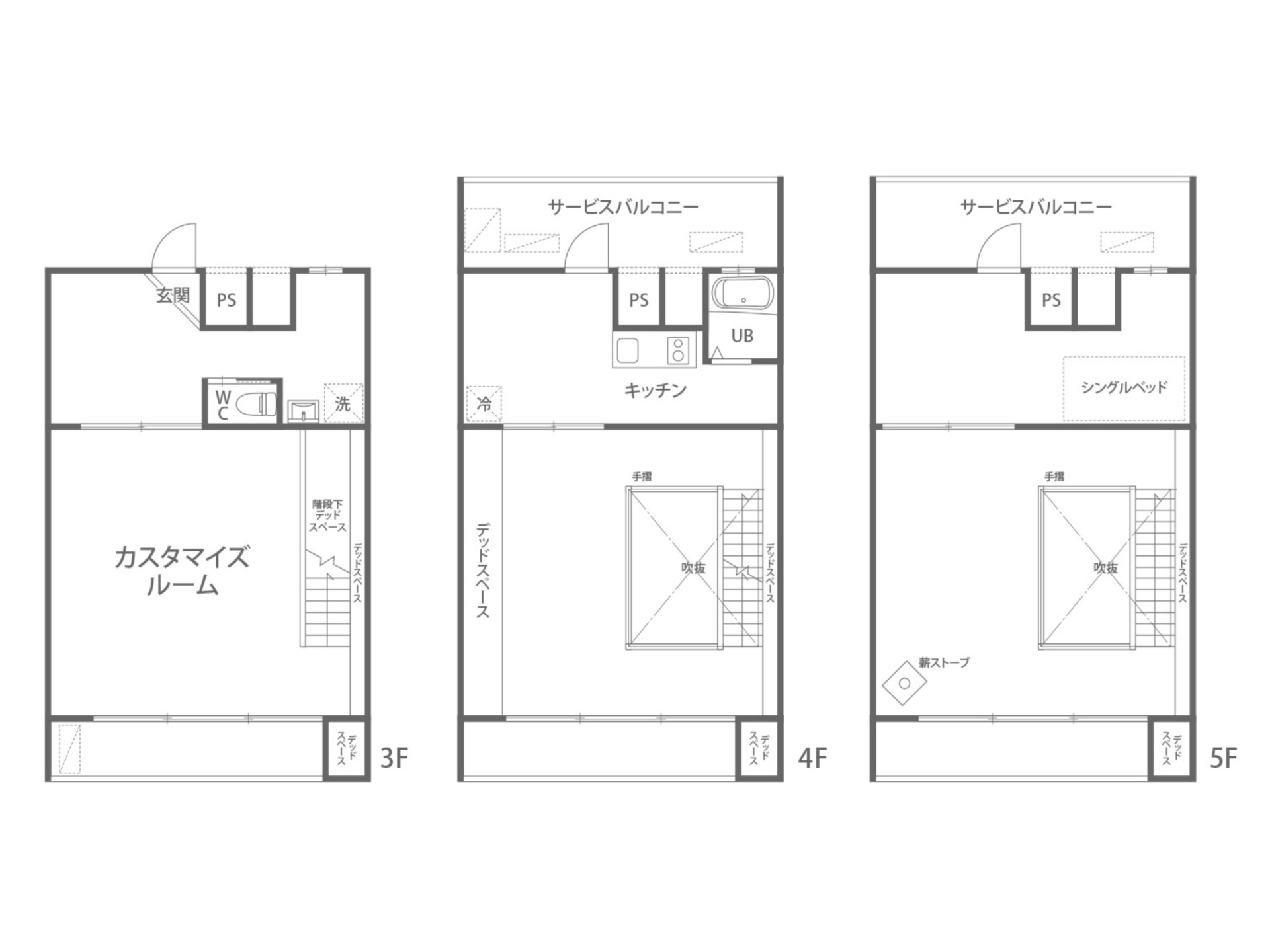
間取り FLOOR PLAN

※現況と図面が異なる場合には、現況を優先するものとします。

コメント COMMENT

リノベーションなどで天井を抜いて空間を広く見せる、というのはよく見るデザインになりましたが、天井のみならず床も抜いて縦に空間を繋げるという発想には正直驚かされました。

今回ご紹介するマンションは一見するとごく普通の築古のマンションですが、専有部分は3層のメゾネット。それもただのメゾネットではなく、もともと1フロアごと1住戸ずつ使っていた区画の床をコア抜きし、縦に階段で繋げて3部屋を1部屋として使えるようにしています。大胆かつ斬新すぎるアイディア。

各フロアのスケルトンの躯体部分はDIYが可能です。床壁天井は躯体の状態なので、ボードやクロスで室内を仕上げるのもありですし、あえて荒々しい躯体そのものの質感を残した内装を楽しむこともできます。たとえば自宅の一部をアトリエや教室として使いたい方や、事務所・店舗利用をしたい方には特におすすめです。

各フロアにキッチン、トイレなどのサニタリーエリア、寝室などとして使うことができる新規のリノベーション済み区画がすでにあるため、DIYを行わずにリノベーション済みの空間だけで暮らすことも十分に成り立ちます。リビングとして使う1フロアのみDIY区画を改装し、他の区画はそのまま残すなど用途によって柔軟に空間を作ることができます。(フリーレント1ヶ月か初回工事費用10万円をサポート)

最上階の5階からは抜けた眺望がお目見え。3,4階をリビングや作業スペースとするならば、5階はプライベートな空間として秘密基地のように独占利用してみては?設置されている暖炉はリアルに使うことができるので、冬場は暖をとりながらインテリアとしても空間を楽しませてくれるでしょう。

注意点としては、エレベーターがないこと。荷物の搬出入などには少し工夫が必要かもしれません。

フロアを抜いたことにより空間に空所が増えたことで、光や風が通り抜けやすい箱が出来上がりました。リノベーションの概念を覆し、建物の使い方の可能性を広げてくれた面白いお部屋の最たる例だと思います。この空間を面白がって使ってくださるクリエイティブな感覚の持ち主の方にぜひ、借りていただけたらお部屋も喜びます。

住居兼◯◯の使い方で入居する方々が続々集まっており、アーティストさんやデザイナーさんなどクリエイティブな業種の方が多そうです。自宅の一角を改装しながら、住むだけでなくプラスαな使い方も模索しながら、内装も暮らしも手を加える生活を手にれてみませんか。

詳細データ FUDOSAN INFO

物件種別
賃貸マンション/貸事務所/貸店舗
賃料
186,800円
管理費
13,200円
専有面積
103.01㎡
所在地
松戸市緑ケ丘
交通
新京成電鉄「上本郷」駅 徒歩5分
敷金
1ヶ月
礼金
1ヶ月
構造規模
鉄筋コンクリート造 5階建
所在階
3,4,5階
現況
空室
ペット
可 /ペット飼育時に+敷金1ヶ月(償却1ヶ月)、賃料+1万円。多頭飼育の場合は種類・条件ともに要相談。
保証会社

必須

設備

暖炉/エアコン/2口IHコンロ/駐輪場

備考

事業利用時は賃料・管理費に別途課税/DIYはカスタマイズルームのみ可能/あんしんサポート24:月額770円/フリーレント1ヶ月or初回工事費用10万円をサポート ※キャンペーンは予告なく終了する場合がございます

普通借家契約2年間/更新料:1.1ヶ月/取引態様:媒介/要火災保険契約
担当
玉井
情報登録日 2026年03月12日/情報修正日 2026年03月12日/更新予定日 2026年05月13日

関連記事 RELATED MAGAZINE

『新着LINE』はじめます

ホビー不動産ではこのたび、公式LINEにご登録いただいている方へ向けた

新しい情報配信サービス 『新着LINE』 をスタートしました。

PICK UP
NO. 299 残して活かすリノベの真髄
築53年の注文住宅、この家を単なるスクラップ&ビルドで新しく生まれ変わらせるのではなく、元々の建物のポテンシャルを活かしたリノベーションを施し生まれ変わらせました。 もともとオーナーさんのお父様がお住まいだったこの家を、大事に残しな...
320,000円
94.60㎡
中野区上高田
中央線・都営大江戸線「東中野」駅 徒歩12分/東西線「落合」駅 徒歩11分
NO. 283 山林の中で小商いと住まいを持つ
新横浜駅から住宅地を抜けて、山道を上り切ったところにある集合住宅。雑木林と尾根の斜面地の間に立つその建物は、自然環境と生活を両立させた新しい形の暮らしの場を提案してくれています。 建物は、北側の雑木林を臨む「森棟」、開かれた中庭に面する「庭...
135,780円 (税込) 〜179,290円 (税込)
45.54㎡ 〜59.62㎡
横浜市港北区篠原町
東急新横浜線・相鉄新横浜線・横浜市営ブルーライン「新横浜」駅 徒歩11分
NO. 243 住むように働く、働くように住む
住居兼用◯◯という使い方ができる家が増えました。時代の変化に伴いライフスタイル、働き方の変化が家の使い方にも反映されてきていてうれしいです。 今回ご紹介する1階の2区画の部屋は“住居兼用店舗・事務所利用ができる”というよりも、むしろ“住居兼...
130,000円
33.49㎡
杉並区高井戸東
井の頭線「高井戸」駅 徒歩6分