NO. 299 残して活かすリノベの真髄

残して活かすリノベの真髄 14畳のリビング!
さらに写真を表示する
賃料
320,000円
管理費
なし
専有面積
94.60㎡
所在地
中野区上高田
交通
中央線・都営大江戸線「東中野」駅 徒歩12分/東西線「落合」駅 徒歩11分
敷金
1ヶ月 /兼用事務所・店舗利用時敷金+2ヶ月
礼金
1ヶ月
NO. 299 残して活かすリノベの真髄
賃料:
320,000円
管理費:
なし
専有面積:
94.60㎡
所在地:
中野区上高田

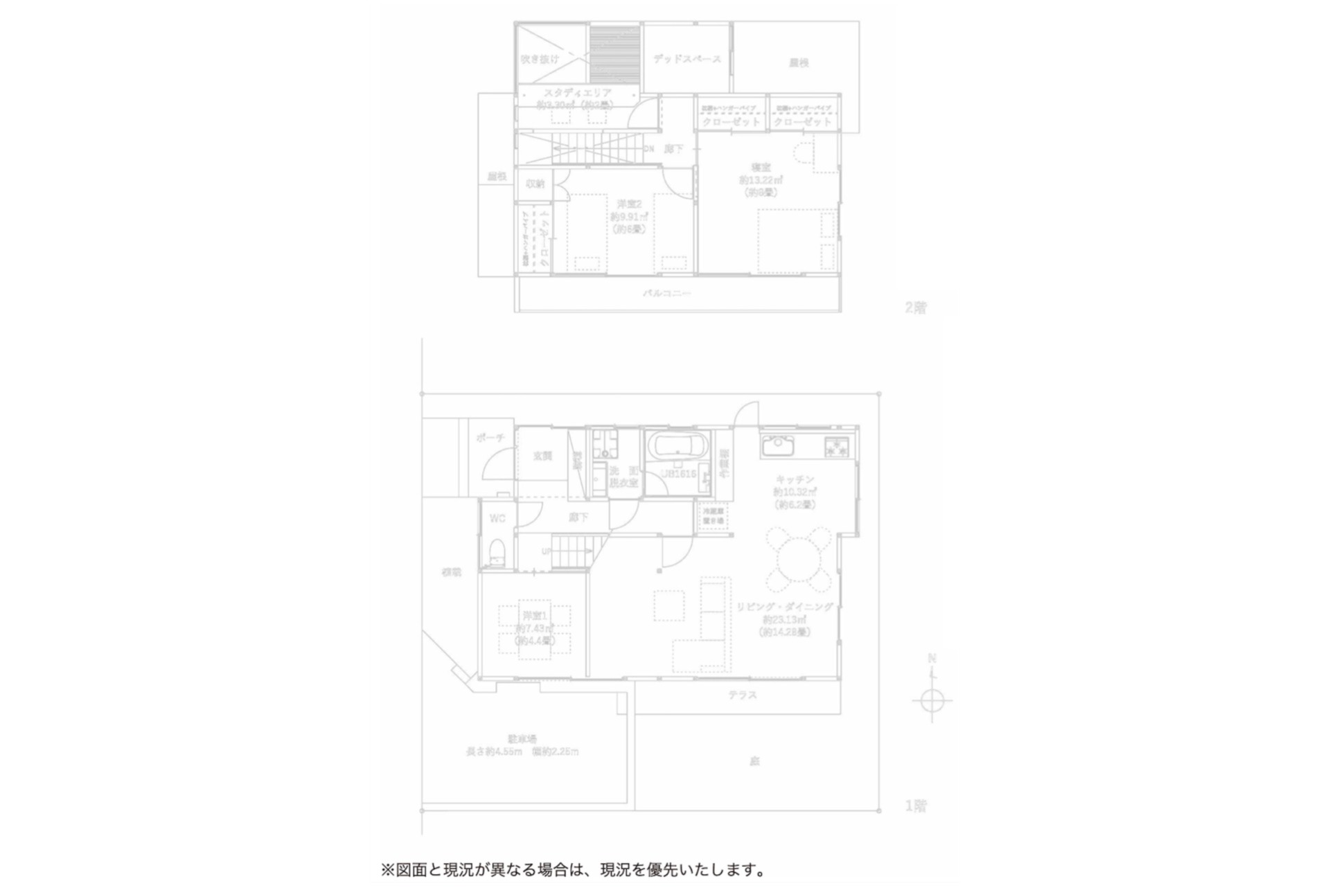
間取り FLOOR PLAN

※現況と図面が異なる場合には、現況を優先するものとします。

コメント COMMENT

築53年の注文住宅、この家を単なるスクラップ&ビルドで新しく生まれ変わらせるのではなく、元々の建物のポテンシャルを活かしたリノベーションを施し生まれ変わらせました。

もともとオーナーさんのお父様がお住まいだったこの家を、大事に残しながら再生する方法を模索した結果、「元々の家に馴染ませる」というコンセプトでリノベーション工事が行われました。

今のライフスタイルと合わせて間取りや部屋の広さを変更し、設備の交換はしていますが、どこかノスタルジックで古いものと馴染みが良い素材感や雰囲気は残しており、現在の新築では作ることができない良い意味での新旧MIXがなされた空間を味わうことができます。

お部屋を繋げてLDKを広くとり、ダイニングテーブルを置いてソファを置いて、ということが悠にできる空間に。お庭向きのリビングはお子様を遊ばせておくことも出来るし、植物や作物を植えて庭いじりを楽しむことも出来る、一戸建てならではの楽しみが得られるメリット付き。どうしても暗くなってしまいがちな水回りのスペースは、天井から光を取り込む仕様にしたことで明るく風通しの良い心地良いエリアに早変わりしました。とても気持ちがいい。

内装も、壁は少しグレーが入った塗装調のクロス、床はちょっとだけ赤みのある濃い茶色のラワン合板、天井は構造の現しと、さりげない中にデザインの気持ち良さが計算され、馴染ませられています。1階はどちらかというと落ち着いたトーンに仕上げられていますが、2階は日の入り方もあって明るめの雰囲気。

お部屋ごとに少し異なるデザインがあれど、全体として統一感のある仕上がりになっているのは流石です。

東中野駅から徒歩12分、落合駅から徒歩11分の静かな住宅街に立つ一戸建て。近くには「にじいろ保育園上高田」、妙正寺川沿いに「落合公園」などの公園があり、子育てやお散歩などにも最適で、スーパーやドラッグストアなども徒歩圏内に揃っているので生活には困りません。駐車場があるので、自転車や車、バイクを利用して生活圏内から少し足を伸ばしてお買い物やお出かけをすることも容易にできますね。

新築の一戸建ては眩しくて落ち着かないけれど、築古の一戸建ては建て付けや設備全般が心配…という方にフィットする、築古リノベ一戸建て。古いインテリアも新しいインテリアも馴染みの良い箱は、希少だと思います。

この箱のポテンシャルに甘えて、好きなものに囲まれながら、新しい暮らしを始めてみませんか。

詳細データ FUDOSAN INFO

物件種別
賃貸戸建/貸事務所/貸店舗
賃料
320,000円
管理費
なし
専有面積
94.60㎡
所在地
中野区上高田
交通
中央線・都営大江戸線「東中野」駅 徒歩12分/東西線「落合」駅 徒歩11分
敷金
1ヶ月 /兼用事務所・店舗利用時敷金+2ヶ月
礼金
1ヶ月
構造規模
木造 2階建
築年
1972年
現況
空室
ペット
不可
保証会社

利用必須

設備

エアコン(LDK・洋室2・寝室にあり。洋室1・スタディエリアに設置可能)/3ロガスコンロキッチン/ウォシュレット/追焚/ガスストーブ使用可能/モニター付きインターホン

備考

2階デッドスペースは使用不可/楽器演奏可/禁煙/駐車場あり(長さ約4.55m、幅約2.25m。使用料は賃料に含みます)/1年未満の解約の場合は違約金1ヶ月分/住居兼用事務所可(住居兼事務所または住居兼店舗の場合は敷金3ヶ月、登記可)庭付き/バイク置場あり(駐車場に駐輪可能。使用料は賃料に含みます)

定期借家契約2年間/再契約相談/再契約料:新賃料の1ヶ月分/取引態様:媒介/要火災保険契約
担当
玉井
情報登録日 2026年04月18日/情報修正日 2026年04月18日/更新予定日 2026年06月03日

関連記事 RELATED MAGAZINE

『新着LINE』はじめます

ホビー不動産ではこのたび、公式LINEにご登録いただいている方へ向けた

新しい情報配信サービス 『新着LINE』 をスタートしました。

PICK UP
NO. 283 山林の中で小商いと住まいを持つ
新横浜駅から住宅地を抜けて、山道を上り切ったところにある集合住宅。雑木林と尾根の斜面地の間に立つその建物は、自然環境と生活を両立させた新しい形の暮らしの場を提案してくれています。 建物は、北側の雑木林を臨む「森棟」、開かれた中庭に面する「庭...
135,780円 (税込) 〜179,290円 (税込)
45.54㎡ 〜59.62㎡
横浜市港北区篠原町
東急新横浜線・相鉄新横浜線・横浜市営ブルーライン「新横浜」駅 徒歩11分
NO. 281 DIYできる3層縦VOID
リノベーションなどで天井を抜いて空間を広く見せる、というのはよく見るデザインになりましたが、天井のみならず床も抜いて縦に空間を繋げるという発想には正直驚かされました。 今回ご紹介するマンションは一見するとごく普通の築古のマンションですが、専...
186,800円
103.01㎡
松戸市緑ケ丘
新京成電鉄「上本郷」駅 徒歩5分
NO. 243 住むように働く、働くように住む
住居兼用◯◯という使い方ができる家が増えました。時代の変化に伴いライフスタイル、働き方の変化が家の使い方にも反映されてきていてうれしいです。 今回ご紹介する1階の2区画の部屋は“住居兼用店舗・事務所利用ができる”というよりも、むしろ“住居兼...
130,000円
33.49㎡
杉並区高井戸東
井の頭線「高井戸」駅 徒歩6分