NO. 257 昭和レトロを地でいく

昭和レトロを地でいく 新富町の街中で目を引く角地の戸建て
さらに写真を表示する
賃料
352,000円(税込)
管理費
なし
専有面積
66.10㎡
所在地
中央区新富町
交通
有楽町線「新富町」駅 徒歩3分/日比谷線「築地」駅 徒歩6分/都営浅草線「宝町」駅 徒歩9分
敷金
6ヶ月
礼金
1ヶ月
償却
3ヶ月
NO. 257 昭和レトロを地でいく
賃料:
352,000円(税込)
管理費:
なし
専有面積:
66.10㎡
所在地:
中央区新富町

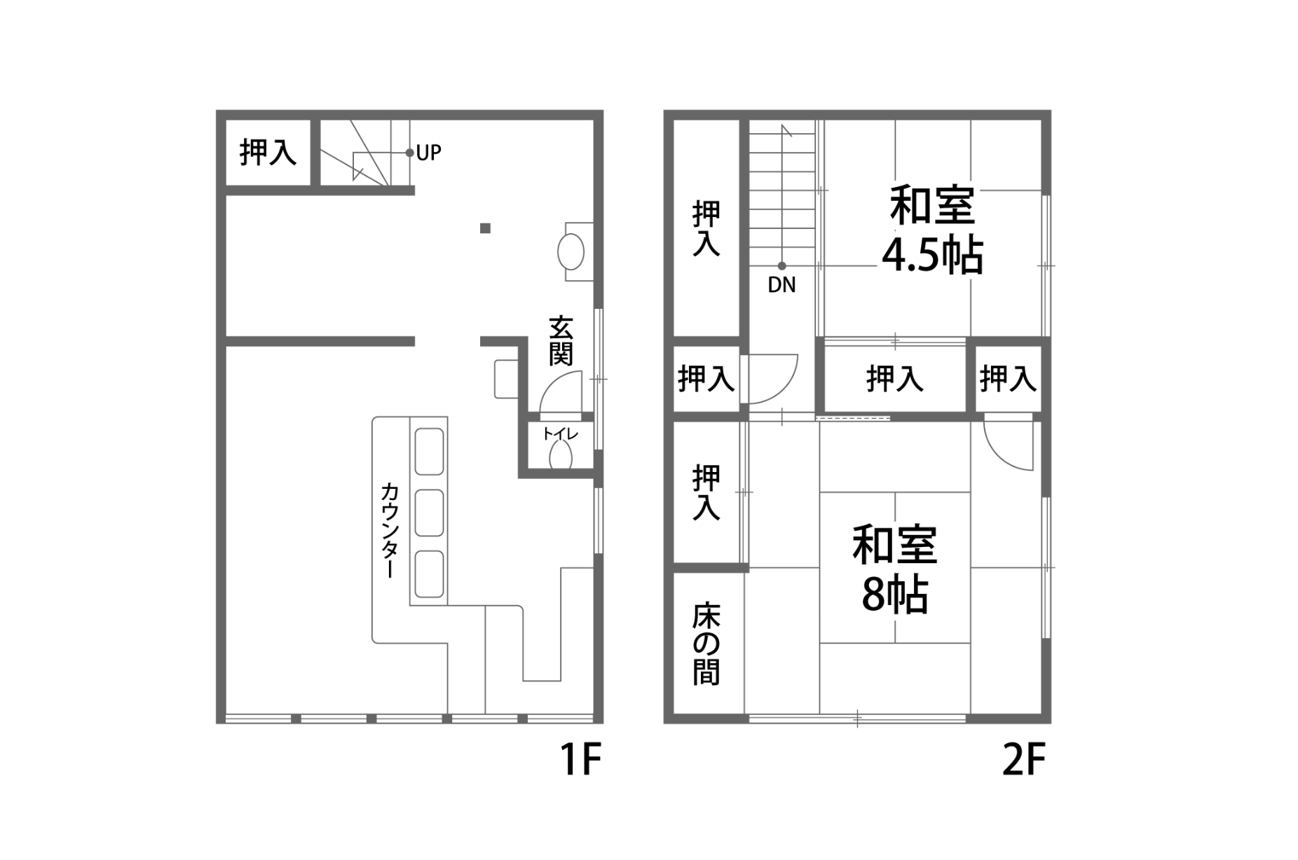
間取り FLOOR PLAN

※現況と図面が異なる場合には、現況を優先するものとします。

コメント COMMENT

新富町駅の路地を入ってすぐ、角地にぽつりと立つ趣のある古い一戸建て。かつては定食屋さんだったその建物が、当時の造作をそのままに残っています。外観から分かるその渋さに、まず心をぐっと掴まれてしまいました。

築年数は不詳、いつから何年その営みが続けられてきたのか分からないその一戸建ては、ところどころ手を加えている箇所がありながらも定食屋さんの名残や歴史がそこかしこに残っています。1階はカウンターとその向かいに客席スペースの名残が。厨房付近は年季の入ったシンク類と味のある木材の組み合わせ、古い棚、貼られたシールなどがそのまま。時間が止まったかのようにそこに鎮座していますが、現代のレトロニューの内装では簡単に再現できない、年代を重ねた味わいが感じられます。

1階の小上がりを上った奥のスペースは、個室とトイレ・洗面台のある個室スペース。トイレスペースの隣に出入口があり、レイアウトによっては従業員用出入口として使うこともできそうです。

2階には2つの和室があります。いずれも窓が大きいため光がたくさん入ってきて明るく気分が良い空間でした。畳や建具などは古さが否めませんが、空間としては8畳の1間ともう少しコンパクトめな4.5畳の1間があり、さらに収納スペースも多分にあるため1階とはまた異なる空間として利用することもできそうです。

用途や業種等は様々にご相談できるので、1階を店舗利用、2階を事務所やギャラリーのように使ったり、1棟丸ごとを改装してスタジオのように使ったり、現状の趣を引き継ぎつつまた飲食店を営むも良し。再び建物が息を吹き返して、人が訪れる愛される場所になったらいいなと思いました。

百聞は一見に如かずですので、まずは内見から。よろしくお願いいたします。

詳細データ FUDOSAN INFO

物件種別
貸事務所/貸店舗
賃料
352,000円(税込)
管理費
なし
専有面積
66.10㎡
所在地
中央区新富町
交通
有楽町線「新富町」駅 徒歩3分/日比谷線「築地」駅 徒歩6分/都営浅草線「宝町」駅 徒歩9分
敷金
6ヶ月
礼金
1ヶ月
償却
3ヶ月
構造規模
木造 2階建
所在階
1,2階
築年
不明
現況
空室
ペット
不可
保証会社

利用必須

設備

都市ガス/上下水道/室内洗濯機置場

備考

飲食店利用の場合はグリストラップ設置必須/残置物あり・現況有姿/内装はすべて前テナント残置物扱い(契約上はスケルトン渡し・スケルトン返しが原則)とし、貸主が承諾した造作については残置を認め、造作買取請求権は発生しない/企画内容についての審査あり

定期借家契約3年間/再契約相談/取引態様:媒介/要火災保険契約
担当
玉井
情報登録日 2026年02月22日/情報修正日 2026年02月22日/更新予定日 2026年06月14日

関連記事 RELATED MAGAZINE

『新着LINE』はじめます

ホビー不動産ではこのたび、公式LINEにご登録いただいている方へ向けた

新しい情報配信サービス 『新着LINE』 をスタートしました。

PICK UP
NO. 347 三茶角地一棟店舗
“三軒茶屋で路面店を持ちたい” そう思った時、多くの方が最初に候補に挙げるであろう茶沢通り。今回の物件は、その茶沢通りから一本入った場所に立つ木造の一戸建てです。 駅から歩いて5分。駅前の喧騒からは少し距離を置きながらも人の流れはしっかりと...
400,000円 (税込)
38.96㎡
世田谷区太子堂
田園都市線「三軒茶屋」駅 徒歩5分
NO. 194 小さく可愛い街のアイコン
【賃料改定しました!】 大崎駅から住宅地に少し入った西品川エリアの通り沿いに位置する2階建てのコンパクトな一棟貸しがあります。 建物は古いながらも内外装ともに新しく生まれ変わっており、街の新しいアイコンとして新しい入居者を待ち構えながら可愛...
198,000円 (税込)
38.29㎡
品川区西品川
山手線・埼京線・湘南新宿ライン「大崎」駅 徒歩11分
NO. 283 山林の中で小商いと住まいを持つ
新横浜駅から住宅地を抜けて、山道を上り切ったところにある集合住宅。雑木林と尾根の斜面地の間に立つその建物は、自然環境と生活を両立させた新しい形の暮らしの場を提案してくれています。 建物は、北側の雑木林を臨む「森棟」、開かれた中庭に面する「庭...
135,780円 (税込) 〜179,290円 (税込)
45.54㎡ 〜59.62㎡
横浜市港北区篠原町
東急新横浜線・相鉄新横浜線・横浜市営ブルーライン「新横浜」駅 徒歩11分