NO. 262 好きなものを諦めない生活を手にいれる

好きなものを諦めない生活を手にいれる 光が差し込む南向きのリビング
さらに写真を表示する
価格
8,450万円
建物面積
80.45㎡
所在地
目黒区平町
交通
東横線「都立大」駅 徒歩7分
NO. 262 好きなものを諦めない生活を手にいれる
価格:
8,450万円
建物面積:
80.45㎡
所在地
目黒区平町

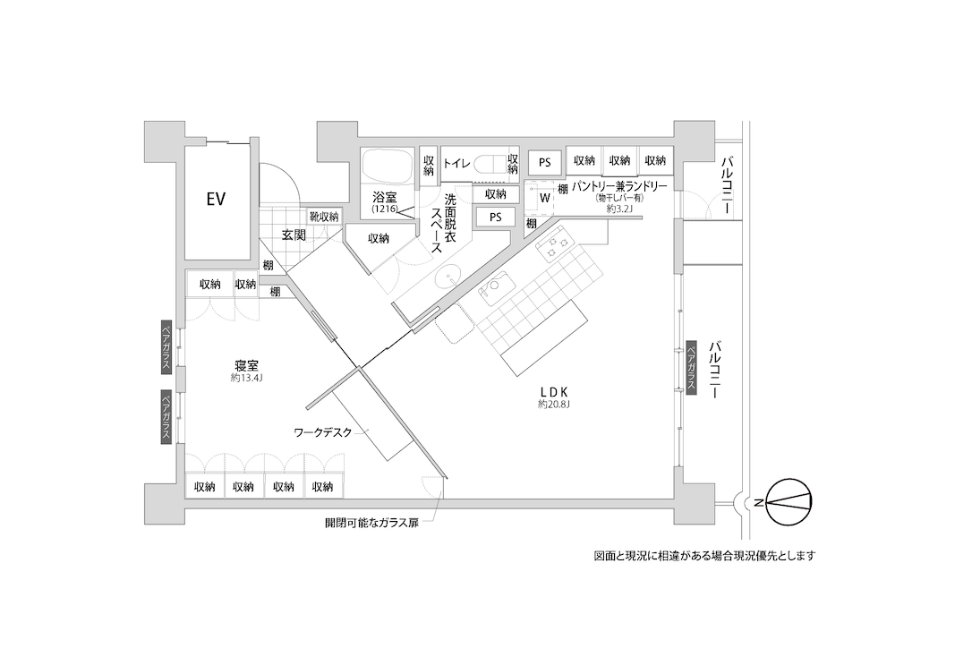
間取り FLOOR PLAN

※現況と図面が異なる場合には、現況を優先するものとします。

コメント COMMENT

家探しをしているとつい諦めてしまいそうになる夢があります。ペットを飼うことや、車を持つこと、眺望の良い部屋に住むこと。このお部屋に住めば、このすべてを諦めなくても良いんです。

2011年にフルリノベーションされた室内は、年月を感じさせない綺麗な無垢フローリングが心地良く、建築家へオーダーメイドをしたインテリアに囲まれています。(キッチン部分などは2023年にリノベ済み)

長方形の部屋の形の中でも少し正方形に近い形。南側と北側に開口があり、東側に玄関がある。この作りの中で最大限光を室内に取り込みながら、リビング・寝室・ワークスペース・生活スペース(水回り)をゾーニングした秀逸な間取りです。

間取り図をご覧いただくと伝わるでしょうか、部屋と部屋を区切る壁がクロスしています。一見するとデッドスペースが生まれてしまいそうな斜めに仕切られた各部屋は、家具を配置し生活をすると不思議と生活動線が綺麗に出来上がります。

LDKは南側の窓向きに作られ、風・光・眺望に恵まれたスペース。10階のベランダからの景色は遮るものがなく、爽快です。

窓の対面に配置されたカウンターキッチンの前には、つい大きなダイニングテーブルを置きたくなる。収納もそこかしこにあり、オーブンや食洗機も備え付けられているため家具家電がごちゃごちゃせずスッキリと見える。大きなキッチンなのにミニマルに感じるのは、このあたりの工夫が効いています。

キッチン奥にはパントリー兼ランドリースペースが。ただ収納をするだけには持て余す面積を、ランドリースペースも兼ねることで一石二鳥です。料理の合間に洗濯の進捗も確認をして、一気に家事をまわす効率性も兼ね備えており優秀です。

リビングの隣には、寝室とワークスペースが。収納もしっかり確保されているので、寝室は大きなベッドを置いて眠るのに専念するスペースにできますね。北側の窓からやさしく差し込む光が、程よくお部屋を照らしてくれています。

寝室の壁を少し伸ばして作ったデスクスペースは、リビングからも行き来できる扉付き。リビングでもなく、寝室でもなく、仕事のスイッチをONできるスペースを家の中に持てるのは願ったり叶ったりですね。

ぎゅっとまとまった水回りのスペースにもまた、大容量の収納が。至るところに収納が配置されており、デザインを重視しているだけでなく日々の生活のことを考えた設計者の意図を感じ、非常に好感が持てました。

言及するポイントが多く恐縮なのですが、マンション自体もレトロで良い趣があります。デザインのかわいさや緑の多さなどを鑑みても、建物推しと言ってしまいたいくらい魅力的です。

徒歩2分のところには中根公園があるので、ペットのお散歩や日々の息抜きスポットとしてもぴったりです。駐車場付きとはいえ日々の電車利用を想定したとしても、都立大駅からは緑道をひたすらに進むと到着するロケーションも気分が良く、全方位的におすすめできるお部屋でした。

詳細データ FUDOSAN INFO

物件種別
売買マンション
価格
8,450万円
建物面積
80.45㎡
管理費
19,600円
修繕積立金
23,200円
所在地
目黒区平町
交通
東横線「都立大」駅 徒歩7分
構造規模
鉄骨鉄筋コンクリート造 13階建
所在階
10階
総戸数
78戸
築年
1972年
土地権利
所有権
用途地域
第一種中高層住居専用地域
都市計画
市街化区域
現況
居住中
引渡時期
相談 /期日指定:2026年12月末頃
ペット
可 /犬・猫1匹(使用細則あり)
設備

オーブン/IH調理器/食洗機/エレベーター

備考
管理形態:全部委託/施工会社 : 鹿島建設株式会社/管理会社 : 伊藤忠アーバンコミュニティ株式会社

敷地内駐車場:月額7,000円(専用使用権有)/駐輪場:年額12,000円(要空き確認)/耐震改修工事検討中/

担当
玉井
情報登録日 2026年03月05日/情報修正日 2026年03月05日/更新予定日 2026年05月13日
PICK UP
NO. 320 モルタルキッチンの都心リゾート
中央にどんと据えられた大きなモルタルキッチン。これが、この部屋の主役です。 調理スペースの床が一段掘り下げられているためキッチンカウンターに腰かけると、調理する人と自然に目線が合うようになっており、料理をしている間もゲストとの会話が途切れま...
21,800万円
70.10㎡
港区南麻布
南北線・都営大江戸線「麻布十番」駅 徒歩9分/南北線・都営三田線「白金高輪」駅 徒歩10分
NO. 297 空を取り込む
南側に抜けた眺望と、その手前にあるインナーバルコニーが与えてくれえる開放感はやっぱり素敵でした。 窓外の開放感を更に高めてくれるのが、このインナーバルコニー。 起き抜けのコーヒーを飲みながら眺める空。舞う鳥たち。観葉植物越しに眺める空が日頃...
8,180万円
94.92㎡
杉並区南荻窪
中央・総武線 「荻窪」駅 徒歩7分/丸ノ内線 「荻窪」駅 徒歩7分
NO. 264 天高スキップフロアはHOMEでありBASE
一見して分かる、天高のあるスキップフロア。 でも実際に足を踏み入れると、「それだけじゃない」と気づきます。 まず印象的なのは、地階部分。 このお部屋付属の占有駐車場。その横に設けられた地階側玄関から入ると、約11.8帖のDEN空間が広がりま...
11,490万円 (税込)
108.02㎡
中野区中野
総武線・大江戸線「東中野」駅 徒歩10分/東西線「落合」駅 徒歩11分/中央線「中野」駅 徒歩15分/西武新宿線「新井薬師」駅 徒歩16分