NO. 202 職場環境改革!〜オフィス中・小〜

職場環境改革!〜オフィス中・小〜 コンパクトな事務所区画(2階事務所2)
さらに写真を表示する
賃料
170,500円(税込)
〜385,000円(税込)
管理費
16,500円 〜37,400円 (税込)
専有面積
17.05㎡ 〜39.36㎡
所在地
渋谷区渋谷
交通
山手線・埼京線・湘南新宿ライン「渋谷」駅 徒歩3分
敷金
2ヶ月
礼金
1ヶ月
NO. 202 職場環境改革!〜オフィス中・小〜
賃料:
170,500円(税込) 〜385,000円(税込)
管理費:
16,500円 〜37,400円 (税込)
専有面積:
17.05㎡ 〜39.36㎡
所在地:
渋谷区渋谷

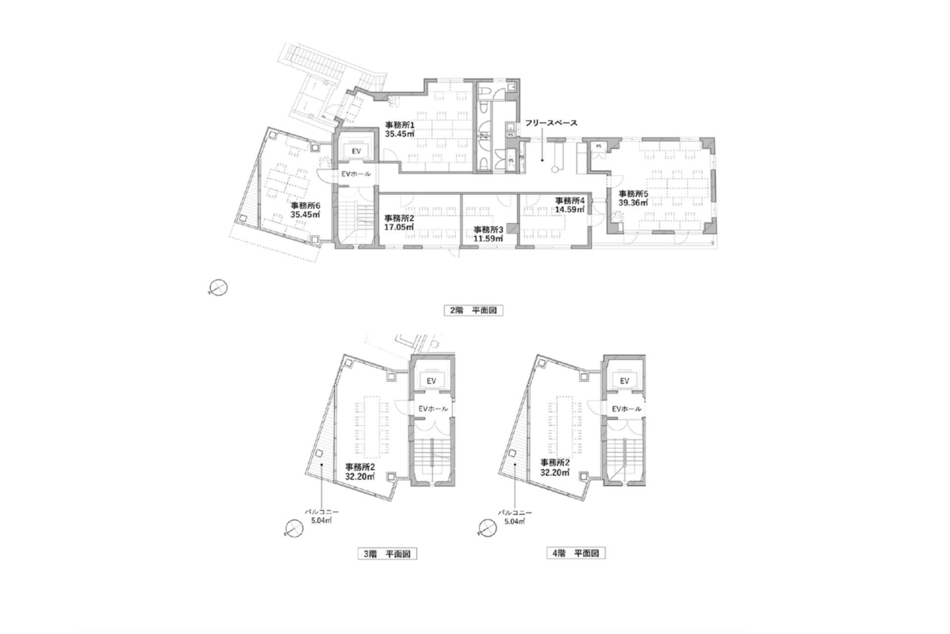
間取り FLOOR PLAN

※現況と図面が異なる場合には、現況を優先するものとします。

コメント COMMENT

渋谷リバーストリート沿いにある元公共施設をリノベーションし、1階を店舗、2・3・4階にオフィス区画(大中小様々)と共有スペースを有した複合施設に生まれ変わりました。

今回募集する2階は、17㎡のコンパクトな区画と39㎡の中くらいのサイズの区画があります。

2階の区画は、共用のキッチンとトイレがあり、専有部分はお部屋のみのシンプルな作りです。水回りはみなさんでシェアして利用するのですが、そもそもコンパクトめな面積のオフィスに洗面やトイレを設置すると空間が圧迫され勿体無いので、潔く共用利用をする、というのがむしろ理に適っているなと思いました。

さらに屋上にはwi-fi完備のフリースペースも。専有区画だけで息詰まってしまったら、空を見ながら開放的な空間で一休み、または気分を変えて仕事のスイッチを入れ直す、というのもアリだと思います。

内装はシンプルでインダストリアルな雰囲気を持ちつつも、設備や使いやすさはすでに備わっており、家具等を入れるだけですぐに利用可能な箱が用意されています。程よく使いやすくリノベーションされた事務所、というのも数が多くないためオフィス移転を検討中の方は必見です。

1階には店舗区画があり、コーヒースタンドも入居予定なので遠くまで足を運ばなくても美味しいコーヒーが飲めるかも。また、渋谷リバーストリート沿いには平日のランチ時にフードトラックが停まるので、ランチのバリエーションにも困りません。

渋谷駅徒歩圏内でデザイン性のあるリノベーションオフィスというだけでそもそも希少条件ですが、広さも様々で、共用スペースが充実しており、セキュリティ(セコム有り)完備、ルーフバルコニー付きの複合施設、画一的なオフィスでは物足りない企業さん、ぜひお待ちしております。

<2階事務所2>
面積:17.05㎡
賃料:170,500円(税込)
管理費:16,500円(税込)

<2階事務所5>
面積:39.36㎡
賃料:385,000円(税込)
管理費:37,400円(税込)

3・4階の大区画も募集中です。

詳細データ FUDOSAN INFO

物件種別
貸事務所
賃料
170,500円(税込) 〜385,000円(税込)
管理費
16,500円 〜37,400円 (税込)
専有面積
17.05㎡ 〜39.36㎡
所在地
渋谷区渋谷
交通
山手線・埼京線・湘南新宿ライン「渋谷」駅 徒歩3分
敷金
2ヶ月
礼金
1ヶ月
構造規模
鉄骨鉄筋コンクリート造 4階建
所在階
2,3階
築年
2001年
現況
空室
ペット
不可
保証会社

利用必須

設備

エアコン/セコム/トイレ(男女別、共用部)/キッチン(共用部)/フリースペース(共用部)/屋上(共用部)

備考

専有部および共用部の水光熱費は管理会社からの請求により支払い

定期借家契約2年間/再契約相談/再契約料:新賃料の1ヶ月分/取引態様:媒介/要火災保険契約
担当
玉井
情報登録日 2025年12月02日/情報修正日 2025年12月02日/更新予定日 2026年03月05日

関連記事 RELATED MAGAZINE

LINE物件配信サービス『もっとホビー不動産 β』

LINE物件配信サービス『もっとホビー不動産 β』を開始します。
サイトに載っていない物件も 《もっと》お届けする『スルーパス』、担当者が物件探しに伴走する『SUCCESS』の2つのコースが選べます。

PICK UP
NO. 253 DIY可能貸家を一棟丸っとアトリエにどうぞ
最寄りの入谷駅から徒歩7分、鶯谷駅からは徒歩11分。 通りから少し入った住宅街のいちばん奥、突き当たりに建つDIY可能な二階建て一軒家です。 一階の玄関を開けると、改装途中にも見える約12帖のスペースとDK。そしてトイレ、元浴室、洗濯機置場...
120,000円 (税込)
75.4㎡
台東区根岸
日比谷線「入谷」駅 徒歩7分/山手線「鶯谷」駅 徒歩11分
NO. 243 住むように働く、働くように住む
住居兼用◯◯という使い方ができる家が増えました。時代の変化に伴いライフスタイル、働き方の変化が家の使い方にも反映されてきていてうれしいです。 今回ご紹介する1階の2区画の部屋は“住居兼用店舗・事務所利用ができる”というよりも、むしろ“住居兼...
130,000円 〜150,000円
33.49㎡ 〜40.33㎡
杉並区高井戸東
井の頭線「高井戸」駅 徒歩6分
NO. 247 駅前商店街すぐの公園隣りの店舗で始める
ファサードの可愛らしさと、隣が公園という恵まれたロケーション。

素敵で小ぶりな店舗のご紹介です。 占有面積は35㎡。ワンオペで10席前後の軽飲食にちょうど良い、コンパクトで扱いやすいサイズ感です。 まず目を引くのは、アンティーク調の扉と大...
148,500円
35㎡
新宿区住吉町
都営新宿線「曙橋」駅 徒歩3分/都営大江戸線「若松河田」駅 徒歩10分/丸ノ内線 「四谷三丁目」駅 徒歩11分