NO. 294 ビルからまちに滲み出す

ビルからまちに滲み出す 集合店舗であり、商店街的なビル
さらに写真を表示する
賃料
187,000円(税込)
〜308,000円(税込)
管理費
7,700円 〜14,300円 (税込)
専有面積
24.18㎡ 〜44.26㎡
所在地
世田谷区大原
交通
京王線「代田橋」駅 徒歩1分/京王線「笹塚」駅 徒歩16分/小田急線・京王井の頭線「下北沢」駅 徒歩23分
敷金
3ヶ月
礼金
1ヶ月
NO. 294 ビルからまちに滲み出す
賃料:
187,000円(税込) 〜308,000円(税込)
管理費:
7,700円 〜14,300円 (税込)
専有面積:
24.18㎡ 〜44.26㎡
所在地:
世田谷区大原

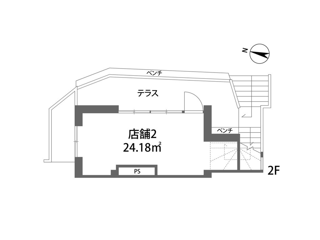
間取り FLOOR PLAN

※現況と図面が異なる場合には、現況を優先するものとします。
※現況と図面が異なる場合には、現況を優先するものとします。
※現況と図面が異なる場合には、現況を優先するものとします。
※現況と図面が異なる場合には、現況を優先するものとします。

コメント COMMENT

東京という都市の特徴のひとつに、駅ごと・エリアごとに、それぞれの人の流れや街の表情があることが挙げられます。

その中で、代田橋は少し不思議な立ち位置にある街です。

新宿まで電車で約7分。歩いても1時間ほど。環七と甲州街道が交差して、井の頭通りも走っている都心へのアクセスに恵まれた場所でありながら、どこかのどかさを感じる落ち着いた住宅街。

駅周辺にはレトロな商店が並び、いくつかの有名店や良い飲食店も点在していますが、その魅力が広く知られているかというと、まだそこまでではないのが正直なところです。

ただ、だからこそ、いい。

この場所に入る人が何かを始めて、それが少しずつまちに受け入れられていく。

にじむように広がって、既にある魅力と混ざり合い、やがて新しい文化や個性になっていく。

そんな変化を、当事者として楽しめる余白が、この街には残っています。

今回の物件は、この春、代田橋駅から徒歩1分の場所に誕生する、5階建ての小さな集合店舗です。

各フロアに1店舗ずつ。一つひとつの区画は決して大きくはありませんが、屋上や1階の外壁、階段部分にはベンチが設けられており、テイクアウト客も含めて、建物全体で人を受け入れる設計になっています。

建物の外周をめぐる階段が各フロアをつなぎ、自然と人の行き来が生まれる構造。どこか下町の路地のような、人の滞留や交流を促す空気感があります。

例えば、2階でコーヒーを買い、3階で焼き菓子を選び、そのまま屋上で過ごす時間。帰り道には5階で花を買い、4階で花器を選ぶ。ベンチで偶然友人に会い、そのまま1階で食事をして帰る。

そんな日常が、無理なく生まれていきそうです。

だからこそこの物件は、単にお店を構える場所としてだけでなく、まちや他の入居者とゆるやかにつながりながら、場を育て、まちに染み出していきたい方にこそおすすめしたい物件。

入居にあたっては企画審査があります。どんな場をつくりたいか、どんな関わり方をしたいか、その想いもぜひお聞かせください。

まだ完成前の物件であり、コミュニティに参加することに少し不安を感じる方もいるかもしれません。ただ、コミュニティマネージャー的な役割を担う“家守”の方も関わる予定とのこと。

他にも気になる点や不安なことがあれば、申込前でもお気軽にご相談ください。

代田橋という、これから魅力がにじみ出ていく余白のある街で。そのにじみ方を一緒につくっていける方からのご連絡を、お待ちしています。

<1階>
面積:44.26㎡
賃料:308,000円
管理費:14,300円
<2階>
面積:24.18㎡
賃料:231,000円
管理費:77,000円
<4階>
面積:27.19㎡
賃料:187,000円
管理費:88,000円
<5階>
面積:24.73㎡
賃料:198,000円
管理費:77,000円

詳細データ FUDOSAN INFO

物件種別
貸店舗
賃料
187,000円(税込) 〜308,000円(税込)
管理費
7,700円 〜14,300円 (税込)
専有面積
24.18㎡ 〜44.26㎡
所在地
世田谷区大原
交通
京王線「代田橋」駅 徒歩1分/京王線「笹塚」駅 徒歩16分/小田急線・京王井の頭線「下北沢」駅 徒歩23分
敷金
3ヶ月
礼金
1ヶ月
構造規模
鉄筋コンクリート造 5階建
築年
2026年
現況
空室
保証会社

利用必須(初回保証委託料:総賃料の100%)

設備

半地下区画ダクト設置済み

備考

飲食店の場合、グリストラップ設置必須 /企画審査有り/

定期借家契約3年間/再契約相談/再契約料:新賃料の1.1ヶ月/取引態様:媒介/要火災保険契約
担当
玉井
情報登録日 2026年03月27日/情報修正日 2026年03月27日/更新予定日 2026年05月03日

関連記事 RELATED MAGAZINE

『新着LINE』はじめます

ホビー不動産ではこのたび、公式LINEにご登録いただいている方へ向けた

新しい情報配信サービス 『新着LINE』 をスタートしました。

PICK UP
NO. 299 残して活かすリノベの真髄
築53年の注文住宅、この家を単なるスクラップ&ビルドで新しく生まれ変わらせるのではなく、元々の建物のポテンシャルを活かしたリノベーションを施し生まれ変わらせました。 もともとオーナーさんのお父様がお住まいだったこの家を、大事に残しな...
320,000円
94.60㎡
中野区上高田
中央線・都営大江戸線「東中野」駅 徒歩12分/東西線「落合」駅 徒歩11分
NO. 298 路面なのに隠れ家な店舗
恵比寿駅からスカイウォークとガーデンプレイスを抜けた先、長者丸エリアの一角に新築されたばかりの小さな路面店舗・事務所。 人通りは多くない。でも、その分“わざわざ来る人”だけが訪れる場所です。 建築家の手による端正な空間は、什器を置くだけで成...
159,500円 (税込)
16.27㎡
目黒区三田
山手線・湘南新宿ライン・埼京線「恵比寿」駅 徒歩7分/日比谷線「恵比寿」駅 徒歩10分
NO. 284 新旧Half&Half〜新しい食の拠点〜
新横浜駅から徒歩5分、住宅地側の坂を少し登った高台に立つ目新しい施設があります。「新横浜食料品センター」という名前のその施設は、誰もがいつでも気軽に立ち寄れる“地域のダイニングキッチン”をコンセプトにした、まるで家の延長のような食の拠点です...
49,500円 (税込) 〜126,500円 (税込)
9.78㎡ 〜26.51㎡
横浜市港北区篠原町
東急新横浜線・相鉄新横浜線・横浜市営ブルーライン「新横浜」駅 徒歩5分/横浜線・東急東横線「菊名」駅 徒歩14分